Eladó jó állapotú lakás - Hatvan
- INGYENES HIRDETÉS FELADÁS
Ingatlan adatai
- Eladó vagy kiadó:Eladó
- Település:Hatvan
- Kategória:Lakás
- Alkategória:Tégla
- Alapterület:64 m2
- Csere is:Nem
- Hirdető:Cég
- Élő videón megtekinthető:Nem
- Szobaszám:2
- Állapot:Jó állapotú
- Hány szintes az ingatlan:nincs megadva
- Komfortosság:nincs megadva
- Hányadik emeleti:Földszint
- Erkély:nincs megadva
- Lift:nincs megadva
- Parkolási lehetőség:nincs megadva
- Fűtés:Gáz (cirko)
- Bútorozottság:nincs megadva
- Fényviszony:nincs megadva
- Tájolás:DK
- Kilátás:Utcai
- Internet:nincs megadva
- Klíma:nincs megadva
- Akadálymentesített:nincs megadva
- Energiatanúsítvány:nincs megadva
- Villany:nincs megadva
- Víz:nincs megadva
- Gáz:nincs megadva
- Csatorna:nincs megadva
- Kapcsolatfelvétel

Horváth Tibor
+36-(70)-467-6871
Mondd meg a hirdetőnek, hogy a megveszLAK-on találtad a hirdetést.
Hitel ajánlatok
Ingatlan hirdetés leírása
Városi élet, vidéki nyugalom - Hatvanban! Hatvan Kis Boldogi ...
Városi élet, vidéki nyugalom - Hatvanban!
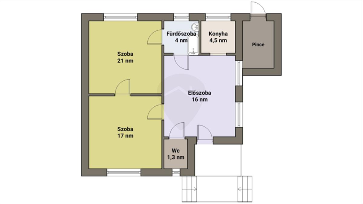
Hatvan Kis Boldogi városrészén eladó jól megközelíthető tégla falazatú két szobás társasházi lakás összközműves, önálló 600 nm -es telken három tárolóval és pincével.
Fűtése és meleg víz ellátásért egy kombi gáz cirkó felel, radiátoros hőleadókkal.
Az épületben két világos szoba, egy nappali/étkező, konyha, fürdőszoba és külön wc található. a házhoz csatlakozik több tároló, pince, garázs. Locsolást fúrt kút teszi lehetővé. a felújítás elkezdődött, a villany- és vízvezetékek cseréje megtörtént, illetve 2 nyílászáró korszerűsítve lett. a gázkazán is át lett nézve. Az új tulajdonosnak a villanyóra bővítése, burkolás, festés és szerelvényezés van hátra a belső munkálatokból.
A közelben elérhető a buszmegálló, valamint a vasútállomás, iskola, óvoda és élelmiszerbolt 20 percre.
A tehermentes ingatlan rugalmasan megtekinthető.
INGYENES hitel tanácsadást biztosítunk! Bankfüggetlen hitelcentrumunk minden elérhető bank és hitelintézet ajánlatát versenyezteti az Ön kedvéért, ráadásul DÍJMENTESEN.
Amennyiben hirdetésem felkeltette az érdeklődését vagy egyéb információra van szüksége hívjon bizalommal! FIX 3% lakáshitelre megvehető
Tetszett ez az eladó Hatvani jó állapotú 2 szobás tégla lakás? Hívd fel a hirdetőt most, és tudj meg mindent erről az eladó tégla lakásról! Ha gondolod nézelődj tovább az eladó lakás Hatvan oldal hirdetései között. Ennek az eladó lakásnak az ára 22000000 Ft és mivel az alapterülete 64 négyzetméter, ezért az átlagos négyzetméterára 343750 HUF/m2.
Az eladó lakások menüpontban további hirdetések között is böngészhetsz. Ha van kedved, akkor böngészhetsz a Horváth Tibor összes hirdetése között.

