- >>
- eladó ingatlanok
- >>
- eladó lakás
- >>
- eladó lakás Herend
- >>
Eladó új építésű lakás - Herend
| | |||
| Kedvencnek jelölöm | Elküldöm emailben | Megosztás | Szavazás |
| FIX 3% lakáshitelre megvehető | |||
| 79 000 000 HUF | |||
Ingatlan adatai
- Eladó vagy kiadó:Eladó
- Település:Herend
- Kategória:Lakás
- Alkategória:Tégla
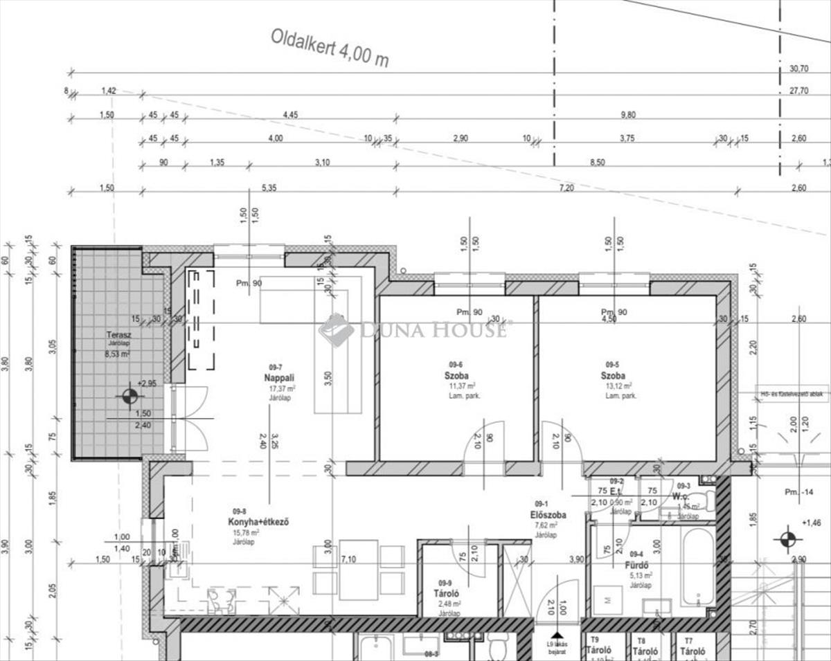
- Alapterület:79 m2
- Csere is:Nem
- Hirdető:Cég
- Élő videón megtekinthető:Nem
- Szobaszám:3
- Állapot:Új építésű
- Hány szintes az ingatlan:Földszintes
- Komfortosság:nincs megadva
- Hányadik emeleti:2
- Erkély:Van
- Lift:Nincs
- Parkolási lehetőség:Udvaron
- Fűtés:Hőszivattyús
- Bútorozottság:nincs megadva
- Fényviszony:Napfényes
- Tájolás:DNY
- Kilátás:nincs megadva
- Internet:nincs megadva
- Klíma:Van
- Akadálymentesített:nincs megadva
- Energiatanúsítvány:nincs megadva
- Villany:Van
- Víz:Van
- Gáz:nincs megadva
- Csatorna:Van
- Üzenetküldés
- Hívás

Czvianov-Nagy Katalin
Mondd meg a hirdetőnek, hogy a megveszLAK-on találtad a hirdetést.
Referencia szám: PR026114/LK/23979

Ingatlan hirdetés leírása
Eladó lakás, Herend, Eladó új építésű lakás - Herend
*** Eladó Újépítésű ingatlanok Herend szívében minden karnyújtásnyira ***Megvételre kínálok Veszprém kedvelt agglomerációjában, újépítésű lakásokat.
Herend, a világhírű porcelán hazája, ahol a nyugodt kisvárosi élet kényelme találkozik a mindennapi praktikumokkal. a társasház a város központjában helyezkedik el, pár perc sétára boltoktól, orvosi rendelőtől, gyógyszertártól, étteremtől, játszótértől és gondozott parktól. Herend, Veszprém közelsége miatt ideális választás azoknak is, akik csendes, biztonságos környezetben élnének, mégis gyorsan elérnék a nagyobb várost.
Kiváló minőség, modern kialakítás, zárt parkos környezet!
Nagyszerű elhelyezkedéssel, 22 lakásos, új építésű társasház kerül kialakításra, sorompóval zárt területen, felszíni gépkocsi-beállókkal, tárolókkal. a projekt célja olyan korszerű, energiatakarékos otthonok létrehozása, amelyek hosszú távon értékállóak maradnak.
A lakásokhoz térkövezett, udvari beálló vásárolható, amely vételára bruttó 1 000 000 Ft.
Minden szinten, minden lakáshoz tároló helyiségek kerültek kialakításra, amit most ajándékba ad a kivitelező.
Legfontosabb műszaki jellemzők,
Falazat:
Külső főfalak: 30 cm-es Leier n+f falazóelem, falazóhabarccsal vagy ragasztóhabbal
Lakáselválasztó falak: Leiertherm 25/30 aku md hanggátló téglafal
Nyílászárók:
Műanyag, legalább 5 kamrás, 82 mm-es, 3 rétegű üvegezés
Kiváló hő- és hangszigetelés, redőny előkészítés minden nyílászárónál (vakolt rejtett redőnytokok, elektromos kiállással)
Fűtés-hűtés:
Fűtésről energiatakarékos hőszivattyús padlófűtés, hűtésről fan-coil rendszer gondoskodik, helyiségenként szabályozva.
Burkolatok:
Vevő által választható, i. Osztályú hideg- és melegburkolatok, ár kerettel
Fürdőszobákban minőségi szaniterek, ravak zuhanykabin vagy kád
Homlokzati szigetelés:
15 cm vastag eps hőszigetelés, nemesvakolat befejezéssel
Tetőfedés:
Antracit színű betoncserép, korszerű víz- és páraelvezetéssel
Hang- és hőszigetelés:
Valamennyi födém, válaszfal és nyílászáró kialakítása megfelel a korszerű épületenergetikai előírásoknak
Előnyök röviden:
Zárt, biztonságos, parkosított udvar
Saját gépkocsi-beálló
Minden lakáshoz külön tároló, mely benne van az árban
Modern hűtés-fűtés
Választható burkolatok és szaniterek
Kiváló hang- és hőszigetelés
Ideális saját részre és befektetésnek is
Amennyiben hirdetésem felkeltette érdeklődését, valamint további információra van szüksége, várom hívást.
„A hirdetésben szereplő fix 3%-os lakáshitel részét képező támogatásokat Magyarország Kormánya nyújtja. ” FIX 3% lakáshitelre megvehető


