Eladó befejezetlen lakás - Hévíz
- INGYENES HIRDETÉS FELADÁS
Ingatlan adatai
- Eladó vagy kiadó:Eladó
- Település:Hévíz
- Kategória:Lakás
- Alkategória:Tégla
- Alapterület:99 m2
- Csere is:Nem
- Hirdető:Cég
- Élő videón megtekinthető:Nem
- Szobaszám:4
- Állapot:Befejezetlen
- Hány szintes az ingatlan:nincs megadva
- Komfortosság:nincs megadva
- Kertkapcsolatos:Igen
- Hányadik emeleti:nincs megadva
- Erkély:nincs megadva
- Lift:nincs megadva
- Parkolási lehetőség:Udvaron
- Fűtés:Geotermikus
- Bútorozottság:nincs megadva
- Fényviszony:nincs megadva
- Tájolás:DK
- Kilátás:nincs megadva
- Internet:nincs megadva
- Klíma:Van
- Akadálymentesített:nincs megadva
- Energiatanúsítvány:A++
- Villany:nincs megadva
- Víz:Van
- Gáz:nincs megadva
- Csatorna:Van
- Kapcsolatfelvétel

Takács Tünde
+36-(70)-624-3434
Mondd meg a hirdetőnek, hogy a megveszLAK-on találtad a hirdetést.
Ingatlan hirdetés leírása
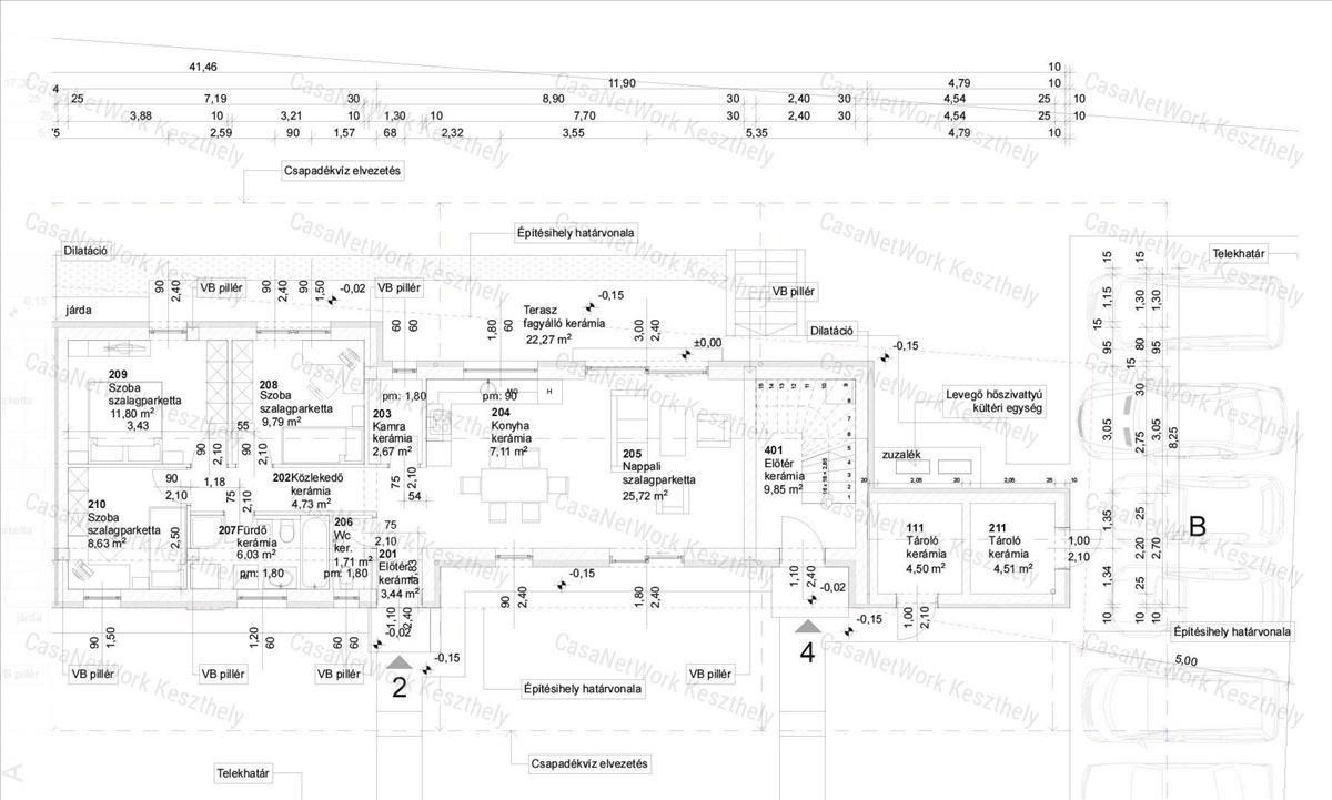
Új építésű, AA++ besorolású lakás Hévízen, örök panorámával
Eladó Hévízen egy 99 m2 hasznos
alapterületű, kertkapcsolatos földszinti lakás, amely egy most
épülő, lapostetős, hőszivattyúval ellátott, négylakásos társasházban
található. Várható átadás 2022 év vége.
Az ingatlan Hévíz egregyi részén
helyezkedik el, gyönyörű panorámával a Keszthelyi-fennsíkra, Hévízi-tótól 1900 m-re.
A társasházhoz
tartozó közös használatú telek összterülete 777 m2, melyből ehhez a lakáshoz
112 m2 saját használatú kert tartozik. Az épülethez, telken belül összesen 6
parkolóhely lesz kialakítva.
A modern kialakítású lakás
alapterülete 86 m2 (amerikai konyhás nappali, 3 hálószoba, fürdőszoba, wc, közlekedő), amelyhez egy 22, 2 m2-es terasz és egy 4, 5 m2-es tároló is tartozik. Az ár tartalmazza a telken belüli udvari beállót és a külön bejáratú tárolót
is.
Az épület fűtése, használati
melegvíz-ellátása, valamint hűtése energiahatékonysági szempontok miatt levegős
hőszivattyúval megoldott. a hőszivattyúban felhasznált minden egyes kilowatt
villamos energia 3-4 kilowatt megújuló, a levegőből kinyert hőenergiát jelent –
ez pedig 300-400%-os hatékonyságjavulásnak felel meg. Ehhez még hozzájárul az
ingatlanra tett 15-cm-es hőszigetelés és a minőségi nyílászárók.
A komplett közműhálózat
kiépített: elektromos áram, víz, szennyvíz.
A lakás állandó lakhatásra és befektetésként is kiválóan alkalmas a város turisztikai vonzereje és hírneve miatt.
Részletesebb felvilágosításért, vagy a személyes megtekintésért hívjon a megadott telefonszámon, vagy forduljon a keszthelyi irodánkhoz, Keszthely, Fejér Gy. 2.
Finanszírozási elképzeléséhez partnerek vagyunk! Díjmentes, bankfüggetlen, személyre szabott ajánlattal várjuk megkeresését! Hitel.hu - Hasonlítsa össze a bankok lakáshitel ajánlatait


