Eladó új építésű lakás Hévíz
| Kedvencbe | Megosztás | Árfigyelő |
| Kedvezményes lakáshitel ajánlatok | ||
| 106 202 650 HUF | ||
Ingatlan adatai
- Eladó vagy kiadó:Eladó
- Település:Hévíz
- Kategória:Lakás
- Alkategória:Tégla
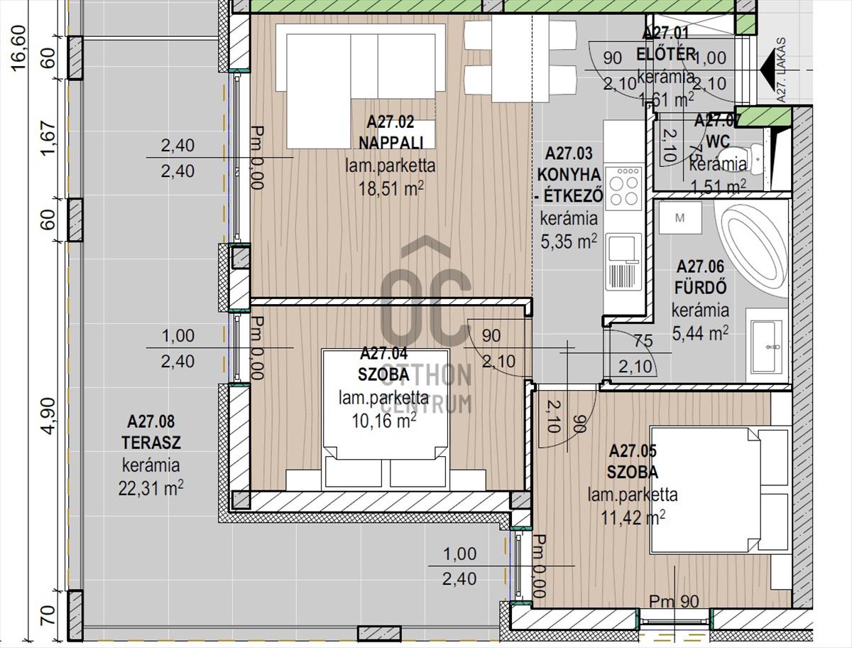
- Alapterület:65 m2
- Csere is:Nem
- Hirdető:Cég
- Élő videón megtekinthető:Nem
- Szobaszám:2
- Állapot:Új építésű
- Hány szintes az ingatlan:nincs megadva
- Komfortosság:nincs megadva
- Hányadik emeleti:2
- Erkély:Van
- Lift:Van
- Parkolási lehetőség:nincs megadva
- Fűtés:nincs megadva
- Bútorozottság:nincs megadva
- Fényviszony:nincs megadva
- Tájolás:K
- Kilátás:Kertre néző
- Internet:nincs megadva
- Akadálymentesített:nincs megadva
- Energiatanúsítvány:nincs megadva
- Villany:Van
- Víz:Van
- Gáz:Utcában
- Csatorna:Van
- Üzenetküldés
- Hívás


Hitel ajánlat
Ingatlan hirdetés leírása
Projekt bemutatása
Ahol a természet és az otthon fúziója a fe...
Projekt bemutatásaAhol a természet és az otthon fúziója a feltöltődés forrásává válik!
AZ otthon centrum kiemelt kínálatában!
PRÉMIUM lakások a város szívében, a természet ölelésében!
Hévíz legkedveltebb, központi városrészében új szintre emeljük az otthon és a feltőltődés fogalmát egy igazán egyedülálló ingatlanfejlesztéssel. Fedezze fel ezt az exkluzív, 80 lakásos projektet, amely a családias Le Primore Hotel & Spa szomszédságában helyezkedik el, mindössze 10 perc sétára a festői Hévízi tótól. a biztonságos környezet és a könnyű megközelíthetőség közkedvelt választássá teszi ezt a projektet.
Itt nincs helye a kompromisszumnak, a városi kényelem és a természet fúziója valósul meg prémium minőségben!
A projekt különlegessége a választható kilátás: a felsőbb szintekről lenyűgöző városi látkép tárul elénk, míg a másik oldalon a saját, privát használatú, 4 hektáros erdő zöldje nyújt teljes kikapcsolódást és intimitást.
E projekt célja, hogy minden korcsoport számára elérhető, modern lakótereket biztosítson.
Legyen Ön fiatal, egyedülálló, családos, állatbarát vagy éppen nyugdíjas, itt otthonra lelhet
. Az ingatlan magas minősége, építészeti megoldásai és az igénybe vehető szolgáltatások gondoskodnak a kényelemről, hozzájárulva a színvonalas életre vágyók számára, hogy mind otthonként, mind nyaralóként használva élmény legyen az itt töltött idő!
Ugyanakkor befektetési alternatívaként is kiváló választás! Kiemelkedő hozamlehetőség egy olyan városban, ahol az egészségturizmus folyamatosan növekvő értéket képvisel. a projekt ideális rövid- és hosszútávú kiadásra. Az építtető vállalja a teljes körű menedzsmentet – beleértve a bérbeadást, karbantartást, ügyfélkezelést és üzemeltetést.
VÁLASZTHATÓ KILÁTÁS
A lakóparkban elérhető lakások két különböző kilátással bírnak: választhat városi panorámás lakást, amely a dinamikus városi életet idézi vagy válassza az erdőre néző lakást, ahol a természet közelsége és a zöld környezet minden nap új inspirációt ad.
MINDEN kétség eloszlatása érdekében, referenciamunka MEGTEKINTHETŐ!
A luxus ingatlanok kulcsra kész állapotban kerülnek átadásra!
Építkezés kezdete : 2025. Július
Kulcsrakész átadás: 2027. Negyedik Q
PROJEKT általános műszaki TARTALMA:
Minden szakág esetében a beépített anyag/segédanyag kizárólag neves és nagymúltú gyártó termékei közül kerül ki!
-Alapozás és Szerkezet:
Pontalapozás 25 cm vastag vasbeton lemezalapra. Az épületek monolit vasbeton vázzal és statikailag méretezett födémekkel készülnek, kerámia és pórusbeton kitöltő falakkal.
-Falak:
A pincefalak és lépcsőházak vasbetonból, míg a külső falak Porotherm® vázkerámia és Silka® pórusbeton falazatok. Hőszigetelés és hangszigetelés a legmodernebb anyagokkal, biztosítva a komfortos lakótereket.
-Födém:
Monolit vasbeton födémek rejtett gerendákkal és akusztikai szigeteléssel, amelyek csökkentik a lépés- és légzajokat a lakásokban.
-Tető:
Antracit színű Prefa® korcolt lemez tető, amely tartós és esztétikus megoldás a vízelvezetés biztosítására.
-Nyílászárók:
Internorm® ablakok, 3 rétegű hőszigetelő üvegezéssel, jó légzárással és kellően akusztikusan optimalizált szerkezettel. a műanyag homlokzati nyílászárók redőnyszekrénnyel és motoros mozgatás előkészítéssel rendelkeznek.
-Erkélyek és Teraszok:
Csúszásmentes, fagyálló kerámia vagy gres burkolattal, rozsdamentes lakatos szerkezetű korlátokkal, biztonsági üveg betétekkel.
-Homlokzat:
15 cm hőszigetelés, fehér nemes vakolat, antracit kiegészítőkkel.
-Liftek:
Kleemann, 8 személyes (630 kg), eph védelemmel.
-Melegvíz:
Ariston Velis 100 l bojler lakásonként.
-Fűtés/hűtés:
Padlófűtés, Daikin levegő-víz hőszivattyú
Fan-coil hűtés nappaliban és hálóban
A hűtés és fűtés helységenként külön szabályozhatóak.
-Szellőzés:
Helyiségenkénti elszívók (fürdő, WC)
Konyhai szagelszívóhoz előkészítés
-Ajtók:
Bejárati: Westag®, biztonsági zár, akusztikai minősítés
Beltéri: Jeld-Wen®, cpl felületű, utólag szerelhető
-Burkolatok:
Vizes helyiségek: i. Oszt. Kerámia, 10. 000 Ft+áfa/ m²
Szobák: Laminált parketta, 10. 000 Ft+áfa/ m²
Erkélyek: Fagyálló kerámia/gres/kőporcelán, 10. 000 Ft+áfa/ m²
-Felületképzés:
Glettelés, diszperziós festés (fehér), Baumit® anyagokkal
-Konyha:
Gépészet, elektromos kiállások kialakítva, bútor nélkül
-Szaniterek:
Csapok Hans Grohe/ Grohe
Épített zuhany, üveg fallal
-Kapacitás: Lakásonként 1x32 a, mérők garázsfelhajtó alatt.
-Riasztó előkészítés: Védőcsövezés mozgás- és nyitásérzékelőkhöz.
-Okosotthon-rendszer előkészítés
-WIFI
KIEMELT SZOLGÁLTATÁSOK
-Energiatakarékos, távolról vezérelhető hűtő-fűtő rendszer
-4 hektáros privát erdő kizárólag a lakók számára
-Teljes körű ingatlanmenedzsment: bérbeadás, üzemeltetés, karbantartás
-Rendszámfelismerő sorompóval ellátott biztonságos parkolás
-garázs, mélygarázs, kültéri nyitott parkoló külön vásárolható
GARÁZS /mélygarázs/ kültéri nyitott PARKOLÓ
A projekthez 12 db önálló garázs, 10 teremgarázs és 58 db kültéri parkolóhely áll rendelkezésre, melyek közül igényéhez mérten választhat és külön megvásárolhat.
Önálló garázs 12, 7 M Ft/ db
Teremgarázs 6 M Ft/ db
Kültéri parkoló 3 M Ft / db
BÉRBEADÁS és MENEDZSMENT
A lakások rövid és hosszú távú kiadására is kiváló lehetőségek kínálkoznak, hiszen az építtető vállalja a teljes körű menedzsmentet, beleértve a bérbeadást, karbantartást és üzemeltetést. Az ügyfelek gyors ki- és beléptetése biztosítja a zavartalan élményt.
LOKÁCIÓ
A projekt közvetlen közelében boltok, éttermek, drogériák, cukrászdák és buszmegálló találhatók, így mindennapi szükségletei könnyedén elérhetők. Lélekben pihenhet a csodálatos Hévízi tó mellett, miközben minden városi kényelem a közelében van.
Keszthely 8 km, Zalacsány pedig 10 km autóút, ahol akár golfozásra is van lehetőség, Zalakaros 30 km.
Hévíz-Balaton Repülőtér 15 km, Budapest pedig körülbelül 2 órányira elérhető az új M76-os autóútnak köszönhetően!
Tér, természet, elegancia – Hévíz új életstílusa.
Ne csak egy lakást válasszon – döntsön életminőség mellett.
Ha Önnek a kényelem, a tiszta levegő és a hosszútávú, időtálló érték számít, itt megtalálja azt, amit keres.
Fektessen a jövőjébe!
AMENNYIBEN felkeltettem érdeklődését, forduljon hozzám bízalommal!
Ez az ingatlan a "Felező csomag" megbízási portfólióhoz tartozik. Részletek az Otthon Centrum weboldalán. Hitel.hu - Hasonlítsa össze a bankok lakáshitel ajánlatait

