Eladó jó állapotú lakás - Keszthely
- INGYENES HIRDETÉS FELADÁS
Ingatlan adatai
- Eladó vagy kiadó:Eladó
- Település:Keszthely
- Kategória:Lakás
- Alkategória:Tégla
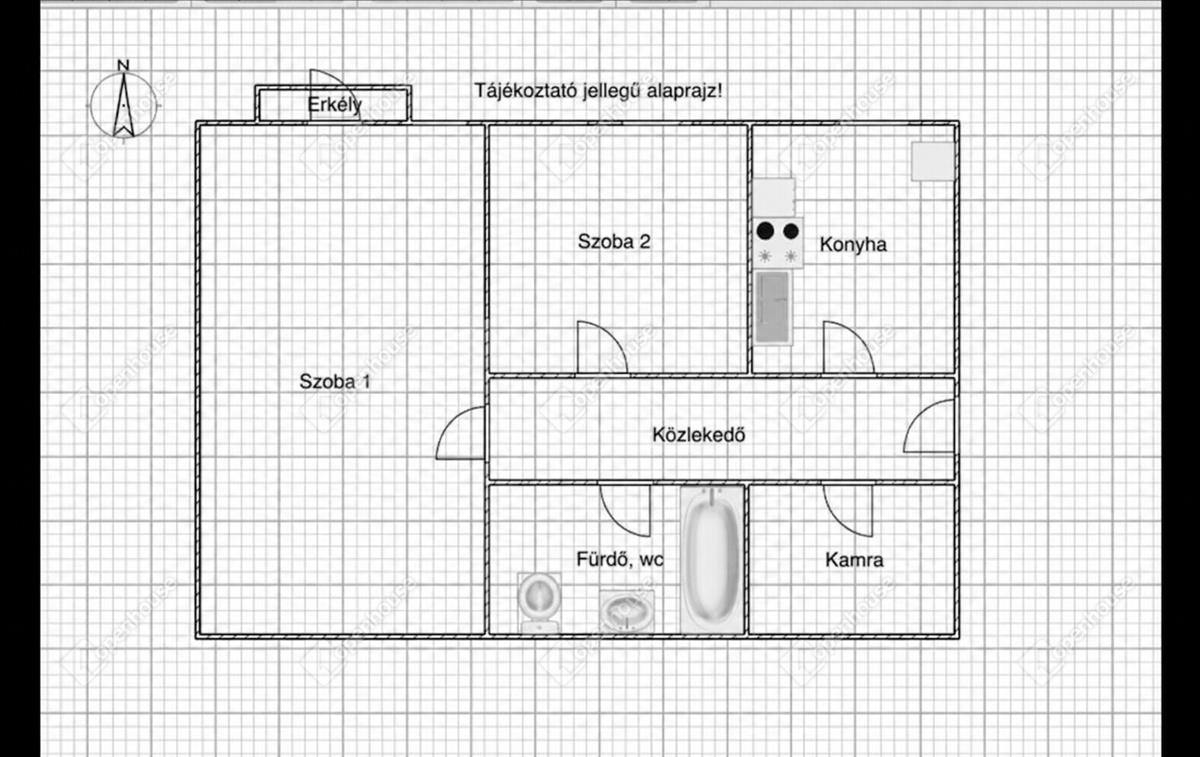
- Alapterület:43 m2
- Csere is:Nem
- Hirdető:Cég
- Élő videón megtekinthető:Nem
- Szobaszám:2
- Állapot:Jó állapotú
- Hány szintes az ingatlan:Földszintes
- Komfortosság:nincs megadva
- Hányadik emeleti:3
- Erkély:nincs megadva
- Lift:Nincs
- Parkolási lehetőség:Utcán
- Fűtés:Gáz (konvektor)
- Bútorozottság:nincs megadva
- Fényviszony:Napfényes
- Tájolás:NY
- Kilátás:nincs megadva
- Internet:nincs megadva
- Klíma:nincs megadva
- Akadálymentesített:nincs megadva
- Energiatanúsítvány:nincs megadva
- Villany:Van
- Víz:Van
- Gáz:nincs megadva
- Csatorna:Van
- Kapcsolatfelvétel

Hitel ajánlatok
Ingatlan hirdetés leírása
„Alakítsa saját stílusára – értékálló otthon Keszthely szívében.”
Az Openhouse Zalaegerszeg Ingatlaniroda kínálatában eladó a #181352 hivatkozási számú keszthelyi társasházi lakás.
Keszthely kertvárosi, nyugodt részén, a Szent Miklós utcában kínálunk megvételre egy 43 m²-es, 1, 5 szobás, téglaépítésű lakást, amely kiváló lehetőség akár saját otthonnak, akár befektetésnek.
Az ingatlan központi elhelyezkedésének köszönhetően minden fontos intézmény és szolgáltatás könnyen elérhető, mégis csendes, élhető környezetet biztosít. a lakás részben felújított állapotú, műanyag nyílászárókkal felszerelt, valamint klímaberendezéssel is rendelkezik, így a komfort adott a mindennapokhoz. a fűtésről konvektorok gondoskodnak, ami kedvező fenntartási költségeket tesz lehetővé.
A fürdőszoba jelenleg teljes felújítást igényel, ami egyben remek lehetőséget kínál arra, hogy az új tulajdonos saját ízlése szerint alakítsa ki ezt a teret. Az ingatlanhoz külön tároló is tartozik, ami praktikus megoldást nyújt a mindennapi használat során.
Kinek ajánljuk?
Ideális választás:
fiatal pároknak vagy első lakásvásárlóknak,
egyedülállóknak, akik egy jól alakítható otthont keresnek,
befektetőknek, akik értéknövelő lehetőséget látnak egy jó elhelyezkedésű ingatlanban.
Ha felkeltette érdeklődését ez az eladó keszthelyi társasházi lakás, vagy bármely más társasházi lakás és bővebb információt szeretne, keressen bizalommal. Hivatkozási szám: #181352
Az Openhouse Zalaegerszeg Ingatlaniroda tagjaként várom Önt az országos hálózatunk teljes kínálatával.
A társasházi lakás vásárláshoz hitelt igényelne? Ingyenes hitelközvetítéssel segít Önnek bankfüggetlen hitelszakértőnk.
További szolgáltatásainkkal (pl. Értékbecslés, energetikai tanúsítvány, jogi háttér) is segítjük Önt a vásárlásban.
Az otthon érték. Az ingatlan üzlet. FIX 3% lakáshitelre megvehető
Tetszett ez az eladó Keszthelyi jó állapotú 2 szobás tégla lakás? Hívd fel a hirdetőt most, és tudj meg mindent erről az eladó tégla lakásról! Ha gondolod nézelődj tovább az eladó lakás Keszthely oldal hirdetései között. Ennek az eladó lakásnak az ára 44900000 Ft és mivel az alapterülete 43 négyzetméter, ezért az átlagos négyzetméterára 1044186 HUF/m2.
Az eladó lakások menüpontban további hirdetések között is böngészhetsz. Ha van kedved, akkor böngészhetsz a Gecse Fruzsina Anett összes hirdetése között, vagy akár a/az Open House Openhouse Zalaegerszeg Ingatlaniroda összes hirdetése között is.
További hirdetéseket találsz az eladó Balaton északi parti nyaralók között. Ha a teljes régió kínálata érdekel, nézd meg az eladó Balatoni nyaralók oldalt.

