Eladó új építésű lakás - Keszthely
- INGYENES HIRDETÉS FELADÁS
Ingatlan adatai
- Eladó vagy kiadó:Eladó
- Település:Keszthely
- Kategória:Lakás
- Alkategória:Tégla
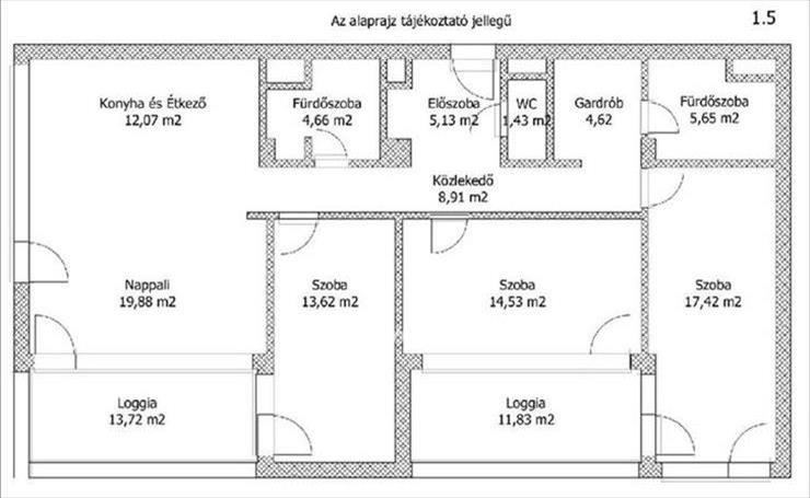
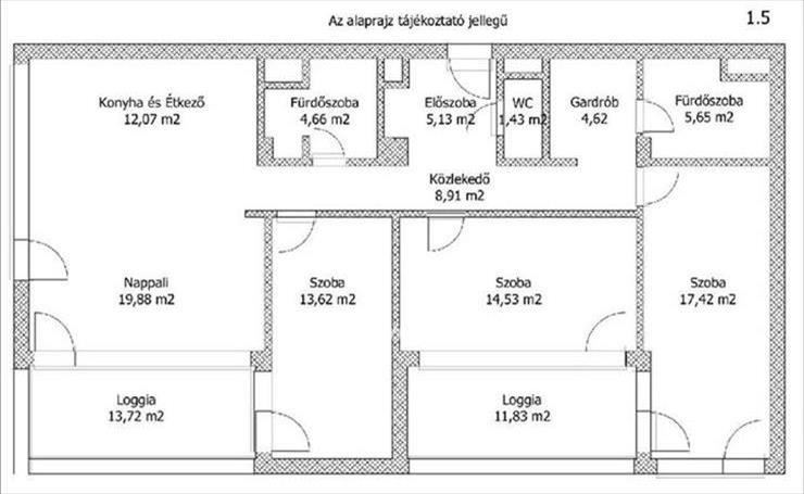
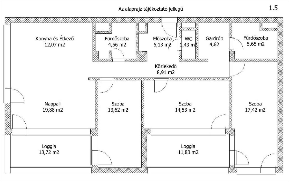
- Alapterület:120 m2
- Csere is:Nem
- Hirdető:Cég
- Élő videón megtekinthető:Nem
- Szobaszám:4
- Állapot:Új építésű
- Hány szintes az ingatlan:Földszintes
- Komfortosság:nincs megadva
- Hányadik emeleti:1
- Erkély:nincs megadva
- Lift:Van
- Parkolási lehetőség:Teremgarázsban
- Fűtés:Geotermikus
- Bútorozottság:nincs megadva
- Fényviszony:Jó
- Tájolás:nincs megadva
- Kilátás:nincs megadva
- Internet:nincs megadva
- Klíma:Van
- Akadálymentesített:nincs megadva
- Energiatanúsítvány:nincs megadva
- Villany:Van
- Víz:Van
- Gáz:nincs megadva
- Csatorna:Van
- Kapcsolatfelvétel

Hitel ajánlatok
Ingatlan hirdetés leírása
Eladó Lakás, Keszthely
Új építésű Balaton-parti lakások Keszthelyen.
A projekt keretében 5 épületből álló, 120 lakásos lakópark kerül kialakításra. a kulcsrakész, magas minőségű, okos otthon megoldással kialakított lakások várható műszaki átadása 2024. Harmadik negyedévétől veszi kezdetét.
- 5 Épületben összesen 120 lakás, 7 különböző méretben (34 m2 - 228 m2)
- Minden lakáshoz tartozik saját loggia, vagy terasz
- Privát, zárt lakópark, saját medencékkel, játszótérrel
- Geotermikus fűtési rendszer és napelem
- aa+ energetikai besorolás- 3 választható belsőépítészeti lehetőség
- Műszaki átadás 2024. Q3
Az épületek az Entz Géza sétány felől egy távirányítós rendszerrel ellátott sorompós behajtón, illetve személyi bejárón keresztül közelíthetőek meg. a lakóházak földszintjén fedett garázs, elektromos autó töltési lehetőség és zárt tárolók találhatók. Az épületek aljában kereskedelmi- és szolgáltatóegységek kerülnek kialakításra. a stúdió, közepes és deluxe méretű lakások elsőtől harmadik emeletig szintenként 7-7 lakással, saját loggia-val lettek tervezve. a felső, negyedik szinten összesen három lakás lesz kialakítva: két penthouse és egy közepes méretű, ezekhez privát terasz kapcsolódik. a lakópark 5 épülete azonos alaprajzi elrendezésű, csak a területen belüli elhelyezkedésükben különböznek. a négyszintes lakóépületekben különböző méretű lakásokat találunk, a 34 m2-es stúdió lakástól a 228 m2-es penthouse lakásig. Minden lakáshoz tartozik erkély, vagy terasz 12 m2-től 150 m2 -ig. Valamennyi lakáshoz földszinti, fedett garázs, kültéri parkoló és tároló is igény szerint vásárolható.
Kiemelkedő minőség és magas műszaki tartalom jellemzi a kulcsrakész lakásokat. a lakások hangszigetelt falakkal, ezenkívül 3 rétegű, prémium minőségű homlokzati és bejárati nyílászárókkal ellátottak. Minden lakáshoz tágas, intim loggia vagy terasz tartozik. a balatoni panorámás, penthouse lakások esetén jakuzzival való kialakítás is lehetséges. a lakópark lakásainak hűtését-fűtését mennyezeti hűtés-fűtés panelek szolgáltatják, amelynek teljesítményét az épületek körül telepített, kiváló hatásfokkal működő talajszonda mezők biztosítják. a rendszer megújuló energiát használ és a nagy méretű, mennyezetről leadott hősugárzó technológiának köszönhetően egyenletes hűtést-fűtést biztosít, amely emeli a lakások hőkomfort érzetét. a korábbi, egy területre irányított hűtő-fűtő rendszerektől eltérően, az egyenletes hőleadás következtében a lakásban nem alakulnak ki hidegebb vagy melegebb pontok. a tetőre installált napelem rendszerek a közösségi helyiségek, medencék és a külső világítás energiaigényeinek ellátásában játszanak jelentős szerepet. Az építtető célja olyan lakások, otthonok és nyaralók kivitelezése, melyek privát loggia-val, klimatizált, prémium minőségű alapanyagokkal, modern 21. Századi műszaki technológiával épülnek.
A lakóházak földszintjén fedett garázs, elektromos autótöltési lehetőség, egyéb tárolók találhatók, igény szerint vásárolható.
- Felszíni, szabadon álló parkolóhely: 3 000 000 Ft/db
- fedett parkoló: 6 000 000 Ft/db
- elektromos töltési lehetőséggel rendelkező parkoló: 7 000 000 Ft/db
- tároló helyiségek: 1 000 000 Ft-tól 2 200 000 Ft-ig/db
A több, mint 7 hektáros, ősfás telek területén gondozott parkok, játszó- és sport kertek, tanösvények, grillezéshez kialakított helyek, privát medencék és saját stég nyújt változatos és élményekben gazdag kikapcsolódási lehetőségeket. a területen megvalósuló lakópark a hely egyedülálló adottságait kihasználva, könnyed és látványos építészeti megjelenésével harmonikus lakókörnyezetet teremt.
Az OTP Ingatlanpont teljes körű ügyintézéssel áll az eladók és a vevők rendelkezésére. Az OTP Bank hátterével a kiválasztott ingatlan finanszírozásához kedvezményes hitelkonstrukciót kínálunk és díjmentes ügyintézést biztosítunk.
Amennyiben a hirdetés felkeltette érdeklődését, kérdése van, vagy szeretné személyesen megtekinteni, kérem, hívjon bizalommal! m274026
187800000 Ft
Referencia szám: m274026 Hitel.hu - Hasonlítsa össze a bankok lakáshitel ajánlatait
Tetszett ez az eladó Keszthelyi új építésű 4 szobás tégla lakás? Hívd fel a hirdetőt most, és tudj meg mindent erről az eladó tégla lakásról! Ha gondolod nézelődj tovább az eladó lakás Keszthely oldal hirdetései között. Ennek az eladó lakásnak az ára 187800000 Ft és mivel az alapterülete 120 négyzetméter, ezért az átlagos négyzetméterára 1565000 HUF/m2.
Az eladó lakások menüpontban további hirdetések között is böngészhetsz. Ha van kedved, akkor böngészhetsz a Vincze László György összes hirdetése között, vagy akár a/az OTPip Pécs Király utca 75 - OTP Ingatlanpont Iroda összes hirdetése között is.
További hirdetéseket találsz az eladó Balaton északi parti nyaralók között. Ha a teljes régió kínálata érdekel, nézd meg az eladó Balatoni nyaralók oldalt.

