Eladó új építésű lakás - Keszthely
- INGYENES HIRDETÉS FELADÁS
Ingatlan adatai
- Eladó vagy kiadó:Eladó
- Település:Keszthely
- Kategória:Lakás
- Alkategória:Tégla
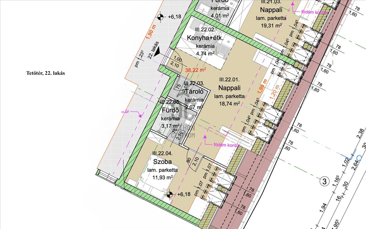
- Alapterület:38 m2
- Csere is:Nem
- Hirdető:Cég
- Élő videón megtekinthető:Nem
- Szobaszám:2
- Állapot:Új építésű
- Hány szintes az ingatlan:nincs megadva
- Komfortosság:nincs megadva
- Hányadik emeleti:nincs megadva
- Erkély:nincs megadva
- Lift:Van
- Parkolási lehetőség:nincs megadva
- Fűtés:nincs megadva
- Bútorozottság:nincs megadva
- Fényviszony:nincs megadva
- Tájolás:DK
- Kilátás:Utcai
- Internet:nincs megadva
- Klíma:nincs megadva
- Akadálymentesített:nincs megadva
- Energiatanúsítvány:nincs megadva
- Villany:Van
- Víz:Van
- Gáz:Utcában
- Csatorna:Van
- Kapcsolatfelvétel

Hitel ajánlatok
Ingatlan hirdetés leírása
AHOL A CSALÁD MINDEN TAGJA JÓL ÉREZHETI MAGÁT! KESZTHELY BELVÁ...
Ahol a család minden tagja jól érezheti MAGÁT!
KESZTHELY belvárosában, közel a sétáló utcához, különböző méretű
lakások, épülő 26 lakásos társasházban, 2028. II. Negyedév végi átadással
leköthetők!
A minőségi beépített anyagok kizárólag nagymúltú gyártók termékei közül
kerül ki. Egyedi tervezésének köszönhetően, hosszú távra kiváló otthon
érzetét kelti.
Az építkezés kezdete: 2026. Április
Kulcsrakész átadás: 2028. Július
MŰSZAKI TARTALOM:
-Pontalapozás 25 cm vastag vasbeton lemezalapra
-Monolit vasbeton vázzal és statikailag méretezett födémekkel, kerámia és
pórusbeton kitöltő falakkal
-A pincefalak és a lépcsőházak vasbetonból, míg a külső falak Porotherm
vázkerámia és Silka pórusbeton falazatok
-Hőszigetelés és hangszigetelés a legmodernebb anyagokkal, a komfortos
lakóterekért
-Monolit vasbeton födémek, rejtett gerendákkal és akusztikai szigeteléssel
-A műanyag homlokzati nyílászárók három rétegű üvegezéssel, jó légzárással,
redőnyszekrénnyel és motoros mozgatás előkészítéssel rendelkeznek
-Az erkélyek csúszásmentes és fagyálló gres burkolattal
-Homlokzat 15 cm-es hőszigetelés, fehér nemes vakolat
-Kleemann 8 személyes lift eph védelemmel
-Melegvíz, Ariston Velis bojler
-Padlófűtés „Daikin” hőszivattyú
-Riasztó előkészítés
-Konyha: gépészet, elektromos kiállások kialakítva, bútor nélkül
-Épített zuhany, üveg fallal
-Vizes helyiségek: kerámia 7 500. - Ft + áfa / nm
-Szobák: laminált parketta 7 500. -Ft. + Áfa / nm
-Falak: diszperziós festés fehér Baumit anyagokkal
-Kapacitás: lakásonként 32 A
- Lakás méretek: 38 m2 - 68 m2-Ig
ÉRTÉKESÍTÉSI ÜTEMTERV:
- Foglaló: 10% + 10% vételár előleg
KÜLÖN HOZZÁVÁSÁROLHATÓ
A projekthez 29 teremgarázs tartozik: 6, 5 M Ft/ db. FIX 3% lakáshitelre megvehető
Tetszett ez az eladó Keszthelyi új építésű 2 szobás tégla lakás? Hívd fel a hirdetőt most, és tudj meg mindent erről az eladó tégla lakásról! Ha gondolod nézelődj tovább az eladó lakás Keszthely oldal hirdetései között. Ennek az eladó lakásnak az ára 45480000 Ft és mivel az alapterülete 38 négyzetméter, ezért az átlagos négyzetméterára 1196842 HUF/m2.
Az eladó lakások menüpontban további hirdetések között is böngészhetsz. Ha van kedved, akkor böngészhetsz a Kajdel Zsuzsa összes hirdetése között, vagy akár a/az Otthon Centrum Keszthely - Kossuth Lajos utca összes hirdetése között is.
További hirdetéseket találsz az eladó Balaton északi parti nyaralók között. Ha a teljes régió kínálata érdekel, nézd meg az eladó Balatoni nyaralók oldalt.

