Eladó jó állapotú lakás - Komárom
- INGYENES HIRDETÉS FELADÁS
Ingatlan adatai
- Eladó vagy kiadó:Eladó
- Település:Komárom
- Kategória:Lakás
- Alkategória:Tégla
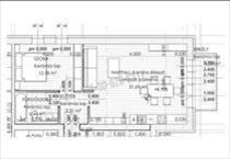
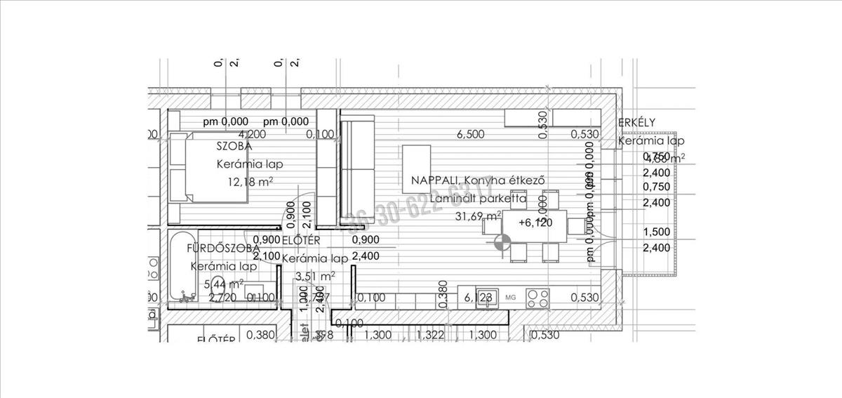
- Alapterület:59 m2
- Csere is:Nem
- Hirdető:Cég
- Élő videón megtekinthető:Nem
- Szobaszám:2
- Állapot:Jó állapotú
- Hány szintes az ingatlan:nincs megadva
- Komfortosság:Komfortos
- Hányadik emeleti:2
- Erkély:Nincs
- Lift:Nincs
- Parkolási lehetőség:Nincs
- Fűtés:Gáz (konvektor)
- Bútorozottság:nincs megadva
- Fényviszony:nincs megadva
- Tájolás:nincs megadva
- Kilátás:Utcai
- Internet:nincs megadva
- Klíma:nincs megadva
- Akadálymentesített:nincs megadva
- Energiatanúsítvány:nincs megadva
- Villany:Van
- Víz:Van
- Gáz:Van
- Csatorna:Van
- Kapcsolatfelvétel

Nagy Edit
+36-(30)-622-6317
Mondd meg a hirdetőnek, hogy a megveszLAK-on találtad a hirdetést.
Hitel ajánlatok
Ingatlan hirdetés leírása
Eladó Tégla lakás, Komárom, 59nm, 54762000 Ft
Új építésű, modern otthonok Komárom látványosan fejlődő, kedvelt részén – erkéllyel, saját tárolóval és parkolóval!
KULCSRAKÉSZ átadás: 2025 ŐSZÉN
Ha minőségi otthont keresel, vagy biztos befektetésben gondolkodsz, ezt a lehetőséget nem érdemes kihagynod!
Miért válaszd ezt a projektet?
- Gazdaságos fenntartás – modern hőszivattyús fűtési és hűtési rendszer
- Korszerű technológia – minőségi építőanyagok és 3 rétegű üvegezésű nyílászárók
- Tökéletes elhelyezkedés – közel a Duna-parthoz, a Csillag erődhöz és a termálfürdőhöz
- Kiváló közlekedés – pár perc a városközpont
A társasházról:
- 3 emeletes, 15 lakásos modern, zárt épület
- a földszinten üzlethelyiség
- Minden lakáshoz erkély, saját tároló és parkoló tartozik
II. emelet, 5. Lakás:
➡ Alapterület: 59, 18 m² – 47. 538. 000 Ft
➡ Erkély: 4, 86 m² – 4. 374. 000 Ft
➡ Tároló: 1, 5 m² – 1. 350. 000 Ft
➡ Kültéri parkoló: 1. 500. 000 Ft
Bruttó összesen: 54. 762. 000 Ft
Kulcsrakész műszaki tartalom:
Szerkezet és falak:
- 38 cm égetett kerámia falazóelem
- Homlokzati szigetelés – dryvit rendszer cemix vakolattal
- Válaszfalak: 10 cm-es porotherm válaszfallap
- Lakáselválasztó fal: 20 cm-es silka hanggátló fal
Nyílászárók:
- Műanyag profilrendszerű ablakok és erkélyajtók – 3 rétegű üvegezéssel (REHAU)
- Árnyékolástechnika
Belső ajtók:
- Furatolt faforgácslap ajtók átfogótokkal, festett kivitelben
Felületképzés:
- Vakolt, glettelt falak, 2 rétegű diszperziós festéssel
- Fürdőszoba teljes fali csempézéssel
Gépészet:
- Lakásonként levegő-víz hőszivattyús rendszer – padlófűtés és fan-coilos hűtés
- Áramellátás: 1×32 a + H tarifa a hőszivattyúnak
Villamoshálózat:
- Kapcsolók és dugaljak: Schneider típusú szerelvények
- Lámpa előkészítés biztosított
Gyengeáramú szerelés:
- Kaputelefon rendszer
- tv és internet hálózat (pick-up Kft. Szolgáltató)
Beépített szaniterek:
- Fürdőszoba: Alföldi fali wc, Como mosdó (60 cm) + szekrény, 170×75 cm fürdőkád, Kludi csaptelepek
- 1 db törölközőszárítós elektromos radiátor
- Konyhabútor opcionálisan rendelhető
Beépített burkolatok ára:
Fürdő + wc csempe: 5. 500 Ft + ÁFA/m²
Járólap: 5. 500 Ft + ÁFA/m²
Szobák és nappali laminált padló: 3. 900 Ft + ÁFA/m²
Erkély: fagyálló kerámia
Finanszírozás és ügyintézés:
INGYENES hitelszűrés és tanácsadás – 18 bank ajánlatából választhatod ki a legjobbat!
CSOK Plusz, kamattámogatott hitelek és Babaváró hitel igényelhető
Teljes körű jogi képviselet
Ne dönts, amíg ezt az ingatlant nem láttad!
Érdeklődj most és foglald le álmaid otthonát! Nagy Edit 06 30 6 226 317 FIX 3% lakáshitelre megvehető
Tetszett ez az eladó Komáromi jó állapotú 2 szobás tégla lakás? Hívd fel a hirdetőt most, és tudj meg mindent erről az eladó tégla lakásról! Ha gondolod nézelődj tovább az eladó lakás Komárom oldal hirdetései között. Ennek az eladó lakásnak az ára 54762000 Ft és mivel az alapterülete 59 négyzetméter, ezért az átlagos négyzetméterára 928169 HUF/m2.
Az eladó lakások menüpontban további hirdetések között is böngészhetsz. Ha van kedved, akkor böngészhetsz a Nagy Edit összes hirdetése között, vagy akár a/az Dot-Ing 2001 Ingatlanirodák Kft. összes hirdetése között is.

