Eladó jó állapotú lakás Komló
| Kedvencbe | Megosztás | Árfigyelő |
| FIX 3% lakáshitelre megvehető | ||
| 35 400 000 HUF | ||
Ingatlan adatai
- Eladó vagy kiadó:Eladó
- Település:Komló
- Kategória:Lakás
- Alkategória:Tégla
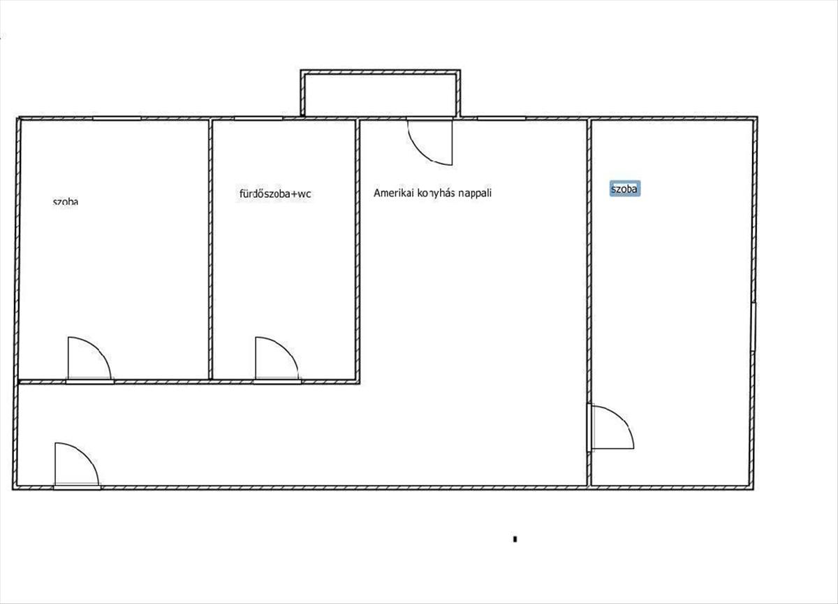
- Alapterület:52 m2
- Csere is:Nem
- Hirdető:Cég
- Élő videón megtekinthető:Nem
- Szobaszám:2
- Állapot:Jó állapotú
- Hány szintes az ingatlan:Földszintes
- Komfortosság:nincs megadva
- Hányadik emeleti:1
- Lift:Nincs
- Parkolási lehetőség:nincs megadva
- Fűtés:Elektromos
- Bútorozottság:nincs megadva
- Fényviszony:Napfényes
- Tájolás:nincs megadva
- Kilátás:nincs megadva
- Internet:nincs megadva
- Akadálymentesített:nincs megadva
- Energiatanúsítvány:nincs megadva
- Villany:Van
- Víz:Van
- Gáz:nincs megadva
- Csatorna:Van
- Közös költség:14 500 Ft
- Üzenetküldés
- Hívás

Referencia szám: M316240

Hitel ajánlat
Ingatlan hirdetés leírása
Eladó Lakás, Komló, Eladó jó állapotú lakás - Komló
Azonnal költözhető, felújított 52 nm-es tégla lakás Komlón!Kökönyös városrészben, 1. emeleten eladó erkélyes, 2 hálószoba + amerikai konyhás nappali elrendezésű ingatlan.
Modern megoldásokkal: infra padlófűtés, új nyílászárók, elektromos redőnyök, gépesített konyha, kényelmes nagy zuhanyzós fürdőszoba.
Kiváló közlekedés Pécs felé, iskola és óvoda a közelben.
Ne maradj le, hívj még ma, nézzük meg együtt! M316240 FIX 3% lakáshitelre megvehető

