Eladó átlagos állapotú lakás - Komló
- INGYENES HIRDETÉS FELADÁS
Ingatlan adatai
- Eladó vagy kiadó:Eladó
- Település:Komló
- Kategória:Lakás
- Alkategória:Tégla
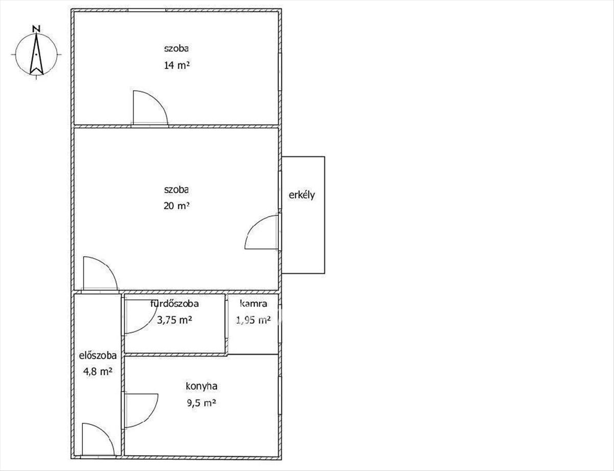
- Alapterület:50 m2
- Csere is:Nem
- Hirdető:Cég
- Élő videón megtekinthető:Nem
- Szobaszám:2
- Állapot:Átlagos állapotú
- Hány szintes az ingatlan:Földszintes
- Komfortosság:nincs megadva
- Hányadik emeleti:2
- Erkély:nincs megadva
- Lift:Nincs
- Parkolási lehetőség:nincs megadva
- Fűtés:Elektromos
- Bútorozottság:nincs megadva
- Fényviszony:Napfényes
- Tájolás:nincs megadva
- Kilátás:nincs megadva
- Internet:nincs megadva
- Klíma:nincs megadva
- Akadálymentesített:nincs megadva
- Energiatanúsítvány:E
- Villany:Van
- Víz:Van
- Gáz:nincs megadva
- Csatorna:Van
- Közös költség:13 300 Ft
- Kapcsolatfelvétel

Rózsavölgyi Csilla
+36-(20)-390-8005
Mondd meg a hirdetőnek, hogy a megveszLAK-on találtad a hirdetést.
Referencia szám: M317260
Hitel ajánlatok
Ingatlan hirdetés leírása
Eladó Lakás, Komló, Eladó átlagos állapotú lakás - Komló
2 Szobás 2. emeleti lakás eladó Komlón a Kökönyösben a Vájáriskola utcában.
2 Emeletes tégla ház legfelső emeletén van. Csendes környezetben, kellemes szomszédokkal. Átlagos állapotú az összes nyílászárót műanyagra cserélték, redőnnyel. a fűtés gázkészülékkel, hőtárolós kályhával, és cserépkályhával is megoldható. Keleti irányba néz az erkélye utcai kilátással. Parkolni a ház előtt lehet, mindig van szabad hely. Az alagsorban tároló tartozik hozzá, ahová a babakocsit, vagy a kerékpárokat be lehet rakni. Játszótér, óvoda stb. Van a közelben. Sart 3 %-os hitelre is alkalmas.
Referenciaszám: M317260
20300000 Ft FIX 3% lakáshitelre megvehető

