- >>
- eladó ingatlanok
- >>
- eladó lakás
- >>
- eladó lakás Komló
- >>
Eladó jó állapotú lakás - Komló
| | |||
| Kedvencnek jelölöm | Elküldöm emailben | Megosztás | Szavazás |
| FIX 3% lakáshitelre megvehető | |||
| 42 800 000 HUF | |||
Ingatlan adatai
- Eladó vagy kiadó:Eladó
- Település:Komló
- Kategória:Lakás
- Alkategória:Tégla
- Alapterület:98 m2
- Csere is:Nem
- Hirdető:Cég
- Élő videón megtekinthető:Nem
- Szobaszám:3 + 1 fél
- Állapot:Jó állapotú
- Hány szintes az ingatlan:Földszintes
- Komfortosság:nincs megadva
- Hányadik emeleti:1
- Lift:Nincs
- Parkolási lehetőség:Teremgarázsban
- Fűtés:Gáz (cirko)
- Bútorozottság:nincs megadva
- Fényviszony:Napfényes
- Tájolás:nincs megadva
- Kilátás:nincs megadva
- Internet:nincs megadva
- Akadálymentesített:nincs megadva
- Energiatanúsítvány:C
- Villany:Van
- Víz:Van
- Gáz:nincs megadva
- Csatorna:Van
- Közös költség:2 000 Ft
- Üzenetküldés
- Hívás

Referencia szám: M294498

Hitel ajánlat
Ingatlan hirdetés leírása
Eladó Lakás, Komló, Eladó jó állapotú lakás - Komló
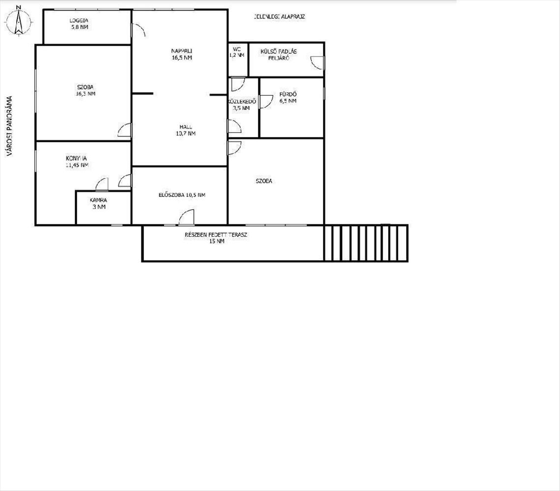
Egyedülálló lehetőség!Gyönyörű panorámával rendelkező 98 nm-es 3+1 szobás, nagy teraszos, kertrésszel rendelkező lakás Komló egyik legkedveltebb környékén eladó!
A 60-as években épült 4 lakásos társasházban lévő legfelső emeleti lakás kiváló elhelyezkedésű, csendes környezetben található, távol a városi nyüzsgéstől.
A társasház a parkolótól egy másik társasház takarásában fekszik, így biztosítja a lakás csendjét, nyugalmát.
A frissen festett otthon tágas és világos, modern berendezésekkel felszerelt. Az opcionálisan hozzá vásárolható garázstól egy gyalogos járdán keresztül közelíthető meg, 10 lépcső visz a bejárat előtti teraszra. a műfüves, virágokkal borított 15 nm-es terasz egész évben használható, mivel egy része fedett. Egy kényelmes étkező garnitúra is elfér itt, így egy kávét, reggelit is elfogyaszthatunk a társasház kertjében gyönyörködve.
Innen jutunk be a 10 nm-es, nagy méretű gardróbszekrénnyel rendelkező ablakos előszobába, ahol a család sok ruhája, vagy akár háztartási gépe elfér. Innen nyílik a szintén tágas hall, illetve az újszerű, templomra néző étkező-konyha a másik irányba, mely teljesen gépesített. Az ebből nyíló, ablakkal rendelkező, jól szellőző kamrában két hűtő, továbbá nagy polcok találhatók a befőttek, tartós élelmiszerek tárolása céljából.
A hallból (vagy akár étkezőként is használható félszobából) haladva csillag alakzatban jutunk el a 15, 5 és 16, 3 nm-es hálószobákhoz. Mindkettőben elfér egy francia ágy, íróasztal, így akár gyermekes családok vagy középkorú pár részére is kényelmes otthont nyújt a lakás.
A hall másik ajtaján egy közlekedőn keresztül a stílusos, ablakkal, természetes fénnyel rendelkező fürdőszobához jutunk, melyben sarokkád és zuhany is helyet kapott. Itt is illetve a mellette lévő külön mellékhelyiségben is van wc, a lakás dupla komfortos.
A lakásban található tágas hálószobák közül az egyik a teraszra, a másik pedig városi panorámára néz. a szellős otthonban külön nappali található, melyhez egy fedett veranda csatlakozik, mely lehetőséget ad szabadidős tevékenységekre, szerszám tárolásra vagy akár további szoba kialakítására.
A hallal jelenleg egybenyíló nappali kényelmes teret biztosít szórakozáshoz és pihenéshez egyaránt. a nappaliból nyílik egy fedett veranda, mely jelenleg leginkább szerszámtárolóként funkcionál, de akár télikertként funkcionálhat vagy plusz szoba is kialakítható belőle.
A nappali egy ajtóval igény szerint a halltól elválasztható, illetve a sok válaszfalnak köszönhetően a konyha szobává történő átalakításával a lakás nappali+3 vagy 4 szobássá alakítható a veranda terhére.
A lakás fűtését elektromos rendszer, cserépkályha és kandalló biztosítja, míg a gáz csatlakozás a kertben található, amely további hatékony fűtés kialakíthatóságát biztosítja.
Az akár számos bútorral együtt megvásárolható szép állapotú lakásban az utóbbi 10 éven az alábbi felújítások történtek: konyhabútor beépítése új gépekkel, fürdőszoba komplett felújítása bútorral, mosógéppel beépítve, illetve beépítésre került a szobákban a 2 rétegű műanyag nyílászáró redőnnyel, biztonsági ráccsal. a lakás riasztórendszerrel és távfelügyelettel van ellátva. a 60 cm-es kő falazat miatt a klímatizálásra nem volt szükség, mivel nyáron akár 15 fokkal is hűvösebb van a lakásban.
A házon a tetőt és a kéményeket szintén az elmúlt 10 éven belül újíttatta fel a lakóközösség.
A lakáshoz alapító okirat szerint tartozik egy kb 3 nm-es pince, fatároló, mely a cserépkályha, látványkandalló használata mellett nagy előny, de a karácsonyfa díszek, kerti bútorok is kényelmesen elférnek itt.
A lakáshoz szokásjog szerint tartozik egy kis kertrész a közös tulajdonból, mely ideális terület a szabadidős tevékenységekhez, ahol a gyerekek játszani, focizni tudnak és a felnőttek pihenhetnek. Az örökzöld sövény biztosítja a szélsőséges időjárási viszonyoktól való védelmet, lehetővé téve az egész évben való használatot.
A két közös padlás lehetőséget biztosít a szomszédoknak a tárolásra vagy egyéb célokra történő használatra, melyet két-két szomszéd közösen használ, ez igen nagy méretű, akár a további beépítés lehetőségét is magában hordozza.
A lakáshoz opcionálisan 4 M Ft-ért vásárolható egy modern, 2010-ben épült tégla garázs soron Hörmann elektromos billenőajtóval felszerelt kb 20 nm-es garázs, amely elektromos árammal is felszerelt.
Emellett a közelben található egy további 18 nm-es garázs és egy 14 nm-es tároló, mely opcionálisan szintén megvásárolható, további 2 M Ft-ért.
A társasház eredeti célja az orvosok számára történő építés volt, amely magas presztízzsel rendelkezik. a lakás elhelyezkedése, panorámás kilátása és az erdő közelsége révén kiváló levegő- és életminőséget és csendes környezetet kínál.
Ez a közel 100 nm-es tágas és jól szervezett lakás ideális akár egy családnak vagy idősebb pároknak is.
Fiatal párok és családoknak: a szép kialakítású és tágas 3 szobás lakás ideális választás lehet fiatal pároknak vagy kisgyermekes családoknak. Az elrendezése és mérete lehetővé teszi, hogy kényelmesen elférjenek benne anélkül, hogy zsúfoltnak éreznék magukat. a csatolt alaprajzoknak köszönhetően a lakásszámos átalakítási lehetőséget magában hordoz.
Középkorú pároknak: Azok a párok, akiknek nincsenek gyermekeik, vagy akik felnőtt gyermekeik már költöztek el otthonról, ezt a lakást ideális otthonnak találhatják, mivel a nagy méretű szobák lehetőséget biztosítanak számukra otthoni irodai célokra vagy vendégszobaként is.
Befektetők vagy kiadás céljára: Az ingatlan lokációja, mérete és kialakítása miatt ez a lakás vonzó lehet befektetők vagy kiadók számára is. a két szoba különféle igényekhez igazítható, ami lehetővé teszi az ingatlan hosszú távú bérbeadását vagy rövid távú hasznosítást Pécs, Orfű, Abaliget közelsége miatt, az alacsonyabb nm árak okán ugyanakkor kiváló lokációban!
További kérdései kapcsán keressen bizalommal!
Referencia szám: m294498 FIX 3% lakáshitelre megvehető

