Eladó új építésű lakás - Mende
- INGYENES HIRDETÉS FELADÁS
Ingatlan adatai
- Eladó vagy kiadó:Eladó
- Település:Mende
- Kategória:Lakás
- Alkategória:Tégla
- Alapterület:43 m2
- Csere is:Nem
- Hirdető:Cég
- Élő videón megtekinthető:Nem
- Szobaszám:2
- Állapot:Új építésű
- Hány szintes az ingatlan:2 szintes
- Komfortosság:nincs megadva
- Hányadik emeleti:1
- Erkély:nincs megadva
- Lift:nincs megadva
- Parkolási lehetőség:nincs megadva
- Fűtés:nincs megadva
- Bútorozottság:nincs megadva
- Fényviszony:nincs megadva
- Tájolás:nincs megadva
- Kilátás:nincs megadva
- Internet:nincs megadva
- Klíma:nincs megadva
- Akadálymentesített:nincs megadva
- Energiatanúsítvány:nincs megadva
- Villany:nincs megadva
- Víz:nincs megadva
- Gáz:nincs megadva
- Csatorna:nincs megadva
- Kapcsolatfelvétel

Nyegrutz Tamás
+36-(30)-560-5587
Mondd meg a hirdetőnek, hogy a megveszLAK-on találtad a hirdetést.
Hitel ajánlatok
Ingatlan hirdetés leírása
UTOLSÓ LAKÁS! Mendén csodálatos zöld környezetben a Hétdomb la...
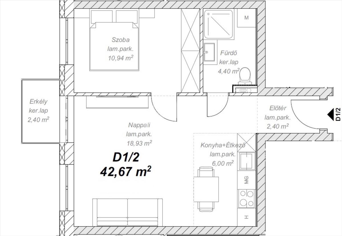
Utolsó lakás! Mendén csodálatos zöld környezetben a Hétdomb lakóparkban, i. Ütem második szakaszában megvalósuló új építésű zárt lakóparkban, a. Kategóriás energiatakarékos ( hőszivattyús ) 16 lakásos társasházban, nettó hasznos 42, 67 m² alapterületű, i. emeleti erkélyes lakást kínálunk eladásra ( D épület i. emelet 2. Lakás ).
A kivitelező cég szem előtt tartja az alacsony rezsiköltséget, ezért a projekt a legkorszerűbb követelményeknek megfelel, ( lásd műszaki tartalom ).
Az épületek társasházzá lesznek nyilvánítva, így a lakások külön helyrajzi számmal azaz albetéttel rendelkeznek majd.
A lakások fűtését hőszivattyú biztosítja padlófűtéses hőleadással, a használati melegvíz ellátást minden lakásban hőszivattyús bojler biztosítja.
Külső felszíni kocsibeálló bruttó ára: 2 MFt. /Db.
Belső sorompós kocsibeálló ára: 2, 5 MFt/db ; elektromos töltési lehetőséggel: 3 MFt. /Db.
Tároló bruttó ára: 2 MFt. /Db.
D. Épület vállalt befejezési ideje kulcsrakészen legkésőbb: 2026. 05. 31.
D. Épület várható használatbavételi engedélye legkésőbb: 2026. 08. 30
Műszaki tartalom ( részlet ):
-Alapozás: Monolit vasbeton lemezalapozás
-Teherhordó falazat: Porotherm vázkerámia falazat, érintkező falaknál silka (hanggátló) mészhomoktégla falazat
-Válaszfalak: Falazott vagy Gipszkarton válaszfalak, kétoldali vakolással vagy gletteléssel
-Tetőszerkezet: Szeglemezes rácsostartó faváz szerkezet
-Nyílászárók: Fokozott légzárású 3 rtg-ű műanyag nyílászárók / k=min. : 1, 0 W/m2K /
-Vízszigetelés: 1, 2 rtg vagy kent modifikált bitumenes vastaglemez szigetelés
-Hőszigetelés: Lábazaton 15 xps hőszigetelés, oldalfalon 15 cm eps hőszigetelés
-Héjalás: Cserépfedés, bádogos kiegészítő elemekkel
-Homlokzatburkolatok: Homlokzati színezett vakolat
-Padlóburkolatok: Kerámia hidegburkolatok, laminált parketta melegburkolatok
-Falburkolatok: Belső oldali vakolat, festve, felület kezelve, vizes helyiségekben kerámia burkolat
Az ingatlan részletes ismertetése és bemutatása, előre egyeztetett időpontban lehetséges, amelyet nagyon rugalmasan kezelünk, akár hétvégén is.
További kérdéseivel kapcsolatban várom a jelentkezését.
Amennyiben Önnek a vásárláshoz szüksége lenne hitelre, babaváró kölcsönre, lakástakarékra, stb. , Kezdeményezheti a kapcsolatfelvételt bankfüggetlen hitelügyintézőinkkel, teljesen DÍJMENTESEN.
Közel 25 év szakmai tapasztalattal rendelkezem, eladó vagy kiadó ingatlana értékesítése vagy bérbeadása esetén, készséggel állok az Ön rendelkezésére is, keressen bizalommal. FIX 3% lakáshitelre megvehető
Tetszett ez az eladó Mendei új építésű 2 szobás tégla lakás? Hívd fel a hirdetőt most, és tudj meg mindent erről az eladó tégla lakásról! Ha gondolod nézelődj tovább az eladó lakás Mende oldal hirdetései között. Ennek az eladó lakásnak az ára 45900000 Ft és mivel az alapterülete 43 négyzetméter, ezért az átlagos négyzetméterára 1067442 HUF/m2.
Az eladó lakások menüpontban további hirdetések között is böngészhetsz. Ha van kedved, akkor böngészhetsz a Nyegrutz Tamás összes hirdetése között, vagy akár a/az GDN Ingatlanhálózat összes hirdetése között is.

