Eladó átlagos állapotú lakás - Mezőhegyes
- INGYENES HIRDETÉS FELADÁS
Ingatlan adatai
- Eladó vagy kiadó:Eladó
- Település:Mezőhegyes
- Kategória:Lakás
- Alkategória:Tégla
- Alapterület:48 m2
- Csere is:Nem
- Hirdető:Cég
- Élő videón megtekinthető:Nem
- Szobaszám:2 + 1 fél
- Állapot:Átlagos állapotú
- Hány szintes az ingatlan:Földszintes
- Komfortosság:nincs megadva
- Hányadik emeleti:Földszint
- Erkély:nincs megadva
- Lift:Nincs
- Parkolási lehetőség:Udvaron
- Fűtés:Egyéb
- Bútorozottság:nincs megadva
- Fényviszony:Gyenge
- Tájolás:nincs megadva
- Kilátás:nincs megadva
- Internet:nincs megadva
- Klíma:nincs megadva
- Akadálymentesített:nincs megadva
- Energiatanúsítvány:nincs megadva
- Villany:Van
- Víz:Van
- Gáz:nincs megadva
- Csatorna:Van
- Kapcsolatfelvétel

Orovecz Józsefné
+36-(30)-535-2397
Mondd meg a hirdetőnek, hogy a megveszLAK-on találtad a hirdetést.
Referencia szám: M299012
Ingatlan hirdetés leírása
Eladó Lakás, Mezőhegyes
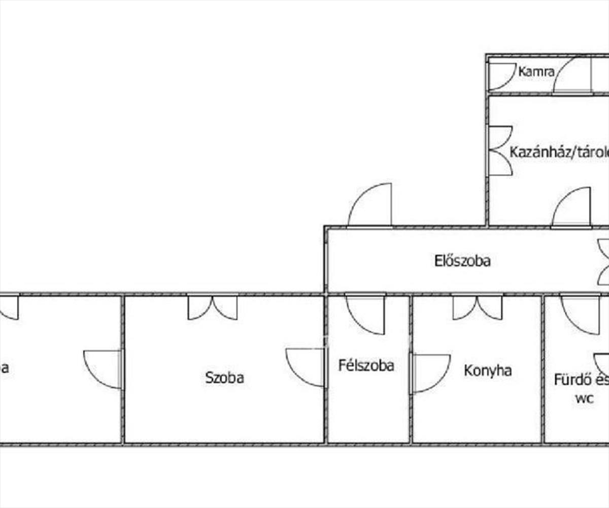
Eladó Békés vármegyében, Mezőhegyes város külterületén, a városközponttól mintegy 7 km-re egy eredetileg 48 m2-es, de összeépítéssel 69 m2-re bővített 2 szoba, 1 félszoba, konyha, fürdőszoba és wc (egyben), valamint előszoba, kazánház/tároló és kamra helyiségekből álló, tégla építésű, átlagos állapotú sorházi lakás!
A lakáshoz góré, tárolás céljáró szolgáló melléképület és saját, elkerített nagyobb udvar tartozik. Az udvar gondozott. Az udvaron kerti csap is van, mely locsolásra is alkalmas. Az ingatlan hátsó kapuja elektromos.
A lakás melegét vegyes tüzelésű kazán és kályha adja, minden szobában van radiátor. a fürdőszobában a meleg vízről bojler gondoskodik.
A lakás felújításra, korszerűsítésre szorul, de az épület szerkezetileg stabil, jó állapotú.
Az udvar hangulatos, akár kiváló hétvégi ház vagy nyaraló alakítható ki az ingatlanból.
Parkolás az udvaron lehetséges, nyílt kocsibeállón.
Az ingatlan tehermentes.
Az ingatlan adásvétel után 60 napon belül birtokba vehető!
Ha felkeltettem érdeklődését, keressen bizalommal!
Vagy esetleg ingatlant adna el? Akkor is keressen bátran a megadott telefonszámon! Legyen Ön is megbízónk, és adja el rajtunk keresztül ingatlanát!
Akár ingyenes árkalkulációt is szívesen végzünk Önnek, további kötöttségek nélkül!
Az OTP Ingatlanpontnál évről-évre több ügyfelünknek segítünk abban, hogy maximális áron, problémamentesen tudják eladni ingatlanukat. Képzett és tapasztalt tanácsadóink kiválóan ismerik az ingatlanpiacot, szakmai tudásuk és piacismeretük révén végig segítséget tudnak nyújtani Önnek a sikeres értékesítés folyamatában.
Referencia szám: m299012 FIX 3% lakáshitelre megvehető


