Eladó jó állapotú lakás Miskolc
| Kedvencbe | Megosztás | Árfigyelő |
| FIX 3% lakáshitelre megvehető | ||
| 27 300 000 HUF | ||
Ingatlan adatai
- Eladó vagy kiadó:Eladó
- Település:Miskolc
- Kategória:Lakás
- Alkategória:Tégla
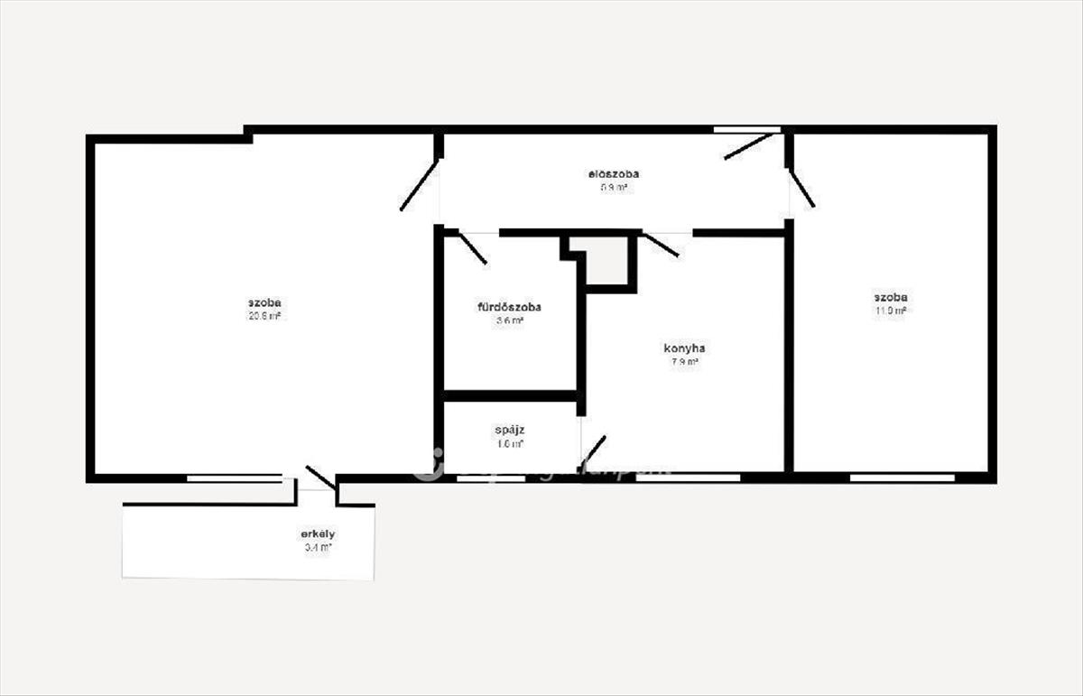
- Alapterület:51 m2
- Csere is:Nem
- Hirdető:Cég
- Élő videón megtekinthető:Nem
- Szobaszám:1 + 1 fél
- Állapot:Jó állapotú
- Hány szintes az ingatlan:Földszintes
- Komfortosság:nincs megadva
- Hányadik emeleti:1
- Lift:Nincs
- Parkolási lehetőség:nincs megadva
- Fűtés:Gáz (konvektor)
- Bútorozottság:nincs megadva
- Fényviszony:Jó
- Tájolás:nincs megadva
- Kilátás:nincs megadva
- Internet:nincs megadva
- Akadálymentesített:nincs megadva
- Energiatanúsítvány:nincs megadva
- Villany:Van
- Víz:Van
- Gáz:nincs megadva
- Csatorna:Van
- Közös költség:10 000 Ft
- Üzenetküldés
- Hívás

Referencia szám: M318378

Hitel ajánlat
Ingatlan hirdetés leírása
Eladó Lakás, Miskolc
Kivételes ajánlat miskolcon! Felújított 2 szobás téglalakás azonnali KÖLTÖZÉSSEL!Ne keressen tovább, ha egy kifogástalan állapotú, azonnal költözhető otthont keres Miskolcon, a közkedvelt Torontáli úton! Kínálunk egy rendkívül igényesen felújított, 51 nm-es, 2 szobás téglalakást, amely az első emeleten található, így ideális elhelyezkedést biztosít a házban.
A lakás felújítása során a minőség és a modern esztétika volt a fő szempont. a terek frissen cserélt, új burkolatokat kaptak, és egy vadonatúj, modern konyha került beépítésre, amely garantálja, hogy Önnek már csak a beköltözéssel kelljen foglalkoznia. a melegvíz-ellátásról egy energiatakarékos villanybojler gondoskodik, segítve a fenntartási költségek optimalizálását.
Kényelmét tovább növeli, hogy a lakáshoz tartozik egy kellemes erkély, ahol reggeli kávéját vagy esti pihenését töltheti. Ráadásul a vételár tartalmaz egy saját, zárható pincehelyiséget is, mely értékes extra tárolókapacitást jelent. Tiszta, rendezett, tégla építésű ház, első emeleti elhelyezkedés? Ez az ingatlan befektetésnek és első otthonnak is tökéletes választás! Ne maradjon le erről a páratlan lehetőségről! OTP Banki hátterünknek köszönhetően finanszírozási igényekben (pl. Otthon Start Hitelprogram, Babaváró, Falusi csok, CSOK Plusz, Lakáshitel, Személyi kölcsön stb. ), Illetve biztosítások tekintetében is díjmentesen, soron kívüli ügyintézéssel segítem ügyfeleim! Referenciaszám: m318378 FIX 3% lakáshitelre megvehető

