Eladó új építésű lakás - Miskolc
- INGYENES HIRDETÉS FELADÁS
Ingatlan adatai
- Eladó vagy kiadó:Eladó
- Település:Miskolc
- Kategória:Lakás
- Alkategória:Tégla
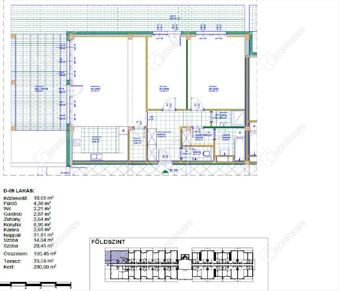
- Alapterület:100 m2
- Csere is:Nem
- Hirdető:Cég
- Élő videón megtekinthető:Nem
- Szobaszám:3
- Állapot:Új építésű
- Hány szintes az ingatlan:Földszintes
- Komfortosság:nincs megadva
- Kertkapcsolatos:Igen
- Hányadik emeleti:Földszint
- Erkély:nincs megadva
- Lift:Nincs
- Parkolási lehetőség:Teremgarázsban
- Fűtés:Hőszivattyús
- Bútorozottság:nincs megadva
- Fényviszony:Napfényes
- Tájolás:NY
- Kilátás:Panorámás
- Internet:nincs megadva
- Klíma:Van
- Akadálymentesített:nincs megadva
- Energiatanúsítvány:nincs megadva
- Villany:Van
- Víz:Van
- Gáz:nincs megadva
- Csatorna:Van
- Kapcsolatfelvétel

Vodila Martin Botond
+36-(70)-551-5095
Mondd meg a hirdetőnek, hogy a megveszLAK-on találtad a hirdetést.
Referencia szám: 178776
Hitel ajánlatok
Ingatlan hirdetés leírása
Álmodjon egy új otthonról Miskolc legkeresettebb, exkluzív hel...
Az Openhouse Miskolc Soltész Nagy Kálmán utcai Ingatlaniroda kínálatában eladó a #178776 hivatkozási számú miskolci társasházi lakás.
Kivételes ajánlat Miskolc szívében: panorámás luxus a BODÓTETŐN!
Álmodjon egy új otthonról Miskolc legkeresettebb, exkluzív helyszínén, a Bodótetőn, ahol a prémium minőség és a lélegzetelállító panoráma találkozik!
Ez nem csupán egy lakás – ez egy életstílus.
Főbb Jellemzők:
- Elhelyezkedés: Miskolc legjobb helyén, a Bodótetőn, új társasházban.
- Lakások Paraméterei: Nappali + 1 szoba 63m2-en, Nappali + 2 szoba 77 m2-en, Nappali + 2 szoba 100 m2-en 33 m2-es terasszal. Minden lakáshoz nagy alapterületű félig nyitott, félig zárt erkély tartozik, a földszinti lakások pedig kertkapcsolatosak.
- Energiatudatos Megoldások: 20 cm-es homlokzati hőszigetelés, 3 rétegű hőszigetelt műanyag ablakok.
- Modern Gépészet: Mitsubishi levegő-levegő hőszivattyús hűtés-fűtési rendszer, villanybojlerek.
- Akusztikus Komfort: 30 cm vastag hanggátló falak a teljes nyugalomért.
- Kulcsrakész Állapot: Csak költöznie kell!
- Fenntarthatóság: Saját napelemek biztosítják az elektromos autók töltését a garázsban.
- Extrák: Kávézó és modern játszótér az udvaron, teremgarázs beállóhelyek és tárolók vásárlási lehetősége.
Befektetésre is Kiváló: Egyes lakások hosszú távra, kulcsrakészen, konyhabútorral felszerelve bérbe is kivehetők!
Ne maradjon le erről a páratlan lehetőségről! Tapasztalja meg a prémium életérzést!
Érdeklődjön még ma a részletekért és a megtekintésért!
Ha felkeltette érdeklődését ez az eladó miskolci társasházi lakás, vagy bármely más társasházi lakás és bővebb információt szeretne, keressen bizalommal. Hivatkozási szám: #178776
Az Openhouse Miskolc Soltész Nagy Kálmán utcai Ingatlaniroda tagjaként várom Önt az országos hálózatunk teljes kínálatával.
A társasházi lakás vásárláshoz hitelt igényelne? Ingyenes hitelközvetítéssel segít Önnek bankfüggetlen hitelszakértőnk.
További szolgáltatásainkkal (pl. Értékbecslés, energetikai tanúsítvány, jogi háttér) is segítjük Önt a vásárlásban.
Az otthon érték. Az ingatlan üzlet. Hitel.hu - Hasonlítsa össze a bankok lakáshitel ajánlatait
Tetszett ez az eladó Miskolci új építésű 3 szobás tégla lakás? Hívd fel a hirdetőt most, és tudj meg mindent erről az eladó tégla lakásról! Ha gondolod nézelődj tovább az eladó lakás Miskolc oldal hirdetései között. Ennek az eladó lakásnak az ára 120000000 Ft és mivel az alapterülete 100 négyzetméter, ezért az átlagos négyzetméterára 1200000 HUF/m2.
Az eladó lakások menüpontban további hirdetések között is böngészhetsz. Ha van kedved, akkor böngészhetsz a Vodila Martin Botond összes hirdetése között, vagy akár a/az Open House Openhouse Miskolc Soltész Nagy Kálmán utcai Ingatlaniroda összes hirdetése között is.

