Eladó új építésű lakás - Monor
- INGYENES HIRDETÉS FELADÁS
Ingatlan adatai
- Feladva:64 napja a megveszLAK-on
- Eladó vagy kiadó:Eladó
- Település:Monor
- Kategória:Lakás
- Alkategória:Tégla
- Alapterület:78 m2
- Csere is:Nem
- Hirdető:Cég
- Élő videón megtekinthető:Nem
- Szobaszám:4
- Állapot:Új építésű
- Hány szintes az ingatlan:Földszintes
- Komfortosság:nincs megadva
- Hányadik emeleti:1
- Erkély:nincs megadva
- Lift:Nincs
- Parkolási lehetőség:Udvaron
- Fűtés:Hőszivattyús
- Bútorozottság:nincs megadva
- Fényviszony:Napfényes
- Tájolás:DNY
- Kilátás:nincs megadva
- Internet:nincs megadva
- Klíma:Van
- Akadálymentesített:nincs megadva
- Energiatanúsítvány:A
- Villany:Van
- Víz:Van
- Gáz:nincs megadva
- Csatorna:Van
- Közös költség:1 Ft
- Kapcsolatfelvétel

Szilágyi Szilvia
+36-(30)-505-9660
Mondd meg a hirdetőnek, hogy a megveszLAK-on találtad a hirdetést.
Referencia szám: M322629
Hitel ajánlatok
Ingatlan hirdetés leírása
Eladó Lakás, Monor, Eladó új építésű lakás - Monor
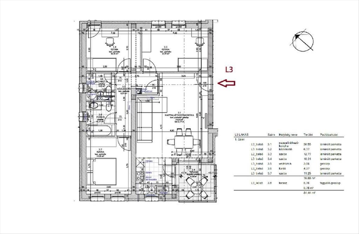
Új építésű, nappali + 3 hálószobás, teraszos, 1. emeleti lakás eladó!
OTTHON start program fix 3 %-os lakáshitel és CSOK Plusz igényelhető, részletekről már megtekintéskor tájékoztatást adunk.
Hitelajánlat és hitelbírálat díjmentesen, banki sorbanállás nélkül!
Alapadatok:
Átadás: 2027 év Q1.
Lakás mérete: 79 m2.
1. emelet.
Terasz mérete: 5, 76 m2.
Telekméret (teljes): 600 m2.
Telekre épül: 4 lakásos társasház.
Műszaki paraméterek:
A+ Energetikai hatékonyság
Fűtés és használati melegvíz: Hőszivattyús.
Klíma: Inverteres Split klímaberendezés.
Három rétegű műanyag nyílászárók.
30 Cm tégla falazat és 15 cm külső szigetelés.
Kocsibeálló: felszíni ára: 2, 5 m.
Válasszon kínálatunkból, és számíthat az OTP Ingatlanpont szakmai támogatására a teljes vételi folyamat során az adásvételi szerződéstől a hitelügyintézésen keresztül egészen a kulcsrakész átadásig.
A beruházó számos referenciával rendelkezik, melyek a Gyömrő Liget lakóparkban és Monorierdőn kerültek átadásra.
Ne feledje, az OTP Ingatlanpont kedvezményes pénzügyi konstrukciókkal áll ügyfelei rendelkezésére! VIP-szolgáltatást nyújtunk az OTP-hiteltermékek ügyintézésében. Jogi és pénzügyi segítséget nyújtanak szakértőink, hogy az adásvétel folyamata gördülékeny legyen.
Tudjon meg többet, hívjon bizalommal!
Referencia szám: m322629 FIX 3% lakáshitelre megvehető
Tetszett ez az eladó Monori új építésű 4 szobás tégla lakás? Hívd fel a hirdetőt most, és tudj meg mindent erről az eladó tégla lakásról! Ha gondolod nézelődj tovább az eladó lakás Monor oldal hirdetései között. Ennek az eladó lakásnak az ára 90482000 Ft és mivel az alapterülete 78 négyzetméter, ezért az átlagos négyzetméterára 1160026 HUF/m2.
Az eladó lakások menüpontban további hirdetések között is böngészhetsz. Ha van kedved, akkor böngészhetsz a Szilágyi Szilvia összes hirdetése között, vagy akár a/az OTPip Budapest I. kerület Krisztina körút 32 - OTP Ingatlanpont Iroda összes hirdetése között is.

