Eladó átlagos állapotú lakás Nagyharsány
| Kedvencbe | Megosztás | Árfigyelő |
| FIX 3% lakáshitelre megvehető | ||
| 22 500 000 HUF | ||
Ingatlan adatai
- Eladó vagy kiadó:Eladó
- Település:Nagyharsány
- Kategória:Lakás
- Alkategória:Tégla
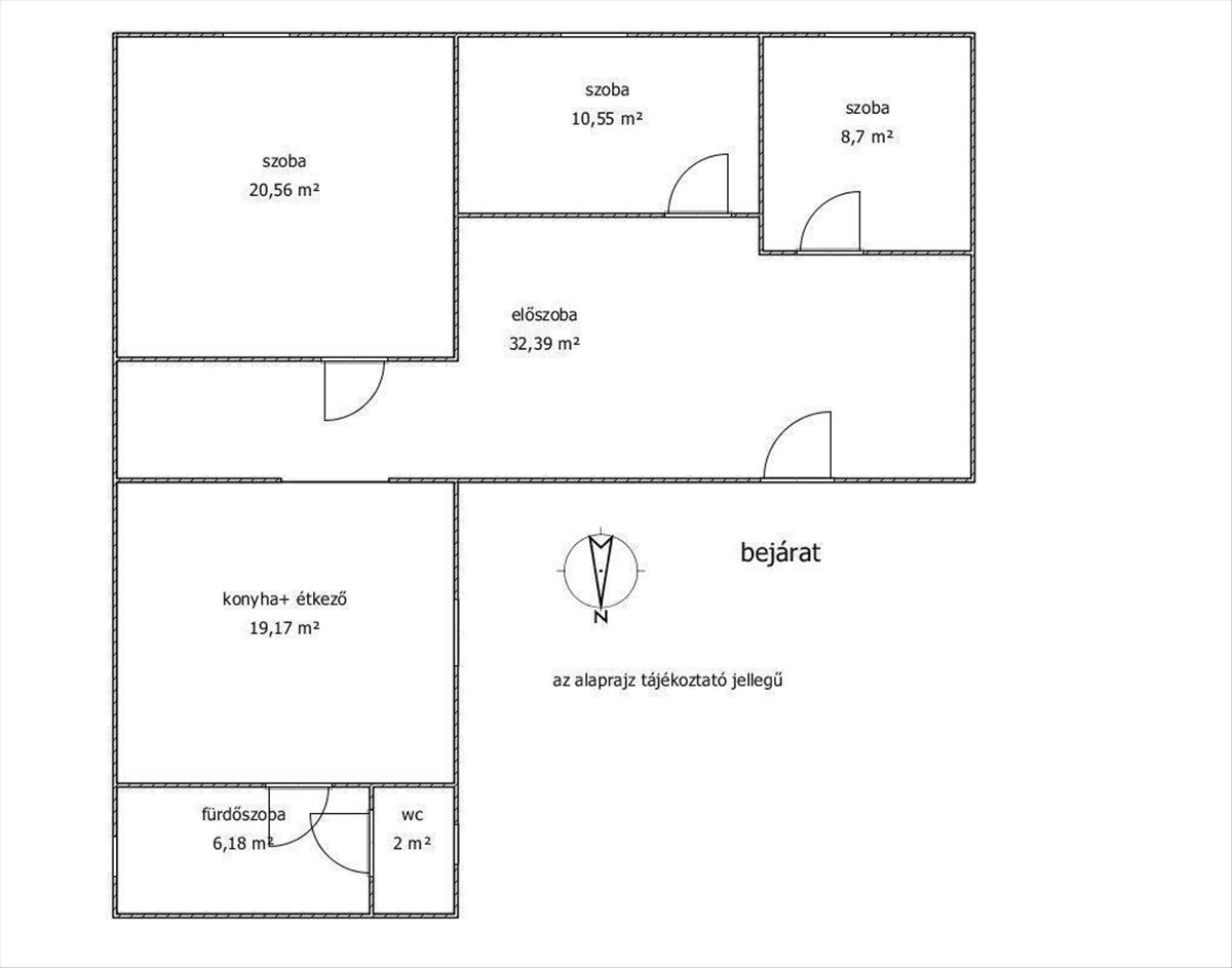
- Alapterület:71 m2
- Csere is:Nem
- Hirdető:Cég
- Élő videón megtekinthető:Nem
- Szobaszám:3
- Állapot:Átlagos állapotú
- Hány szintes az ingatlan:Földszintes
- Komfortosság:nincs megadva
- Hányadik emeleti:Földszint
- Lift:Nincs
- Parkolási lehetőség:Udvaron
- Fűtés:Elektromos
- Bútorozottság:nincs megadva
- Fényviszony:Napfényes
- Tájolás:nincs megadva
- Kilátás:nincs megadva
- Internet:nincs megadva
- Klíma:Van
- Akadálymentesített:nincs megadva
- Energiatanúsítvány:nincs megadva
- Villany:Van
- Víz:Van
- Gáz:nincs megadva
- Csatorna:Van
- Közös költség:1 Ft
- Üzenetküldés
- Hívás

Referencia szám: M306564

Hitel ajánlat
Ingatlan hirdetés leírása
Eladó Lakás, Nagyharsány
Eladó lakás Nagyharsányban! Ideális otthon extra kényelmi funkciókkal!Alapterület: 71 m2
Szobák száma: 2, 5
Fedezze fel ezt a tágas és modern lakást Nagyharsány csendes részén! a lakás egy kétlakásos társasház részét képezi, így megőrzi a privát szférát, mégis barátságos környezetben. a három szoba kényelmes elrendezést biztosít családoknak vagy pároknak is.
-4 Klíma gondoskodik a nyári hűsökről.
-Vegyes tüzelésű kazán a gazdaságos fűtésért.
-Műanyag ablakok redőnnyel és szúnyoghálóval, teljes komfort és biztonság.
-Konyha és étkező? Közös tér a finom vacsorákhoz.
-Közvetlen kertkapcsolat 400 m2 vízszintes kerttel.
-Melléképület? Tárolásra, műhelynek is kiváló.
-Kutyakennel - a négylábú családtagok számára.
Bölcsőde, óvóda, és iskola is van a faluban. a buszmegálló 100 méterre található.
Ez a lakás tökéletes választás azoknak, akik szeretnék élvezni a természet közelségét, miközben korszerű és kényelmes otthonban élnek. Ne hagyja ki ezt a nagyszerű lehetőséget Nagyharsányban!
Referenciaszám: m306564 FIX 3% lakáshitelre megvehető

