Eladó újszerű állapotú lakás - Nagykanizsa
- INGYENES HIRDETÉS FELADÁS
Ingatlan adatai
- Eladó vagy kiadó:Eladó
- Település:Nagykanizsa
- Kategória:Lakás
- Alkategória:Tégla
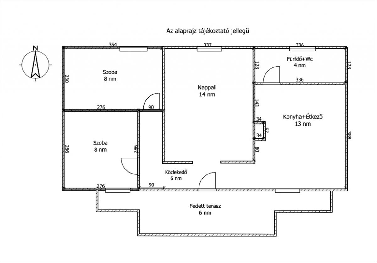
- Alapterület:52 m2
- Csere is:Nem
- Hirdető:Cég
- Élő videón megtekinthető:Nem
- Szobaszám:2
- Állapot:Újszerű, kitűnő
- Hány szintes az ingatlan:Földszintes
- Komfortosság:nincs megadva
- Hányadik emeleti:Földszint
- Erkély:nincs megadva
- Lift:Nincs
- Parkolási lehetőség:Udvaron
- Fűtés:Gáz (konvektor)
- Bútorozottság:nincs megadva
- Fényviszony:Jó
- Tájolás:É
- Kilátás:nincs megadva
- Internet:nincs megadva
- Klíma:nincs megadva
- Akadálymentesített:nincs megadva
- Energiatanúsítvány:nincs megadva
- Villany:Van
- Víz:Van
- Gáz:nincs megadva
- Csatorna:Van
- Közös költség:15 000 Ft
- Kapcsolatfelvétel

Agoudan Dániel
+36-(20)-299-1333
Mondd meg a hirdetőnek, hogy a megveszLAK-on találtad a hirdetést.
Referencia szám: HK
Hitel ajánlatok
Ingatlan hirdetés leírása
Nagykanizsán eladó felújított lakás a belváros közelében!
2023-Ban teljeskörűen, igényesen felújított két szoba+ nappalis lakást kínálunk most azoknak, akik nem szeretnének bajlódni a felújítással és szeretnének a belváros közelében élni. Egy 3 lakásos társasház udvarában található, ez az 52 nm -es, ingatlan, melyben a felújítás során a víz és villanyhálózat cseréje és korszerűsítése elkészült. a kazán, a hideg-meleg burkolatok, szaniterek szintén újak. a műanyag nyílászárók redőnnyel felszereltek. a fűtésről gázkonvektorok gondoskodnak. a tetőt 4 éve újították fel. a házhoz 6 nm -es fedett terasz is tartozik. a közös költség 15. 000 Ft.
További információkért keressen minket! Ne szalassza el a lehetőséget! a frissen felújított lakások gyorsan elkelnek!
Várjuk hívását!
Referencia szám: hk-4695629-ml FIX 3% lakáshitelre megvehető
Tetszett ez az eladó Nagykanizsai újszerű állapotú 2 szobás tégla lakás? Hívd fel a hirdetőt most, és tudj meg mindent erről az eladó tégla lakásról! Ha gondolod nézelődj tovább az eladó lakás Nagykanizsa oldal hirdetései között. Ennek az eladó lakásnak az ára 26500000 Ft és mivel az alapterülete 52 négyzetméter, ezért az átlagos négyzetméterára 509615 HUF/m2.
Az eladó lakások menüpontban további hirdetések között is böngészhetsz. Ha van kedved, akkor böngészhetsz a Agoudan Dániel összes hirdetése között, vagy akár a/az Agoudan Dániel összes hirdetése között is.

