Eladó jó állapotú lakás - Nagykanizsa
- INGYENES HIRDETÉS FELADÁS
Ingatlan adatai
- Eladó vagy kiadó:Eladó
- Település:Nagykanizsa
- Kategória:Lakás
- Alkategória:Tégla
- Alapterület:89 m2
- Csere is:Nem
- Hirdető:Cég
- Élő videón megtekinthető:Nem
- Szobaszám:4
- Állapot:Jó állapotú
- Hány szintes az ingatlan:2 szintes
- Komfortosság:nincs megadva
- Hányadik emeleti:3
- Erkély:nincs megadva
- Lift:Nincs
- Parkolási lehetőség:Udvaron
- Fűtés:Egyéb
- Bútorozottság:nincs megadva
- Fényviszony:Napfényes
- Tájolás:D
- Kilátás:Panorámás
- Internet:nincs megadva
- Klíma:nincs megadva
- Akadálymentesített:nincs megadva
- Energiatanúsítvány:nincs megadva
- Villany:Van
- Víz:Van
- Gáz:nincs megadva
- Csatorna:Van
- Közös költség:20 754 Ft
- Kapcsolatfelvétel

Agoudan Dániel
+36-(20)-299-1333
Mondd meg a hirdetőnek, hogy a megveszLAK-on találtad a hirdetést.
Referencia szám: HK
Hitel ajánlatok
Ingatlan hirdetés leírása
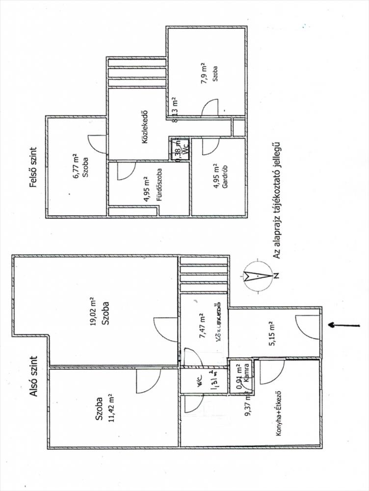
Eladó két szintes, 3 szoba + nappalis lakás Nagykanizsa belvár...
Eladó kétszintes, 89 nm -es, 3 szoba + nappalis lakás Nagykanizsa belvárosában!
Ha vágyik egy új otthonra Nagykanizsa központjában, akkor ez a kivételes lehetőség Öné lehet! Kínálunk Önnek egy 89 nm -es, 3 szobás + nappalis lakást a város szívében, ahol minden kényelmi szolgáltatást a közelben megtalál.
Az ingatlan egy 1990-ben épült társasház harmadik emeletén található, ahonnan a tágas, napfényes déli fekvésű nappaliból csodás panoráma tárul elénk. Az ingatlanban 3 éve történt felújítás, melynek során a felső szint laminált parkettája cserélve lett, a wc-be új burkolat és szaniter került, a konyha és előszoba padlóburkolata szintén megújult. a nappali nyugati oldalát 7 mm-es grafitos hőszigeteléssel látták el. a konyha keleti fekvésű, melyhez kamra is tartozik. Az ablakok még az eredetiek, a bejárati ajtó azonban cserélve lett.
A lakás cirkó fűtését egy hangulatos fatüzelésű kandalló látja el, a meleg vizet Ariston villanybojler állítja elő. a ház udvarában gépkocsi beállási lehetőség adott, ide biztonságos elektromos kapun keresztül juthatunk. a közös költség 20. 754 Forint.
Ez a lakás páratlan helyen található, és egy új élet lehetőségét kínálja. Kisebb lakást értékegyeztetéssel beszámítunk. Vegye fel velünk a kapcsolatot, örömmel adunk részletes információkat és szervezünk időpontot, hogy megtekinthesse ezt a kényelmes otthont.
Referencia szám: hk-4537354-ml FIX 3% lakáshitelre megvehető
Tetszett ez az eladó Nagykanizsai jó állapotú 4 szobás tégla lakás? Hívd fel a hirdetőt most, és tudj meg mindent erről az eladó tégla lakásról! Ha gondolod nézelődj tovább az eladó lakás Nagykanizsa oldal hirdetései között. Ennek az eladó lakásnak az ára 39900000 Ft és mivel az alapterülete 89 négyzetméter, ezért az átlagos négyzetméterára 448315 HUF/m2.
Az eladó lakások menüpontban további hirdetések között is böngészhetsz. Ha van kedved, akkor böngészhetsz a Agoudan Dániel összes hirdetése között, vagy akár a/az Agoudan Dániel összes hirdetése között is.

