Eladó új építésű lakás - Nyíregyháza
- INGYENES HIRDETÉS FELADÁS
Ingatlan adatai
- Eladó vagy kiadó:Eladó
- Település:Nyíregyháza
- Kategória:Lakás
- Alkategória:Tégla
- Alapterület:55 m2
- Csere is:Nem
- Hirdető:Cég
- Élő videón megtekinthető:Nem
- Szobaszám:2
- Állapot:Új építésű
- Hány szintes az ingatlan:3 szintes
- Komfortosság:nincs megadva
- Hányadik emeleti:1
- Erkély:nincs megadva
- Lift:nincs megadva
- Parkolási lehetőség:Udvaron
- Fűtés:nincs megadva
- Bútorozottság:Bútorozatlan
- Fényviszony:nincs megadva
- Tájolás:nincs megadva
- Kilátás:nincs megadva
- Internet:nincs megadva
- Klíma:Van
- Akadálymentesített:nincs megadva
- Energiatanúsítvány:nincs megadva
- Villany:Van
- Víz:nincs megadva
- Gáz:nincs megadva
- Csatorna:nincs megadva
- Kapcsolatfelvétel

Gajdos Brigitta
+36-(20)-280-6337
Mondd meg a hirdetőnek, hogy a megveszLAK-on találtad a hirdetést.
Hitel ajánlatok
Ingatlan hirdetés leírása
Nyíregyháza abszolút belvárosában új építésű lakás eladó!
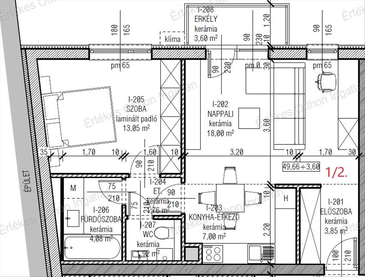
Nyíregyházán a Hatzel tér közelében, eladásra kínálunk egy első emeleti, új építésű, 55 nm-s lakást!
Főbb paraméterek:
- Tégla falazat + homlokzati szigetelés
- 10 lakásos, 3 szintes társasház: Fsz, 1 em. , 2. Em. , Garázs, autóbeálló
- 2 szobás, erkélyes
- Klimatizált
- Kondenzációs gázkazán, (hidegburkolat alatt padlófűtés, a szobákban radiátoros hőleadókkal)
- Műanyag nyílászáró
- a garázs külön megvásárolható: 14, 5 M Ft
- Jelenlegi készültségi szint 35%, várható átadás: 2026 nyara
Mind a 10 lakás még elérhető! Legyen az elsők között aki választhat!
1Em. /1-S lakás:47, 49 nm + 3, 60 nm Loggia= 54. 200. 000 Ft
1em. /2-S lakás:49, 66 nm + 4, 90 nm Erkély= 57. 300. 000 Ft
1em. /3-S lakás:48, 16 nm + 4, 90 nm Erkély= 55. 670. 000 Ft
1em. /4-S lakás:46, 40 nm + 4, 90 nm Erkély= 53. 740. 000 Ft
1. Em. /5-S lakás:47, 72 nm + 3, 60 nm Loggia= 54. 470. 000 Ft
2. Em. /1-S lakás:44, 90 nm + 3, 60 nm Loggia= 51. 370. 000 Ft
2. Em. /2-S lakás:49, 66 nm + 4, 90 nm Erkély= 57. 300. 000 Ft
2. Em. /3-S lakás:48, 16 nm + 4, 90 nm Erkély= 55. 670. 000 Ft
2. Em. 4-S lakás:46, 40 nm + 4, 90 nm Erkély= 53. 740. 000 Ft
2. Em. /5-S lakás:47, 72 nm + 3, 60 nm Loggia= 51. 370. 000 Ft
Teljes körű ügyintézés az első lépéstől a kulcsátadásig!
- Hitelügyintézés
- Megbízható ügyvéd
- Energetikai tanúsítvány
- Zökkenőmentes lebonyolítás FIX 3% lakáshitelre megvehető

