Eladó átlagos állapotú lakás - Nyíregyháza
- INGYENES HIRDETÉS FELADÁS
Ingatlan adatai
- Eladó vagy kiadó:Eladó
- Település:Nyíregyháza
- Kategória:Lakás
- Alkategória:Tégla
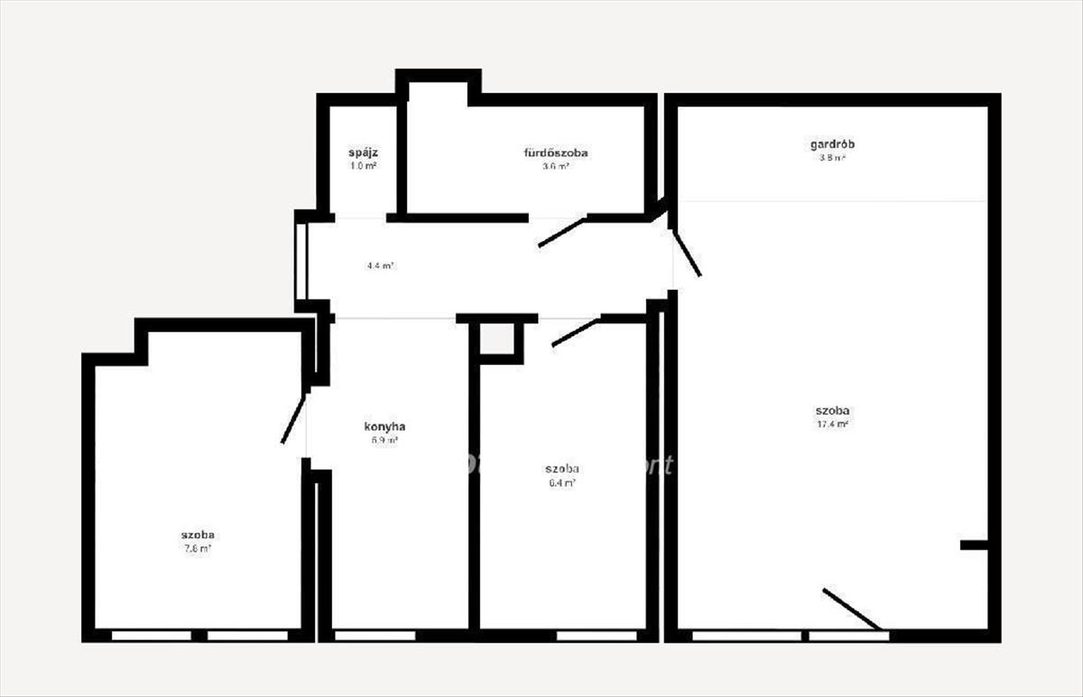
- Alapterület:51 m2
- Csere is:Nem
- Hirdető:Cég
- Élő videón megtekinthető:Nem
- Szobaszám:1 + 2 fél
- Állapot:Átlagos állapotú
- Hány szintes az ingatlan:Földszintes
- Komfortosság:nincs megadva
- Hányadik emeleti:4
- Erkély:nincs megadva
- Lift:Nincs
- Parkolási lehetőség:nincs megadva
- Fűtés:Gáz (konvektor)
- Bútorozottság:nincs megadva
- Fényviszony:Napfényes
- Tájolás:nincs megadva
- Kilátás:nincs megadva
- Internet:nincs megadva
- Klíma:Van
- Akadálymentesített:nincs megadva
- Energiatanúsítvány:nincs megadva
- Villany:Van
- Víz:Van
- Gáz:nincs megadva
- Csatorna:Van
- Közös költség:8 500 Ft
- Kapcsolatfelvétel

Kiss Gyula
+36-(70)-615-1234
Mondd meg a hirdetőnek, hogy a megveszLAK-on találtad a hirdetést.
Referencia szám: M312169
Ingatlan hirdetés leírása
Eladó Lakás, Nyíregyháza
Eladó 1+2 szobás lakás Nyíregyháza frekventált részén, belváros közelében.
Otthon Start Hitelprogram igényelhető rá!
Ha olyan otthont keresel, ami azonnal költözhető, világos, jó elosztású, és ráadásul remek ár-érték arányt képvisel, akkor ez a lakás Neked szól.
Az ingatlan egy 51 nm-es, 1+2 szobás lakás, amely egy szigetelt, tégla építésű társasház legfelső emeletén található. a ház lakóközössége kimondottan barátságos és összetartó, ami nagyban hozzájárul a kellemes, nyugodt mindennapokhoz.
Főbb jellemzők:
kisebb festést követően azonnal költözhető állapot,
gázfűtés, a meleg vizet bojler biztosítja,
műanyag nyílászárók, redőny, klíma, gardrób,
saját, 3 nm-es pince tároló,
nyugati tájolás, világos belső terek.
A lakás igény szerint kisebb korszerűsítést igényelhet, de elhelyezkedése, adottságai és a társasház hangulata miatt kiváló lehetőség mind saját otthonnak, mind befektetésnek.
A környéken minden megtalálható: üzletek, szolgáltatások, közlekedés - minden egy karnyújtásnyira.
Ez a lakás azoknak szól, akik értékelik a jó környezetet, a praktikus megoldásokat és a kedvező fenntartási költségeket.
OTP Banki hátterünknek köszönhetően finanszírozási igényekben (pl. Otthon Start Hitelprogram, Babaváró, Falusi csok, CSOK Plusz, Lakáshitel, Személyi kölcsön stb. ), Illetve biztosítások tekintetében is díjmentesen, soron kívüli ügyintézéssel segítem ügyfeleim! Referenciaszám: m312169 FIX 3% lakáshitelre megvehető


