Eladó új építésű lakás - Pásztó
- INGYENES HIRDETÉS FELADÁS
Ingatlan adatai
- Eladó vagy kiadó:Eladó
- Település:Pásztó
- Kategória:Lakás
- Alkategória:Tégla
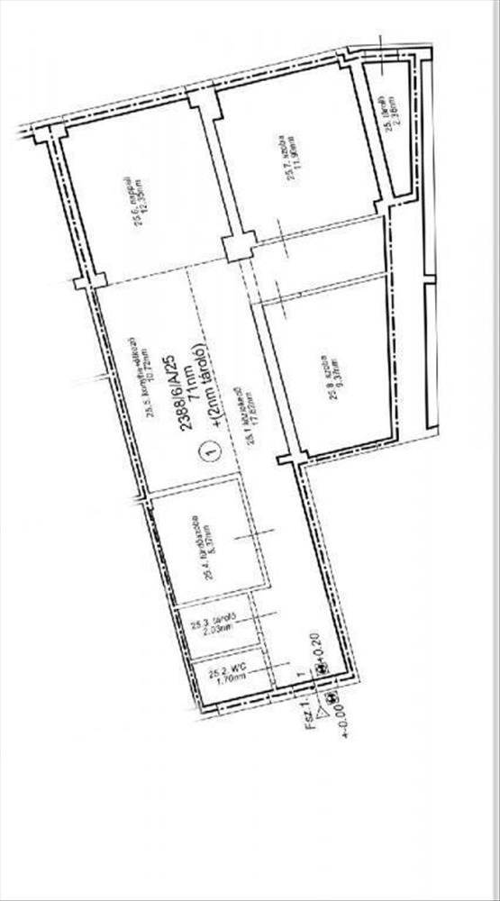
- Alapterület:71 m2
- Csere is:Nem
- Hirdető:Cég
- Élő videón megtekinthető:Nem
- Szobaszám:2
- Állapot:Új építésű
- Hány szintes az ingatlan:Földszintes
- Komfortosság:nincs megadva
- Hányadik emeleti:Földszint
- Erkély:nincs megadva
- Lift:Nincs
- Parkolási lehetőség:nincs megadva
- Fűtés:Hőszivattyús
- Bútorozottság:nincs megadva
- Fényviszony:Jó
- Tájolás:nincs megadva
- Kilátás:nincs megadva
- Internet:nincs megadva
- Klíma:nincs megadva
- Akadálymentesített:nincs megadva
- Energiatanúsítvány:nincs megadva
- Villany:Van
- Víz:Van
- Gáz:nincs megadva
- Csatorna:Van
- Közös költség:10 000 Ft
- Kapcsolatfelvétel

Hoffmann-né Budai Anna...
+36-(20)-849-3675
Mondd meg a hirdetőnek, hogy a megveszLAK-on találtad a hirdetést.
Referencia szám: M312600
Hitel ajánlatok
Ingatlan hirdetés leírása
Eladó Lakás, Pásztó, Eladó új építésű lakás - Pásztó
Új építésű lakás Pásztó központjában, modern otthon csendes környezetben.
A hirdetési ár a kulcsrakész állapotra vonatkozik!
Pásztó szívében kínálunk megvételre egy 71 m2-es, földszinti lakást, amely a korszerű technológia és az igényes kialakítás ötvözetével kínál otthont.
A lakás világos, tágas terei letisztult eleganciát sugároznak, valamint egy 2 m2-es, különálló saját tároló növeli tovább a kényelmet.
A lakás hőszivattyús fűtési rendszere modern és energiatakarékos megoldást nyújt a mindennapokra.
A mindennapi élethez szükséges bevásárlási és ügyintézési lehetőségek kényelmes sétatávolságban találhatók.
Az ingatlan kulcsrakész állapotban kerül átadásra, így az új tulajdonosnak már csak beköltöznie kell!
Ez az új építésű lakás Pásztó központjában ritka lehetőség: stílusos, korszerű és azonnal otthonná varázsolható azok számára, akik prémium minőségű ingatlant keresnek kiváló elhelyezkedéssel.
A Mátra és a Cserhát ölében, a 21-es út mellett, fekszik Pásztó, a 9 ezer fős város, Budapesttől mindössze 1 órára. Az m3 autópálya és a 2x2 sávos 21-es főút biztosítja a összeköttetést a környező településekkel és a fővárossal. Gyöngyös, Salgótarján, Hatvan csak 30 perc!
Amennyiben a fotók és az ingatlan paraméterei felkeltették érdeklődését, forduljon hozzám bizalommal, további információkért keressen akár hétvégén is.
Irodánk, teljes körű ügyintézéssel áll az eladók és a vevők rendelkezésére! Az adásvételi szerződés megkötéséhez igény szerint megbízható ügyvédi közreműködést biztosítunk, segítséget nyújtunk az adásvételhez kapcsolódó ügyek intézésében, ingyenes pénzügyi tanácsadással, kedvezményes hitelekkel (Babaváró hitel, államilag támogatott hitel, Falusi csok, CSOK Plusz, Otthon Start) segítjük vásárlását.
Kérem érdeklődéskor hivatkozzon az m312600 számra.
Referencia szám: m312600-ml FIX 3% lakáshitelre megvehető
Tetszett ez az eladó Pásztói új építésű 2 szobás tégla lakás? Hívd fel a hirdetőt most, és tudj meg mindent erről az eladó tégla lakásról! Ha gondolod nézelődj tovább az eladó lakás Pásztó oldal hirdetései között. Ennek az eladó lakásnak az ára 46150000 Ft és mivel az alapterülete 71 négyzetméter, ezért az átlagos négyzetméterára 650000 HUF/m2.
Az eladó lakások menüpontban további hirdetések között is böngészhetsz. Ha van kedved, akkor böngészhetsz a Hoffmann-né Budai Anna Mária összes hirdetése között, vagy akár a/az OTPip Eger Kertész utca 25 - OTP Ingatlanpont Iroda összes hirdetése között is.

