Eladó új építésű lakás Pásztó
| Kedvencbe | Megosztás | Árfigyelő |
| FIX 3% lakáshitelre megvehető | ||
| 35 750 000 HUF | ||
Ingatlan adatai
- Eladó vagy kiadó:Eladó
- Település:Pásztó
- Kategória:Lakás
- Alkategória:Tégla
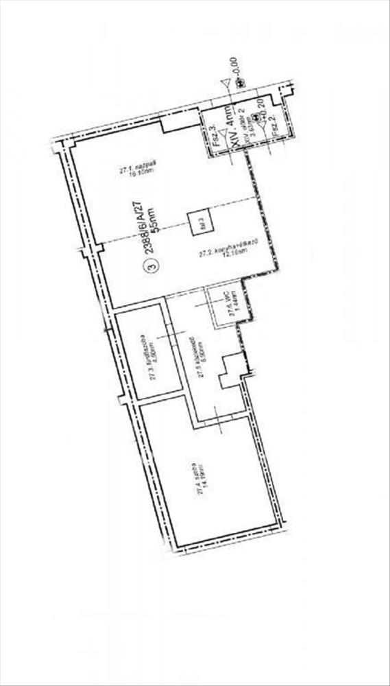
- Alapterület:55 m2
- Csere is:Nem
- Hirdető:Cég
- Élő videón megtekinthető:Nem
- Szobaszám:1
- Állapot:Új építésű
- Hány szintes az ingatlan:Földszintes
- Komfortosság:nincs megadva
- Hányadik emeleti:Földszint
- Lift:Nincs
- Parkolási lehetőség:nincs megadva
- Fűtés:Hőszivattyús
- Bútorozottság:nincs megadva
- Fényviszony:Jó
- Tájolás:nincs megadva
- Kilátás:nincs megadva
- Internet:nincs megadva
- Akadálymentesített:nincs megadva
- Energiatanúsítvány:nincs megadva
- Villany:Van
- Víz:Van
- Gáz:nincs megadva
- Csatorna:Van
- Közös költség:10 000 Ft
- Üzenetküldés
- Hívás

Mattyasovszky Nauzika
Mondd meg a hirdetőnek, hogy a megveszLAK-on találtad a hirdetést.
Referencia szám: M312599

Hitel ajánlat
Ingatlan hirdetés leírása
Eladó Lakás, Pásztó, Eladó új építésű lakás - Pásztó
Új építésű, földszinti lakás Pásztó központjában, modern kényelem csendes környezetben.Eladásra kínálunk a város szívében egy 55 m2-es, földszinti lakást, amely a korszerű technológiát és az igényes kialakítást ötvözi.
A világos, tágas terek letisztult eleganciát sugároznak, a hőszivattyús fűtés pedig energiatakarékos és modern megoldást kínál.
A mindennapi élethez szükséges bevásárlási és ügyintézési lehetőségek kényelmes sétatávolságban elérhetők.
A lakás kulcsrakész állapotban kerül értékesítésre, Önnek csak be kell költöznie új otthonába.
Ez az új építésű lakás igazi ritkaság Pásztó központjában: stílusos és korszerű, tökéletes választás mindazok számára, akik prémium minőségű ingatlant keresnek kiváló elhelyezkedéssel.
Pásztó a Mátra és a Cserhát ölelésében, a 21-es út mentén található, mindössze 1 órára Budapesttől. Az m3 autópálya és a 2x2 sávos 21-es főút gyors összeköttetést biztosít a fővárossal és a környező településekkel: Gyöngyös, Salgótarján, Hatvan csak 30 perc!
Forduljon hozzám bizalommal, amennyiben a fotók és az ingatlan paraméterei felkeltették érdeklődését, további információkért keressen akár hétvégén is.
Irodánk, teljes körű ügyintézéssel áll az eladók és a vevők rendelkezésére! Az adásvételi szerződés megkötéséhez igény szerint megbízható ügyvédi közreműködést biztosítunk, segítséget nyújtunk az adásvételhez kapcsolódó ügyek intézésében, ingyenes pénzügyi tanácsadással, kedvezményes hitelekkel (Babaváró hitel, államilag támogatott hitel, Falusi csok, CSOK Plusz, Otthon Start) segítjük vásárlását.
Kérem érdeklődéskor hivatkozzon az m312599 számra.
Referencia szám: m312599-ml FIX 3% lakáshitelre megvehető

