Eladó átlagos állapotú lakás - Pécs
- INGYENES HIRDETÉS FELADÁS
Ingatlan adatai
- Eladó vagy kiadó:Eladó
- Település:Pécs
- Kategória:Lakás
- Alkategória:Tégla
- Alapterület:49 m2
- Csere is:Nem
- Hirdető:Cég
- Élő videón megtekinthető:Nem
- Szobaszám:2
- Állapot:Átlagos állapotú
- Hány szintes az ingatlan:Földszintes
- Komfortosság:nincs megadva
- Hányadik emeleti:1
- Erkély:nincs megadva
- Lift:Nincs
- Parkolási lehetőség:nincs megadva
- Fűtés:Egyéb
- Bútorozottság:nincs megadva
- Fényviszony:Jó
- Tájolás:nincs megadva
- Kilátás:nincs megadva
- Internet:nincs megadva
- Klíma:nincs megadva
- Akadálymentesített:nincs megadva
- Energiatanúsítvány:nincs megadva
- Villany:Van
- Víz:Van
- Gáz:nincs megadva
- Csatorna:Van
- Közös költség:1 000 Ft
- Kapcsolatfelvétel

Vincze László György
+36-(20)-938-4141
Mondd meg a hirdetőnek, hogy a megveszLAK-on találtad a hirdetést.
Referencia szám: M320155
Hitel ajánlatok
Ingatlan hirdetés leírása
Eladó Lakás, Pécs, Eladó átlagos állapotú lakás - Pécs
Kedvező ár! Pécs-Budaivám városrészén eladó lakás!
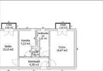
Eladásra kínálunk 2 erkélyes, 2 szobás lakást, amely ideális választás első otthonnak vagy befektetésnek! a lakás 49 nm, téglaépítésű társasház 1. emeletén található.
Az ingatlan felújítást igényel, közepes műszaki állapotú, falak festettek és csempézettek, a padló kerámia lap és parketta burkolja. Komfortos, fűtését gázkonvektor biztosítja, használati melegvíz ellátását villanybojler szolgáltatja. Nyílászárók vegyes szerkezetűek vegyes üvegezéssel. Burkolatai, gépészete és szaniterei közepes, helyenként felújítandó állapotúak, nyílászárók részben műanyagra lettek cserélve. Az új tulajdonos számára saját stílusú otthon kialakítására van lehetőség. a két külön nyíló szobához külön erkély is tartozik, ami egyedivé és világossá teszi a helyiségeket. a konyha kényelmes nagyságú, a fürdőszoba és a wc egy térben található, és minden helyiség az előszobából nyílik.
A lépcsőház rendezett, a nyílászárók műanyagra lettek cserélve, ami korszerűbb hő- és hangszigetelést biztosít.
A közlekedés kiváló: a buszmegálló mindössze 2 perc sétára van, így gyors és kényelmes az eljutás a belvárosba. a közelben Tesco, iskola és minden fontos szolgáltatás megtalálható!
Valódi lehetőség azoknak, akik nem sablonlakást keresnek, hanem saját ízlésükre formálható, jó elosztású ingatlant szeretnének vásárolni!
. OTP Bankhitelhez kapcsolódóan az OTP Ingatlanpont irodánk teljes körű tájékoztatást és ügyintézést vállal. Amennyi felkeltette érdeklődését az ingatlan, keressen bizalommal! M320155
24900000 Ft
Referencia szám: m320155 FIX 3% lakáshitelre megvehető

