Eladó jó állapotú lakás Pécs
| Kedvencbe | Megosztás | Árfigyelő |
| FIX 3% lakáshitelre megvehető | ||
| 54 900 000 HUF | ||
Ingatlan adatai
- Eladó vagy kiadó:Eladó
- Település:Pécs
- Kategória:Lakás
- Alkategória:Tégla
- Alapterület:59 m2
- Csere is:Nem
- Hirdető:Cég
- Élő videón megtekinthető:Nem
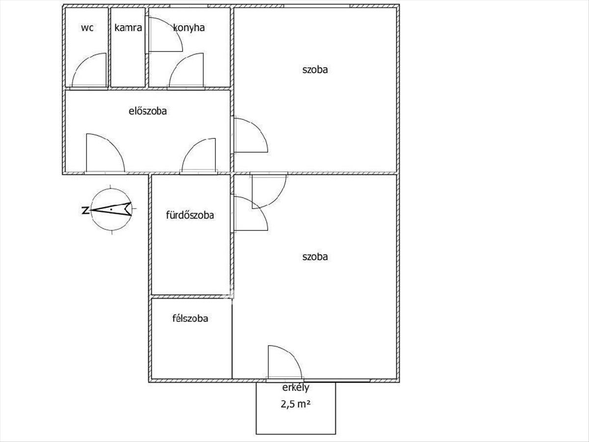
- Szobaszám:2 + 1 fél
- Állapot:Jó állapotú
- Hány szintes az ingatlan:Földszintes
- Komfortosság:nincs megadva
- Hányadik emeleti:3
- Lift:Nincs
- Parkolási lehetőség:nincs megadva
- Fűtés:Gáz (konvektor)
- Bútorozottság:nincs megadva
- Fényviszony:Napfényes
- Tájolás:nincs megadva
- Kilátás:nincs megadva
- Internet:nincs megadva
- Klíma:Van
- Akadálymentesített:nincs megadva
- Energiatanúsítvány:nincs megadva
- Villany:Van
- Víz:Van
- Gáz:nincs megadva
- Csatorna:Van
- Közös költség:12 000 Ft
- Üzenetküldés
- Hívás

Referencia szám: M321363

Hitel ajánlat
Ingatlan hirdetés leírása
Eladó Lakás, Pécs, Eladó jó állapotú lakás - Pécs
Belváros közeli, 3/3 emeleti (lift nincs) tégla, gáz fűtéses (konvektor), hűtő-fűtő klímával ellátott, gépesített tágas, világos lakás eladó.Tiszta, rendezett lépcsőház, jó lakóközösség.
A lakástól kb. 10 Perc gyalogtávon belül érhető el a vasútállomás, buszpályaudvar, Árkád és Széchenyi tér.
A lakás a Zsolnay-körforgalom alatt található, így számos buszjárat a közelben elérhető.
A lakás jó állapotú, a gépek folyamatosan karban tartottak. a vezetékek korszerűsítése 10 éven belül történt. Az ablakokat műanyagra cserélték redőnnyel ellátva. a lakáshoz saját alagsori tároló is tartozik.
A lakás bútorozottan, gépesítve eladó.
Jó adottságainak köszönhetően, családosoknak és egyetemistáknak is jó választás, illetve jó befektetési lehetőséget is kínál.
További információkért hívjon, nézze meg, tegyen egy ajánlatot hét végén is!
Az OTP ingatlanpont teljes körű ügyintézéssel áll az eladók és a vevők rendelkezésére! a megvásárolni kívánt ingatlan finanszírozásához a CSOK-pluszt, a Babaváró hitelt, a start hitelt (3 %), a kedvezményes hitelkonstrukciókat helyben ingyenesen intézzük. Az adásvételi szerződés megkötéséhez igény szerint megbízható ügyvédi közreműködést, az energetikai tanúsítvány elkészítéséhez energetikust biztosítunk, segítséget nyújtunk az adásvételhez kapcsolódó ügyintézésben az ajánlattételtől a birtokba lépésig. Várom hívását a hét minden napján, megtekintést rugalmasan egyeztetek.
Referenciaszám: M321363
54900000 Ft
Referencia szám: m321363 FIX 3% lakáshitelre megvehető

