Eladó átlagos állapotú lakás - Pétfürdő
- INGYENES HIRDETÉS FELADÁS
Ingatlan adatai
- Eladó vagy kiadó:Eladó
- Település:Pétfürdő
- Kategória:Lakás
- Alkategória:Tégla
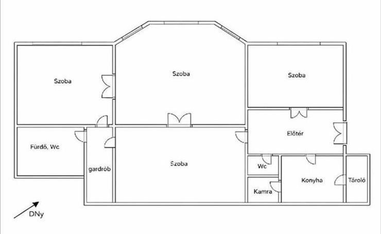
- Alapterület:137 m2
- Csere is:Nem
- Hirdető:Cég
- Élő videón megtekinthető:Nem
- Szobaszám:4 + 1 fél
- Állapot:Átlagos állapotú
- Hány szintes az ingatlan:Földszintes
- Komfortosság:nincs megadva
- Hányadik emeleti:2
- Erkély:nincs megadva
- Lift:Nincs
- Parkolási lehetőség:nincs megadva
- Fűtés:Gáz (cirko)
- Bútorozottság:nincs megadva
- Fényviszony:Napfényes
- Tájolás:DNY
- Kilátás:nincs megadva
- Internet:nincs megadva
- Klíma:nincs megadva
- Akadálymentesített:nincs megadva
- Energiatanúsítvány:nincs megadva
- Villany:Van
- Víz:Van
- Gáz:nincs megadva
- Csatorna:Van
- Közös költség:25 000 Ft
- Kapcsolatfelvétel

Vukov Gabriella
+36-(30)-184-3060
Mondd meg a hirdetőnek, hogy a megveszLAK-on találtad a hirdetést.
Referencia szám: M323266
Hitel ajánlatok
Ingatlan hirdetés leírása
Eladó Lakás, Pétfürdő
Sok szoba, nagy TEREK!
A 8-as főút mentén, Pétfürdő parkos övezetében eladóvá vált egy tégla lakás 4 egész és egy fél szobával. a konyhát egy kamra egészíti ki, a fürdőszobában van wc is, de a vendégek számára található a lakásban egy extra wc.
A 137m2-es polgári, magas belmagassággal rendelkező ingatlan tehermentes.
A belmagasságnak köszönhetően akár galéria is kialakítható a szobákban.
A társasházon 2025-ben teljes tető-, ereszcsatorna csere történt.
A lakás közös költsége 25. 000 Ft/hó. a fűtést gázkazán, a meleg víz ellátást villanybojler biztosítja.
Köszönöm, hogy figyelmével megtisztelte hirdetésemet. Amennyiben felkeltette érdeklődését, vagy további kérdések merülnek fel Önben, várom hívását. Időpont egyeztetése után megtekinthető az ingatlan. Nálunk minden ingatlan megtekintése díjmentes! Az OTP Ingatlanpont teljes körű ügyintézéssel áll az eladók és a vevők szolgálatára. a kínálatunkból választott ingatlan finanszírozásához szükség esetén kedvezményes hitelkonstrukciót ajánlunk. Az adásvételi szerződés megkötéséhez igény szerint megbízható ügyvédi közreműködést biztosítunk és segítséget nyújtunk az adásvételhez kapcsolódó ügyintézéshez. FIX 3% lakáshitelre megvehető
Tetszett ez az eladó Pétfürdői átlagos állapotú 4 egész és 1 fél szobás tégla lakás? Hívd fel a hirdetőt most, és tudj meg mindent erről az eladó tégla lakásról! Ha gondolod nézelődj tovább az eladó lakás Pétfürdő oldal hirdetései között. Ennek az eladó lakásnak az ára 64900000 Ft és mivel az alapterülete 137 négyzetméter, ezért az átlagos négyzetméterára 473723 HUF/m2.
Az eladó lakások menüpontban további hirdetések között is böngészhetsz. Ha van kedved, akkor böngészhetsz a Vukov Gabriella összes hirdetése között, vagy akár a/az OTPip Veszprém Kossuth utca 8 - OTP Ingatlanpont Iroda összes hirdetése között is.

