Eladó befejezetlen lakás - Pomáz
- INGYENES HIRDETÉS FELADÁS
![]() |
122 900 000 HUF
Ingatlan adatai
- Eladó vagy kiadó:Eladó
- Település:Pomáz
- Kategória:Lakás
- Alkategória:Tégla
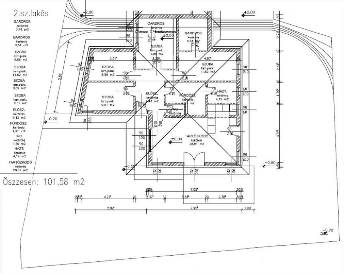
- Alapterület:115 m2
- Csere is:Nem
- Hirdető:Cég
- Élő videón megtekinthető:Nem
- Szobaszám:5
- Állapot:Befejezetlen
- Hány szintes az ingatlan:Földszintes
- Komfortosság:nincs megadva
- Hányadik emeleti:nincs megadva
- Erkély:nincs megadva
- Lift:nincs megadva
- Parkolási lehetőség:Udvaron
- Fűtés:nincs megadva
- Bútorozottság:nincs megadva
- Fényviszony:nincs megadva
- Tájolás:nincs megadva
- Kilátás:nincs megadva
- Internet:nincs megadva
- Klíma:Van
- Akadálymentesített:nincs megadva
- Energiatanúsítvány:nincs megadva
- Villany:Van
- Víz:Van
- Gáz:Nincs
- Csatorna:Van
- Kapcsolatfelvétel

A hirdető törölte a hirdetést.
Törölt hirdetés, így nem lehet üzenetet küldeni sem.
Hitel ajánlatok
Ingatlan hirdetés leírása
Eladó befejezetlen lakás - Pomáz
Sajnos ez az ingatlan hirdetés már nem aktuális, mivel a hirdető már törölte azt. Hitel.hu - Hasonlítsa össze a bankok lakáshitel ajánlatait

