Eladó újszerű állapotú lakás Sárvár
| Kedvencbe | Megosztás | Árfigyelő |
| Kedvezményes lakáshitel ajánlatok | ||
| 53 000 000 HUF | ||
Ingatlan adatai
- Eladó vagy kiadó:Eladó
- Település:Sárvár
- Kategória:Lakás
- Alkategória:Tégla
- Alapterület:33 m2
- Csere is:Nem
- Hirdető:Cég
- Élő videón megtekinthető:Nem
- Szobaszám:2 + 1 fél
- Állapot:Újszerű, kitűnő
- Hány szintes az ingatlan:2 szintes
- Komfortosság:nincs megadva
- Hányadik emeleti:2
- Erkély:Van
- Lift:Nincs
- Parkolási lehetőség:Udvaron
- Fűtés:Hőszivattyús
- Bútorozottság:nincs megadva
- Fényviszony:Jó
- Tájolás:DNY
- Kilátás:nincs megadva
- Internet:nincs megadva
- Klíma:Van
- Akadálymentesített:nincs megadva
- Energiatanúsítvány:C
- Villany:Van
- Víz:Van
- Gáz:nincs megadva
- Csatorna:Van
- Üzenetküldés
- Hívás

Referencia szám: 179280

Hitel ajánlat
Ingatlan hirdetés leírása
Eladó igényes galériás lakás Sárváron!
Az Openhouse Szombathely Ingatlaniroda kínálatában eladó a #179280 hivatkozási számú sárvári társasházi lakás.Irodánk megvételre kínál egy 2. emeleti, 2 hálószobás, erkélyes, tégla lakást Sárváron, a központ közelében.
A társasház 2024-ben épült, kiváló minőségű kivitelezéssel.
A fűtést hőszivattyú biztosítja, továbbá infrapanel és hűtő-fűtő klíma is felszerelésre került.
Az igényes, galériás lakás műanyag nyílászárókkal rendelkezik. Energetikai tanúsítványa rendelkezésre áll, besorolása CC.
Az ingatlanhoz tartozik egy parkolóhely.
Jellemzők:
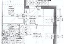
46 m2 alapterület, 33 m2 lakótér
építés éve 2024
2. emelet
hőszivattyú, elektromos panel, hűtő-fűtő klíma
fürdő és wc egy helyiségben
délnyugati tájolás
erkély mérete 5 m2
20 cm szigetelés
dedikált udvari autó beálló
Kiváló befektetés frekventált helyen, további bérbeadás céljára is fantasztikus lehetőség!
Fiatal pároknak is kiváló ingatlan egy csodás helyen, igényes környezetben!
Városközpont gyalog is csupán pár percre, minden fontos létesítmény könnyedén elérhető!
Ha felkeltette érdeklődését ez az eladó sárvári társasházi lakás, vagy bármely más társasházi lakás és bővebb információt szeretne, keressen bizalommal. Hivatkozási szám: #179280
Az Openhouse Szombathely Ingatlaniroda tagjaként várom Önt az országos hálózatunk teljes kínálatával.
A társasházi lakás vásárláshoz hitelt igényelne? Ingyenes hitelközvetítéssel segít Önnek bankfüggetlen hitelszakértőnk.
További szolgáltatásainkkal (pl. Értékbecslés, energetikai tanúsítvány, jogi háttér) is segítjük Önt a vásárlásban.
Az otthon érték. Az ingatlan üzlet. Hitel.hu - Hasonlítsa össze a bankok lakáshitel ajánlatait

