Eladó új építésű lakás - Sárvár
- INGYENES HIRDETÉS FELADÁS
Ingatlan adatai
- Eladó vagy kiadó:Eladó
- Település:Sárvár
- Kategória:Lakás
- Alkategória:Tégla
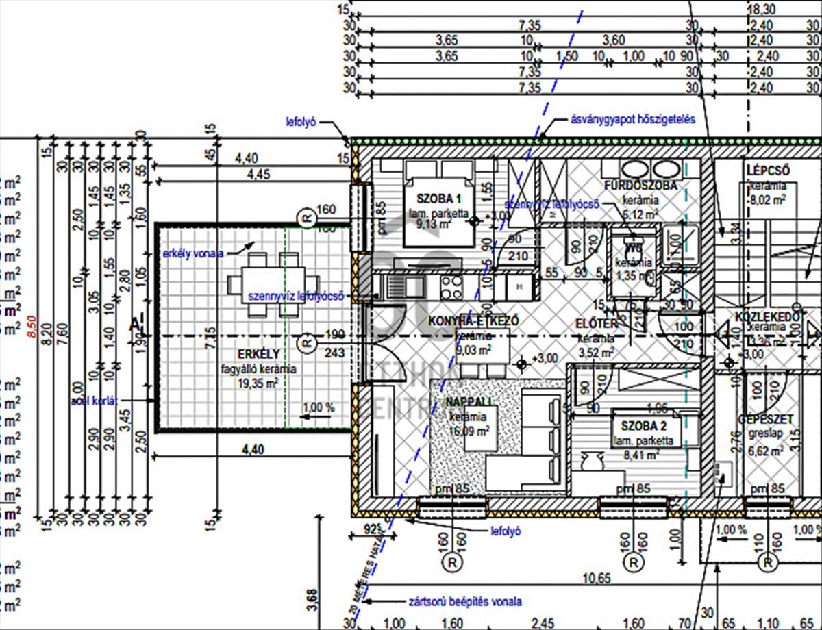
- Alapterület:63 m2
- Csere is:Nem
- Hirdető:Cég
- Élő videón megtekinthető:Nem
- Szobaszám:3
- Állapot:Új építésű
- Hány szintes az ingatlan:nincs megadva
- Komfortosság:nincs megadva
- Hányadik emeleti:1
- Erkély:Van
- Lift:nincs megadva
- Parkolási lehetőség:nincs megadva
- Fűtés:Gáz (cirko)
- Bútorozottság:nincs megadva
- Fényviszony:nincs megadva
- Tájolás:DNY
- Kilátás:Udvari
- Internet:nincs megadva
- Klíma:nincs megadva
- Akadálymentesített:nincs megadva
- Energiatanúsítvány:nincs megadva
- Villany:Van
- Víz:Van
- Gáz:Van
- Csatorna:Van
- Közös költség:12 000 Ft
- Kapcsolatfelvétel

Derecskei Csaba
+36-(70)-716-9391
Mondd meg a hirdetőnek, hogy a megveszLAK-on találtad a hirdetést.
Hitel ajánlatok
Ingatlan hirdetés leírása
Sárváron, az ország egyik legdinamikusabban fejlődő fürdőváros...
Sárváron, az ország egyik legdinamikusabban fejlődő fürdővárosában, csendes, átmenő forgalomtól mentes zsákutcában, a Sárvári Gyógy-, és Termálfürdőtől 700 m-re eladó egy 54 nm -es, nappali + 2 szobás, 1. emeleti lakás, 20 nm -es (! ! ) Erkéllyel.
A családi házas övezetben elterülő 648 nm -es telken, háromszintes épületben 6 lakás kerül kialakításra, erkéllyel vagy terasszal, térkövezett kocsibeállókkal.
A kiváló referenciákkal és több évtizedes tapasztalattal rendelkező, megbízható, korrekt kivitelező a kialakításnál a legmodernebb műszaki megoldásokat alkalmazza. Ez 15 cm-es homlokzati szigetelést, monolit betonfödémet, három rétegű műanyag nyílászárókat foglal magába, a fűtést kondenzációs gázkazán biztosítja padlófűtéses hőleadással, a nappaliban split-klímával. a hideg-, melegburkolatok, szaniterek, belső ajtók egyedi igény szerint választhatók. Az ingatlan a teljes tereprendezés, kerítésépítés után kerül átadásra, távirányítású sorompóval, kaputelefonnal.
Kiváló lokáció - remek befektetés!
Ne döntsön elhamarkodottan - tekintse meg a referenciamunkákat- nem fog csalódni!
Rugalmas fizetési ütemezés, hitel-és CSOK ügyintézés, opcionálisan kocsibeálló vásárolható.
Vételár: 59, 9 MFt.
Költözés: 2026. 09. 30.
Hitelre van szüksége?
Az Otthon Centrum az ország egyik legnagyobb és legmegbízhatóbb hitelközvetítőjeként, teljes körű és díjmentes hitelügyintézéssel, biztosításkötéssel áll rendelkezésére!
Kérje személyre szabott ajánlatunkat Kollégáinktól! FIX 3% lakáshitelre megvehető
Tetszett ez az eladó Sárvári új építésű 3 szobás tégla lakás? Hívd fel a hirdetőt most, és tudj meg mindent erről az eladó tégla lakásról! Ha gondolod nézelődj tovább az eladó lakás Sárvár oldal hirdetései között. Ennek az eladó lakásnak az ára 59900000 Ft és mivel az alapterülete 63 négyzetméter, ezért az átlagos négyzetméterára 950794 HUF/m2.
Az eladó lakások menüpontban további hirdetések között is böngészhetsz. Ha van kedved, akkor böngészhetsz a Derecskei Csaba összes hirdetése között, vagy akár a/az Otthon Centrum Szombathely – Széll Kálmán utca összes hirdetése között is.

