+ 14 fotó

Eladó újszerű állapotú lakás Siófok
| |  |
| Kedvencbe | Megosztás | Árfigyelő |
- Eladó vagy kiadó:Eladó
- Település:Siófok
- Kategória:Lakás
- Alkategória:Tégla
- Alapterület:110 m2
- Csere is:Nem
- Hirdető:Cég
- Élő videón megtekinthető:Nem
- Szobaszám:4
- Állapot:Újszerű, kitűnő
- Hány szintes az ingatlan:Földszintes
- Komfortosság:nincs megadva
- Hányadik emeleti:1
- Lift:Nincs
- Parkolási lehetőség:Garázsban
- Fűtés:Gáz (cirko)
- Bútorozottság:nincs megadva
- Fényviszony:nincs megadva
- Tájolás:nincs megadva
- Kilátás:nincs megadva
- Internet:nincs megadva
- Akadálymentesített:nincs megadva
- Energiatanúsítvány:nincs megadva
- Villany:nincs megadva
- Víz:nincs megadva
- Gáz:nincs megadva
- Csatorna:nincs megadva

Katona Tamás
Mondd meg a hirdetőnek, hogy a megveszLAK-on találtad a hirdetést.

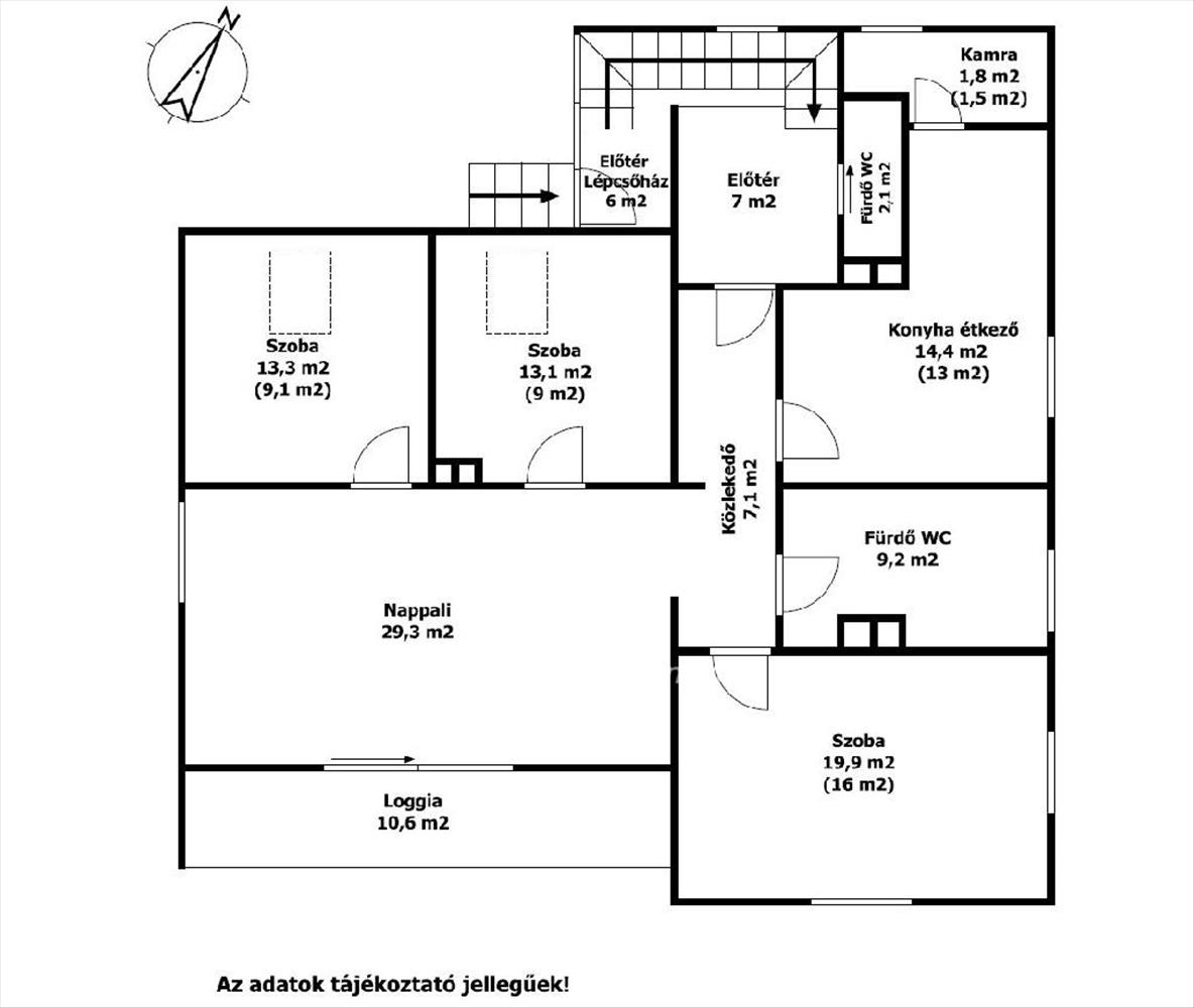
Balaton déli parton, Siófokon, 110 m2-es lakás eladó. Az első ...
Balaton déli parton, Siófokon, 110 m2-es lakás eladó. Az első emeleti ingatlan a Belvároshoz közeli Aranyparton, frekventált üdülőövezetben helyezkedik el. Nappali plusz 3 szobás lakás több elemében felújításra került. a homlokzati nyílászárók műanyag szerkezetek, szúnyoghálóval kivitelezettek. a fürdőszobában új burkolatok készültek, modern szaniterekkel. a belsőépítészeti megoldások, felületképzések kellemes, meleg, otthonos hangulatot sugároznak. a radiátoros fűtés mellett a lakótérben egy cserépkályha biztosítja a kellemes hőérzetet a téli hónapokban. a nyári időszakban 2 klímaberendezés működik. a lakótérhez tolóajtón át loggia kapcsolódik a déli oldalon. a lakás energetikai korszerűsítése megtörtént, a külső falakra hőszigetelő vakolat került, a fűtés és melegvíz ellátás kombi kondenzációs gázkazánnal megoldott. Az épület mellett fedett 2 egységes kocsibeálló áll rendelkezésre. Az udvarban külön 11 m2-es tároló van. a lakás zárt lépcsőházon át közelíthető meg. Az ingatlan minősített kereskedelmi szálláshely. Balaton-part, Nagystrand és szabadstrand 280 méter, városközpont 800 méter távolságban van.
Hitel.hu - Hasonlítsa össze a bankok lakáshitel ajánlatait Hasonló ingatlan hirdetések