Eladó új építésű lakás - Siófok
- INGYENES HIRDETÉS FELADÁS
Ingatlan adatai
- Eladó vagy kiadó:Eladó
- Település:Siófok
- Kategória:Lakás
- Alkategória:Tégla
- Alapterület:53 m2
- Csere is:Nem
- Hirdető:Cég
- Élő videón megtekinthető:Nem
- Szobaszám:3
- Állapot:Új építésű
- Hány szintes az ingatlan:nincs megadva
- Komfortosság:nincs megadva
- Hányadik emeleti:Földszint
- Erkély:nincs megadva
- Lift:nincs megadva
- Parkolási lehetőség:nincs megadva
- Fűtés:Egyedi
- Bútorozottság:nincs megadva
- Fényviszony:nincs megadva
- Tájolás:nincs megadva
- Kilátás:nincs megadva
- Internet:nincs megadva
- Klíma:nincs megadva
- Akadálymentesített:nincs megadva
- Energiatanúsítvány:nincs megadva
- Villany:nincs megadva
- Víz:nincs megadva
- Gáz:nincs megadva
- Csatorna:nincs megadva
- Kapcsolatfelvétel

Gálicz Zsolt
+36-(30)-147-7707
Mondd meg a hirdetőnek, hogy a megveszLAK-on találtad a hirdetést.
Hitel ajánlatok
Ingatlan hirdetés leírása
ÚJ ÉPÍTÉSŰ LAKÁSOK SIÓFOK-SÓSTÓN
A lido home ingatlan siófoki irodája eladásra kínálja ezt az új építésű, exkluzív megjelenésű és minőségű, kiváló ár/érték arányú lakást SIÓFOK-SÓSTÓN!
Balatoni strandtól 800 m-re, új építésű, 7 lakásos, három szintes társasházban kínálunk többféle áron és méretben önálló helyrajzi számmal rendelkező lakásokat. Átadásukra 2026. IV. Negyedévben kerül sor. a lakások a legkorszerűbb technológiával és anyagokkal készülnek. Házközponti levegő-víz hőszivattyús padlófűtés egyedi hőmennyiség méréssel, „h” tarifa, nappaliban klímás fűtés-hűtés, elektromos redőnyök, kérésre a szobá/k/ban is. a földszinti lakásokhoz kertkapcsolat is tartozik. Az udvaron medence kerül megépítésre. Udvaron belül autóbeálló 3 millió forintért vásárolható.
Balatonhoz való közelsége miatt kiváló választás lehet az ingatlan állandó lakhatásra vagy nyaralás/nyaraltatás céljából.
Építtető referencia munkái a közelben megtekinthetők.
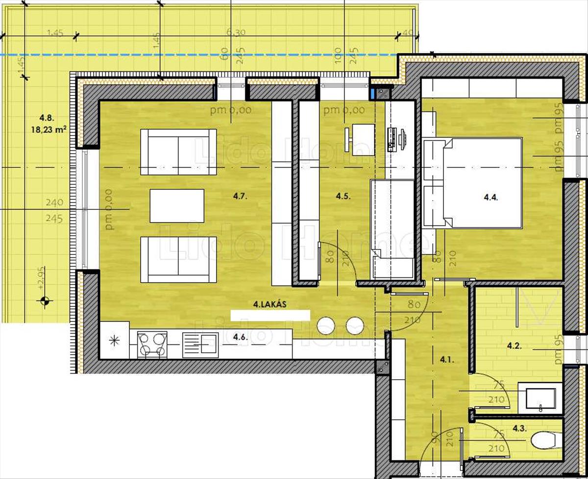
Jelen hirdetésben szereplő emeleti 4. Sz. Lakás jellemzői:
- DNy-i fekvésű,
- 53, 0 m2 nettó alapterület + 18, 0 erkély,
- nappali / 16, 0 m2 /
- kettő szoba /11, 2 + 8, 2 m2/
- konyha+étkező / 6, 0 m2/
- fürdőszoba / 3, 5 m2 /, külön wc /1, 5 m2/
- meleg víz ellátás villanybojlerből,
- közművek egyedi mérővel rendelkeznek,
- rendezett jogi helyzet, lakásonként önálló helyrajzi szám.
Az ingatlan autóval Budapestről 1 óra alatt elérhető az m7 autópályáról. Autópálya ki/felhajtó 2 perc.
Amennyiben a lido home által kínált siófoki lakás, vagy bármely a kínálatunkban található egyéb ingatlan felkeltette az érdeklődését, hívjon a megadott telefonszámon.
Vásárolna, de nincs rá keret?
Kollégám díjmentes, bank semleges hitel ügyintézéssel áll rendelkezésére.
LIDO home- Ingatlanok egy életen át! FIX 3% lakáshitelre megvehető

