Eladó jó állapotú lakás - Siófok
- INGYENES HIRDETÉS FELADÁS
Ingatlan adatai
- Eladó vagy kiadó:Eladó
- Település:Siófok
- Kategória:Lakás
- Alkategória:Tégla
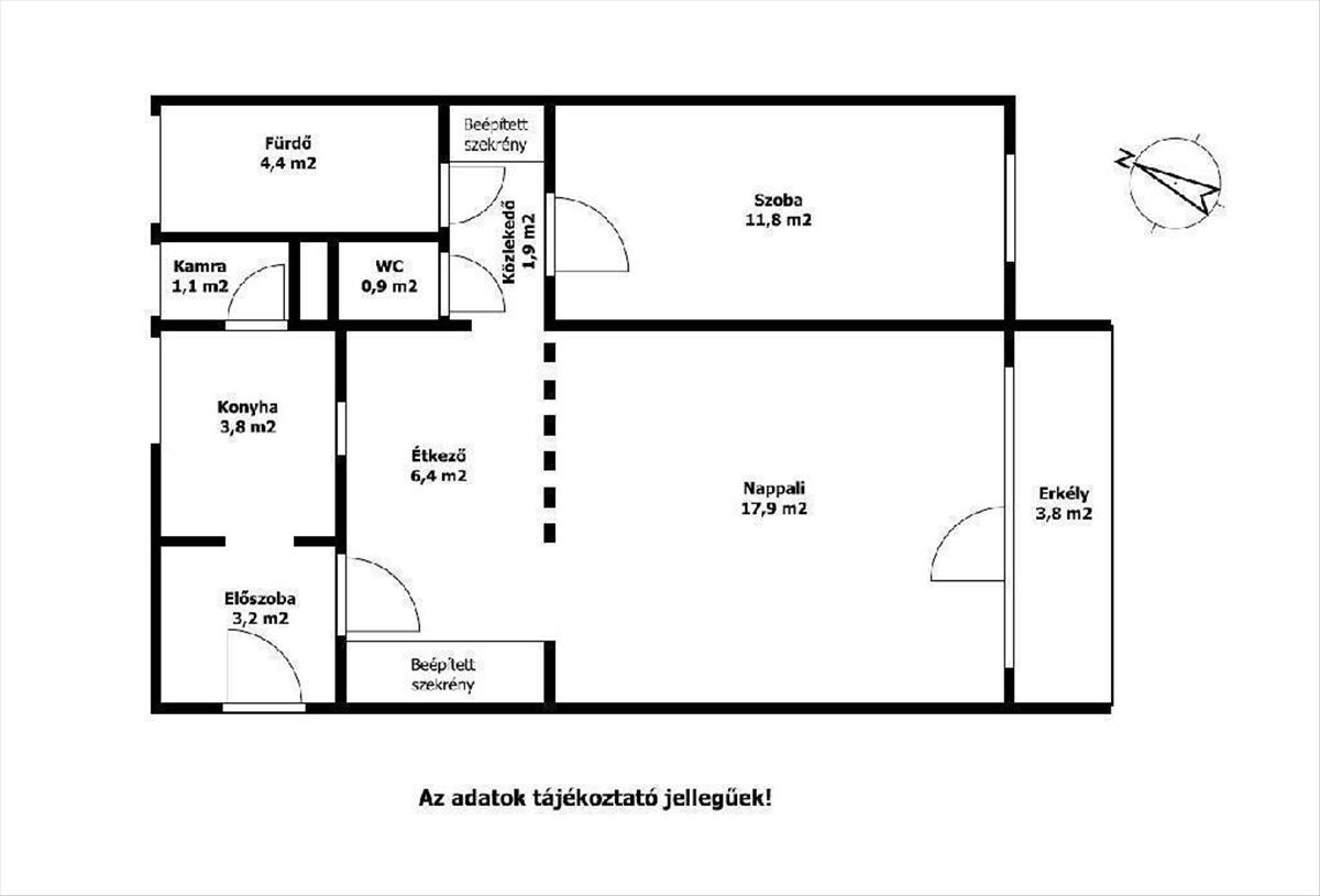
- Alapterület:57 m2
- Csere is:Nem
- Hirdető:Cég
- Élő videón megtekinthető:Nem
- Szobaszám:2
- Állapot:Jó állapotú
- Hány szintes az ingatlan:Földszintes
- Komfortosság:nincs megadva
- Hányadik emeleti:4
- Erkély:nincs megadva
- Lift:Nincs
- Parkolási lehetőség:nincs megadva
- Fűtés:Gáz (konvektor)
- Bútorozottság:nincs megadva
- Fényviszony:Napfényes
- Tájolás:nincs megadva
- Kilátás:nincs megadva
- Internet:nincs megadva
- Klíma:nincs megadva
- Akadálymentesített:nincs megadva
- Energiatanúsítvány:nincs megadva
- Villany:Van
- Víz:Van
- Gáz:nincs megadva
- Csatorna:Van
- Közös költség:8 000 Ft
- Kapcsolatfelvétel

Hitel ajánlatok
Ingatlan hirdetés leírása
Eladó Lakás, Siófok, Eladó jó állapotú lakás - Siófok
Eladó lakás Siófok belvárosában, csendes környezetben.
A Balaton déli partján, Siófok belvárosában, mégis nyugodt, csendes környezetben kínálunk eladásra egy 57 m2-es, kétszobás, erkélyes lakást. Az ingatlan egy társasház negyedik emeletén helyezkedik el, a Fő tértől mindössze 700 méterre.
A lakás fűtését gázkonvektorok és hűtő-fűtő klímaberendezések biztosítják, a melegvizet pedig wifi-vezérlésű okosbojler szolgáltatja. a külső nyílászárók műanyag szerkezetűek, redőnnyel és szúnyoghálóval felszereltek. a biztonságról több ponton záródó bejárati ajtó gondoskodik.
Az épület földszintjén közös kerékpártároló áll rendelkezésre, a parkolás a társasház előtti közterületen ingyenesen megoldott.
A környék infrastruktúrája kiváló: a közelben óvoda, játszótér és vásárlási lehetőségek találhatók. a vasútállomás és az autóbusz-állomás 600 méterre, a Balaton-part és a Nagystrand pedig mindössze 800 méterre érhető el.
Az ingatlan kiváló választás lehet állandó otthonnak, nyaralónak vagy befektetésnek egyaránt.
Bővebb információért, megtekintés egyeztetéséhez keressen bizalommal telefonon! FIX 3% lakáshitelre megvehető
Tetszett ez az eladó Siófoki jó állapotú 2 szobás tégla lakás? Hívd fel a hirdetőt most, és tudj meg mindent erről az eladó tégla lakásról! Ha gondolod nézelődj tovább az eladó lakás Siófok oldal hirdetései között. Ennek az eladó lakásnak az ára 55500000 Ft és mivel az alapterülete 57 négyzetméter, ezért az átlagos négyzetméterára 973684 HUF/m2.
Az eladó lakások menüpontban további hirdetések között is böngészhetsz. Ha van kedved, akkor böngészhetsz a Németh Andrásné összes hirdetése között, vagy akár a/az OTPip Siófok Sió utca 10 - OTP Ingatlanpont Iroda összes hirdetése között is.
További hirdetéseket találsz az eladó Balaton déli parti nyaralók között. Ha a teljes régió kínálata érdekel, nézd meg az eladó Balatoni nyaralók oldalt.

