Eladó új építésű lakás - Siófok
- INGYENES HIRDETÉS FELADÁS
Ingatlan adatai
- Eladó vagy kiadó:Eladó
- Település:Siófok
- Kategória:Lakás
- Alkategória:Tégla
- Alapterület:61 m2
- Csere is:Nem
- Hirdető:Cég
- Élő videón megtekinthető:Nem
- Szobaszám:3
- Állapot:Új építésű
- Hány szintes az ingatlan:Földszintes
- Komfortosság:nincs megadva
- Kertkapcsolatos:Igen
- Hányadik emeleti:1
- Erkély:nincs megadva
- Lift:Van
- Parkolási lehetőség:Udvaron
- Fűtés:Hőszivattyús
- Bútorozottság:nincs megadva
- Fényviszony:nincs megadva
- Tájolás:K
- Kilátás:nincs megadva
- Internet:nincs megadva
- Klíma:nincs megadva
- Akadálymentesített:nincs megadva
- Energiatanúsítvány:nincs megadva
- Villany:Van
- Víz:Van
- Gáz:nincs megadva
- Csatorna:Van
- Kapcsolatfelvétel

Hitel ajánlatok
Ingatlan hirdetés leírása
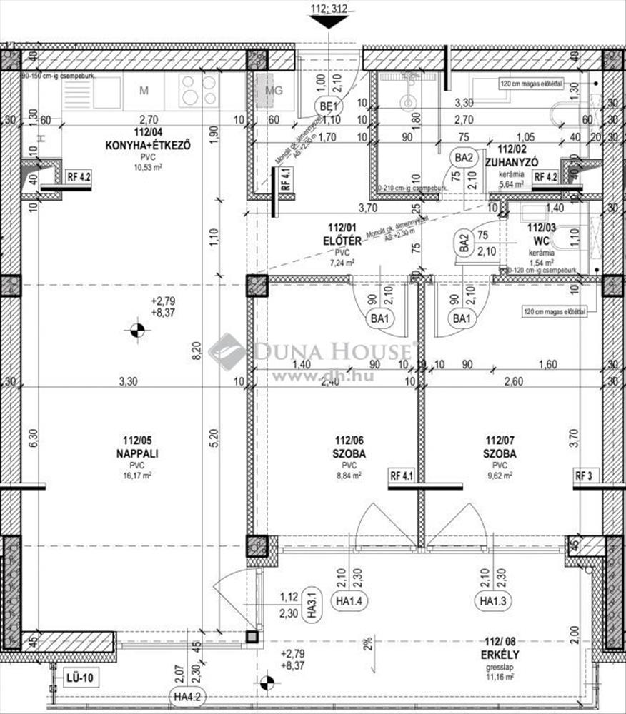
Balatonparti panorámás lakás az Ezüstparton
A projekt keretében egy 1. emeleti, 61 nm -es, nappali + 2 szobás lakás, 11 nm -es erkéllyel várja új tulajdonosát.
Itt az ideje, hogy megszerezze álmai otthonát a Balaton partján! a már megszokott koncepcióhoz modern kivitelezés társul – az épület merőleges a Balatonra, így biztosítva kilátást minden lakásból. a társasházban található lakástípusok minden igénynek megfelelő kialakítással bírnak. a földszinten kertkapcsolatos, az 5. emeleti zárószinten pedig nagy teraszos penthouse lakások várják tulajdonosaikat. Szintenként minden lakástípus fellelhető: a kis lakások kedvelői számára a nappali+1 hálós kialakítás lehet ideális, de ugyanígy lesz nagyobb, akár két, három hálószobás családbarát változat is. Fontos kihangsúlyozni, hogy a kényelem és funkcionalitás egyaránt fontos maradt, ugyanis minden lakás rendelkezik egy Balaton irányába tájolt erkéllyel. a lakások mellé megvásárolható parkolók és tárolók a ház déli oldalán kerülnek elhelyezésre. a lakások belső műszaki felszereltsége megfelel a mai követelményeknek és kényelmi elvárásoknak. a hőszivattyús hűtő-fűtő berendezés egy már jól bevált, energetikailag kifejezetten modern megoldás, mely télen és nyáron is kellemes hőérzetet biztosít és akár távolról is vezérelhető. a melegvíz ellátás lakásonként villanybojler segítségével történik. Az épületben két lift gondoskodik a lakások kényelmes megközelíthetőségéről. Mindenképpen vonzerőnek számít az a zárt terület, mely kizárólag ehhez és a következő 71 lakásos házhoz tartozik. Itt kerül elhelyezésre az a kültéri medence és napozóterasz, mely a telek strandhoz közeli felére tervezett.
Referencia szám: pr012627/f/30 Hitel.hu - Hasonlítsa össze a bankok lakáshitel ajánlatait
Tetszett ez az eladó Siófoki új építésű 3 szobás tégla lakás? Hívd fel a hirdetőt most, és tudj meg mindent erről az eladó tégla lakásról! Ha gondolod nézelődj tovább az eladó lakás Siófok oldal hirdetései között. Ennek az eladó lakásnak az ára 107564625 Ft és mivel az alapterülete 61 négyzetméter, ezért az átlagos négyzetméterára 1763355 HUF/m2.
Az eladó lakások menüpontban további hirdetések között is böngészhetsz. Ha van kedved, akkor böngészhetsz a Lévainé Julika összes hirdetése között, vagy akár a/az Duna House Debrecen - költözés alatt összes hirdetése között is.
További hirdetéseket találsz az eladó Balaton déli parti nyaralók között. Ha a teljes régió kínálata érdekel, nézd meg az eladó Balatoni nyaralók oldalt.

