Eladó új építésű lakás - Siófok
- INGYENES HIRDETÉS FELADÁS
Ingatlan adatai
- Eladó vagy kiadó:Eladó
- Település:Siófok
- Kategória:Lakás
- Alkategória:Tégla
- Alapterület:75 m2
- Csere is:Nem
- Hirdető:Cég
- Élő videón megtekinthető:Nem
- Szobaszám:3
- Állapot:Új építésű
- Hány szintes az ingatlan:Földszintes
- Komfortosság:nincs megadva
- Kertkapcsolatos:Igen
- Hányadik emeleti:5
- Erkély:nincs megadva
- Lift:Van
- Parkolási lehetőség:Udvaron
- Fűtés:Hőszivattyús
- Bútorozottság:nincs megadva
- Fényviszony:Napfényes
- Tájolás:K
- Kilátás:Panorámás
- Internet:nincs megadva
- Klíma:nincs megadva
- Akadálymentesített:nincs megadva
- Energiatanúsítvány:nincs megadva
- Villany:Van
- Víz:Van
- Gáz:nincs megadva
- Csatorna:Van
- Kapcsolatfelvétel

Lévainé Julika
+36-(30)-749-8831
Mondd meg a hirdetőnek, hogy a megveszLAK-on találtad a hirdetést.
Referencia szám: PR012627/F/97
Ingatlan hirdetés leírása
Balatoni lakás gyönyörű panorámával
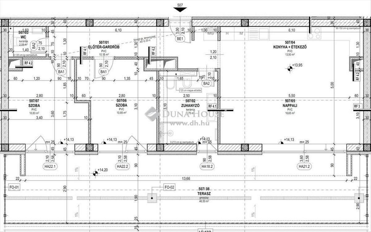
A projekt keretében egy 5. emeleti, nappali + 2 szobás lakás, 45 nm-es erkéllyel várja új tulajdonosát.
Itt az ideje, hogy megszerezze álmai otthonát a Balaton partján!
A már megszokott koncepcióhoz modern kivitelezés társul – az épület merőleges a Balatonra, így biztosítva kilátást minden lakásból. a társasházban található lakástípusok minden igénynek megfelelő kialakítással bírnak. a földszinten kertkapcsolatos, az 5. emeleti zárószinten pedig nagy teraszos penthouse lakások várják tulajdonosaikat. Szintenként minden lakástípus fellelhető: a kis lakások kedvelői számára a nappali+1 hálós kialakítás lehet ideális, de ugyanígy lesz nagyobb, akár két, három hálószobás családbarát változat is. Fontos kihangsúlyozni, hogy a kényelem és funkcionalitás egyaránt fontos maradt, ugyanis minden lakás rendelkezik egy Balaton irányába tájolt erkéllyel. a lakások mellé megvásárolható parkolók és tárolók a ház déli oldalán kerülnek elhelyezésre. a lakások belső műszaki felszereltsége megfelel a mai követelményeknek és kényelmi elvárásoknak. a hőszivattyús hűtő-fűtő berendezés egy már jól bevált, energetikailag kifejezetten modern megoldás, mely télen és nyáron is kellemes hőérzetet biztosít és akár távolról is vezérelhető. a melegvíz ellátás lakásonként villanybojler segítségével történik. Az épületben két lift gondoskodik a lakások kényelmes megközelíthetőségéről. Mindenképpen vonzerőnek számít az a zárt terület, mely kizárólag ehhez és a következő 71 lakásos házhoz tartozik. Itt kerül elhelyezésre az a kültéri medence és napozóterasz, mely a telek strandhoz közeli felére tervezett.
Referencia szám: pr012627/f/97 Hitel.hu - Hasonlítsa össze a bankok lakáshitel ajánlatait


