Eladó új építésű lakás - Siófok
- INGYENES HIRDETÉS FELADÁS
Ingatlan adatai
- Eladó vagy kiadó:Eladó
- Település:Siófok
- Kategória:Lakás
- Alkategória:Tégla
- Alapterület:61 m2
- Csere is:Nem
- Hirdető:Cég
- Élő videón megtekinthető:Nem
- Szobaszám:3
- Állapot:Új építésű
- Hány szintes az ingatlan:nincs megadva
- Komfortosság:nincs megadva
- Hányadik emeleti:1
- Erkély:nincs megadva
- Lift:nincs megadva
- Parkolási lehetőség:nincs megadva
- Fűtés:Egyedi
- Bútorozottság:nincs megadva
- Fényviszony:nincs megadva
- Tájolás:nincs megadva
- Kilátás:nincs megadva
- Internet:nincs megadva
- Klíma:nincs megadva
- Akadálymentesített:nincs megadva
- Energiatanúsítvány:nincs megadva
- Villany:nincs megadva
- Víz:nincs megadva
- Gáz:nincs megadva
- Csatorna:nincs megadva
- Kapcsolatfelvétel

Hitel ajánlatok
Ingatlan hirdetés leírása
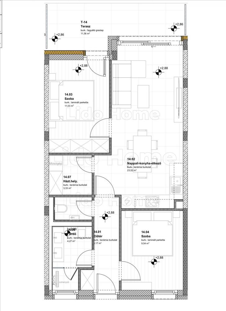
Balatoni részpanorámás új építésű lakás
Eladó Siófok-Széplak egyik legkedveltebb részén, közvetlen vízparti, liftes, rendezett társasházban egy év végén átadásra kerülő, építés alatt álló, első emeleti lakás.
A nettó lakótér 61 m², praktikus elosztással, nappali + 2 hálóval, amelyhez egy 12 m²-es terasz kapcsolódik, balatoni részpanorámával.
Az ingatlan modern műszaki tartalommal készül, hőszivattyús hűtés-fűtési rendszerrel.
A közvetlen vízparti elhelyezkedés, a rendezett társasházi környezet és a balatoni kilátás egyaránt alkalmassá teszi saját használatra vagy üzemeltetési célra is.
Lido Home - Ingatlanok egy életen át! Hitel.hu - Hasonlítsa össze a bankok lakáshitel ajánlatait
Tetszett ez az eladó Siófoki új építésű 3 szobás tégla lakás? Hívd fel a hirdetőt most, és tudj meg mindent erről az eladó tégla lakásról! Ha gondolod nézelődj tovább az eladó lakás Siófok oldal hirdetései között. Ennek az eladó lakásnak az ára 119000000 Ft és mivel az alapterülete 61 négyzetméter, ezért az átlagos négyzetméterára 1950820 HUF/m2.
Az eladó lakások menüpontban további hirdetések között is böngészhetsz. Ha van kedved, akkor böngészhetsz a Göcsei Gergő összes hirdetése között, vagy akár a/az Lido Home Balatonkenese összes hirdetése között is.
További hirdetéseket találsz az eladó Balaton déli parti nyaralók között. Ha a teljes régió kínálata érdekel, nézd meg az eladó Balatoni nyaralók oldalt.

