Eladó új építésű lakás Siófok
| Kedvencbe | Megosztás | Árfigyelő |
| Kedvezményes lakáshitel ajánlatok | ||
| 339 000 000 HUF | ||
Ingatlan adatai
- Eladó vagy kiadó:Eladó
- Település:Siófok
- Kategória:Lakás
- Alkategória:Tégla
- Alapterület:194 m2
- Csere is:Nem
- Hirdető:Cég
- Élő videón megtekinthető:Nem
- Szobaszám:5
- Állapot:Új építésű
- Hány szintes az ingatlan:Földszintes
- Komfortosság:nincs megadva
- Hányadik emeleti:1
- Lift:Nincs
- Parkolási lehetőség:Udvaron
- Fűtés:Hőszivattyús
- Bútorozottság:nincs megadva
- Fényviszony:Napfényes
- Tájolás:nincs megadva
- Kilátás:nincs megadva
- Internet:nincs megadva
- Akadálymentesített:nincs megadva
- Energiatanúsítvány:nincs megadva
- Villany:Van
- Víz:Van
- Gáz:nincs megadva
- Csatorna:Van
- Közös költség:1 Ft
- Üzenetküldés
- Hívás

Referencia szám: M297553

Hitel ajánlat
Ingatlan hirdetés leírása
Eladó Lakás, Siófok, Eladó új építésű lakás - Siófok
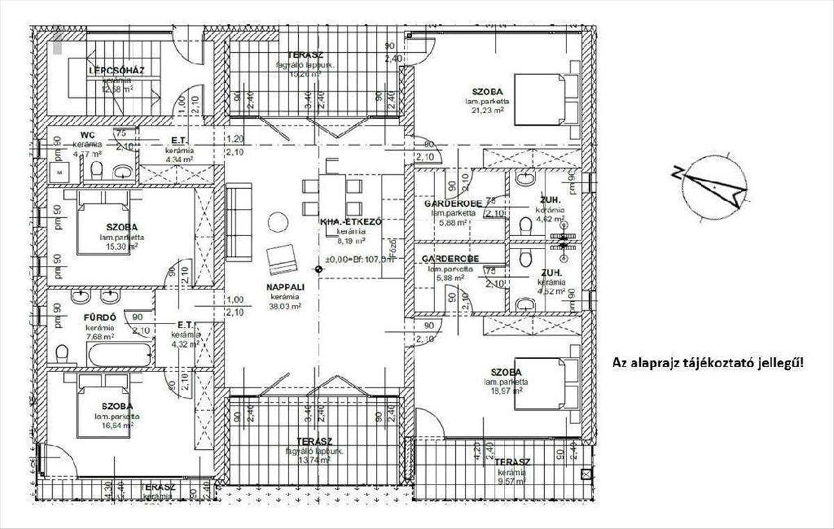
Balaton Déli parton, Siófokon, 194 m2-es lakás eladó. Az ingatlan a település Aranypart üdülőövezetében helyezkedik el, 100 méterre a vízparttól, szabadstrandtól. a 602 m2-es telken egy 3 lakásos társasház épül, melynek ez a földszinti, 173 m2-es lakása négy, összesen 42 m2 terasszal. Az energiatakarékos, a+ energetikai besorolású ház várható rezsiköltsége 1. 000 Ft/m2/év, és igény esetén okos otthonként is üzemeltethető. a padlófűtést és a lakás hűtését hőszivattyú biztosítja. Az ár a kulcsrakész állapotra vonatkozik, tartalmazza az elektromos redőny, szúnyogháló, konyhabútor, valamint 2 gépkocsibeálló árát, de igény esetén garázs is kialakítható a lakótér átalakításával. Tovább növeli az ingatlan értékét, hogy a lakáshoz tartozik egy kb. 100 m2-es, kizárólagos használatú kertrész is. a minőség tekintetében kiváló, a lokáció szempontjából egyedülálló lehetőség állandó lakhatásra vagy nyaralásra, de befektetésnek, kiadásra is tökéletes megoldás. a minőséget egy többszörösen díjazott tervező-kivitelező társaság garantálja. Bővebb információért keressen telefonon!m297553
Az OTP Ingatlanpont, mint egyetlen közvetlen banki hátterű ingatlanközvetítő társaság teljes körű ügyintézéssel áll az eladók és a vevők rendelkezésére! a kínálatunkból választott ingatlan finanszírozásához minősített fogyasztóbarát, piaci és kedvezményes hitel- és lízingkonstrukciókat kínálunk (lakásvásárlási hitel, CSOK plusz, szabad felhasználású hitel, babaváró hitel, céges hitelek, pályázatok). Az adásvételi szerződés megkötéséhez igény szerint megbízható ügyvédi közreműködést biztosítunk, és segítséget nyújtunk az adásvételhez kapcsolódó egyéb ügyek intézéséhez.
Ha az új ingatlana megvásárlásához a jelenlegi ingatlanát el kell adnia, abban is szívesen segítünk.
Referencia szám: m297553-ml Hitel.hu - Hasonlítsa össze a bankok lakáshitel ajánlatait

