Eladó új építésű lakás - Siófok
- INGYENES HIRDETÉS FELADÁS
Ingatlan adatai
- Eladó vagy kiadó:Eladó
- Település:Siófok
- Kategória:Lakás
- Alkategória:Tégla
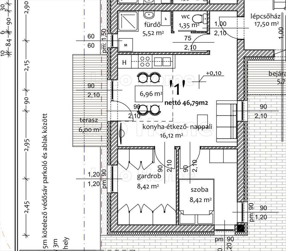
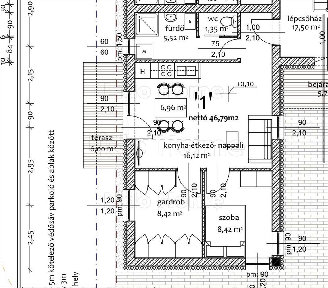
- Alapterület:47 m2
- Csere is:Nem
- Hirdető:Cég
- Élő videón megtekinthető:Nem
- Szobaszám:3
- Állapot:Új építésű
- Hány szintes az ingatlan:nincs megadva
- Komfortosság:nincs megadva
- Kertkapcsolatos:Igen
- Hányadik emeleti:Földszint
- Erkély:nincs megadva
- Lift:nincs megadva
- Parkolási lehetőség:nincs megadva
- Fűtés:Egyedi
- Bútorozottság:nincs megadva
- Fényviszony:nincs megadva
- Tájolás:nincs megadva
- Kilátás:nincs megadva
- Internet:nincs megadva
- Klíma:nincs megadva
- Akadálymentesített:nincs megadva
- Energiatanúsítvány:nincs megadva
- Villany:nincs megadva
- Víz:nincs megadva
- Gáz:nincs megadva
- Csatorna:nincs megadva
- Kapcsolatfelvétel

Hitel ajánlatok
Ingatlan hirdetés leírása
Medencés házban kedvező áron új lakás?
Új építésű, ősszel átadásra kerülő kertkapcsolatos téglalakás eladó Siófok-Sóstón, a Balatontól mindössze 800 méterre!
Siófok kedvelt, csendes részén, Sóstón kínálunk megvételre egy új építésű, modern téglalakást, egy 7 lakásos, hőszigetelt társasházban, amely közös használatú medencével is rendelkezik – tökéletes választás nyaralónak vagy állandó otthonnak!
Lakás jellemzői:
-Hasznos alapterület: 47 m²
-Nappali + 2 hálószoba elosztás
-6 m² fedett terasz
-30 m² saját kertkapcsolat a földszinti elhelyezkedésnek köszönhetően
-Korszerű padlófűtés egyedi levegő–víz hőszivattyúval, "h" tarifáról
-Meleg víz ellátás: hőszivattyús villanybojler
-Split klíma a nappaliban
-
Extra lehetőség:
Parkoló: 2 m Ft
Kiváló infrastruktúra, nyugodt környezet, modern műszaki megoldások – ez a lakás ideális választás a Balaton szerelmeseinek, akik nem szeretnének kompromisszumot kötni a kényelem és az energiatakarékosság terén.
Ne maradjon le róla – költözzön ősszel az új otthonába Siófok-Sóstón!
További információért és megtekintésért keressen bizalommal!
Lido Home - Ingatlanok egy életen át! Hitel.hu - Hasonlítsa össze a bankok lakáshitel ajánlatait
Tetszett ez az eladó Siófoki új építésű 3 szobás tégla lakás? Hívd fel a hirdetőt most, és tudj meg mindent erről az eladó tégla lakásról! Ha gondolod nézelődj tovább az eladó lakás Siófok oldal hirdetései között. Ennek az eladó lakásnak az ára 72000000 Ft és mivel az alapterülete 47 négyzetméter, ezért az átlagos négyzetméterára 1531915 HUF/m2.
Az eladó lakások menüpontban további hirdetések között is böngészhetsz. Ha van kedved, akkor böngészhetsz a Göcsei Gergő összes hirdetése között, vagy akár a/az Lido Home Balatonkenese összes hirdetése között is.
További hirdetéseket találsz az eladó Balaton déli parti nyaralók között. Ha a teljes régió kínálata érdekel, nézd meg az eladó Balatoni nyaralók oldalt.

