Eladó új építésű lakás - Siófok
- INGYENES HIRDETÉS FELADÁS
Ingatlan adatai
- Eladó vagy kiadó:Eladó
- Település:Siófok
- Kategória:Lakás
- Alkategória:Tégla
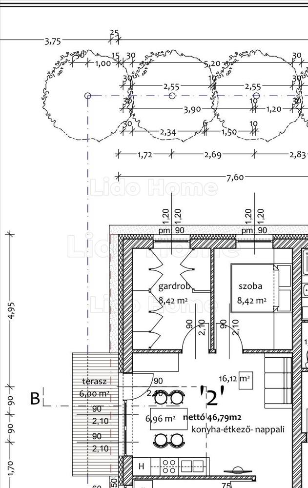
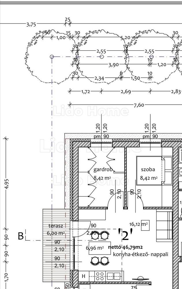
- Alapterület:47 m2
- Csere is:Nem
- Hirdető:Cég
- Élő videón megtekinthető:Nem
- Szobaszám:3
- Állapot:Új építésű
- Hány szintes az ingatlan:nincs megadva
- Komfortosság:nincs megadva
- Kertkapcsolatos:Igen
- Hányadik emeleti:Földszint
- Erkély:nincs megadva
- Lift:nincs megadva
- Parkolási lehetőség:nincs megadva
- Fűtés:Egyedi
- Bútorozottság:nincs megadva
- Fényviszony:nincs megadva
- Tájolás:nincs megadva
- Kilátás:nincs megadva
- Internet:nincs megadva
- Klíma:nincs megadva
- Akadálymentesített:nincs megadva
- Energiatanúsítvány:nincs megadva
- Villany:nincs megadva
- Víz:nincs megadva
- Gáz:nincs megadva
- Csatorna:nincs megadva
- Kapcsolatfelvétel

Hitel ajánlatok
Ingatlan hirdetés leírása
Medencés házban kedvező áron új lakás
Siófok-Sóstó kedvelt részén kínálunk megvételre egy építés alatt álló, 7 lakásos, medencés társasház lakásait.
A társasház kiváló lehetőség állandó otthonnak, nyaralónak vagy befektetésnek is. a Balaton 800 méterre található, google szerint 11 perc gyalogosan.
Várható átadás: 2026 nyár vége
Lakástípusok
Földszinti és emeleti lakások
• alapterület: 47–48 m²
• elrendezés: nappali + 2 hálószoba
• a földszinti lakásokhoz 26–99 m²-es saját kertkapcsolat tartozik
• az emeleti lakásokhoz 6 m²-es fedett terasz kapcsolódik
Penthouse lakás
• alapterület: 74 m²
• elrendezés: nappali + 3 hálószoba
• 30 m²-es terasz
Árak
• Kisebb lakások: 71–75 millió Ft, kulcsrakész állapotban
• az ár az elhelyezkedés és a kert méretének függvényében változik
• Penthouse lakás: 95 millió Ft
• Parkoló: 3 millió Ft
Műszaki tartalom
• hőszivattyús padlófűtés, H tarifáról
• klímaberendezés
• hőszigetelt tégla falazat
• 3 rétegű, 5 légkamrás nyílászárók
• az udvarban közös használatú medence
A hirdetésben szereplő képek között referenciaképek is találhatók.
Megtekintés hétvégén is lehetséges, előre egyeztetett időpontban.
Lido Home - Ingatlanok egy életen át! Hitel.hu - Hasonlítsa össze a bankok lakáshitel ajánlatait
Tetszett ez az eladó Siófoki új építésű 3 szobás tégla lakás? Hívd fel a hirdetőt most, és tudj meg mindent erről az eladó tégla lakásról! Ha gondolod nézelődj tovább az eladó lakás Siófok oldal hirdetései között. Ennek az eladó lakásnak az ára 75000000 Ft és mivel az alapterülete 47 négyzetméter, ezért az átlagos négyzetméterára 1595745 HUF/m2.
Az eladó lakások menüpontban további hirdetések között is böngészhetsz. Ha van kedved, akkor böngészhetsz a Göcsei Gergő összes hirdetése között, vagy akár a/az Lido Home Balatonkenese összes hirdetése között is.
További hirdetéseket találsz az eladó Balaton déli parti nyaralók között. Ha a teljes régió kínálata érdekel, nézd meg az eladó Balatoni nyaralók oldalt.

