Eladó új építésű lakás - Siófok
- INGYENES HIRDETÉS FELADÁS
Ingatlan adatai
- Eladó vagy kiadó:Eladó
- Település:Siófok
- Kategória:Lakás
- Alkategória:Tégla
- Alapterület:92 m2
- Csere is:Nem
- Hirdető:Cég
- Élő videón megtekinthető:Nem
- Szobaszám:4
- Állapot:Új építésű
- Hány szintes az ingatlan:nincs megadva
- Komfortosság:nincs megadva
- Hányadik emeleti:Földszint
- Erkély:nincs megadva
- Lift:nincs megadva
- Parkolási lehetőség:nincs megadva
- Fűtés:Egyedi
- Bútorozottság:nincs megadva
- Fényviszony:nincs megadva
- Tájolás:nincs megadva
- Kilátás:nincs megadva
- Internet:nincs megadva
- Klíma:nincs megadva
- Akadálymentesített:nincs megadva
- Energiatanúsítvány:nincs megadva
- Villany:nincs megadva
- Víz:nincs megadva
- Gáz:nincs megadva
- Csatorna:nincs megadva
- Kapcsolatfelvétel

Hitel ajánlatok
Ingatlan hirdetés leírása
LUXUSBA ÁGYAZOTT KÉNYELEM SIÓFOKON!
A lido home ingatlan siófoki irodája eladásra kínálja ezt az új építésű, exkluzív minőségű, bútorozott lakást SIÓFOK-SÓSTÓN!
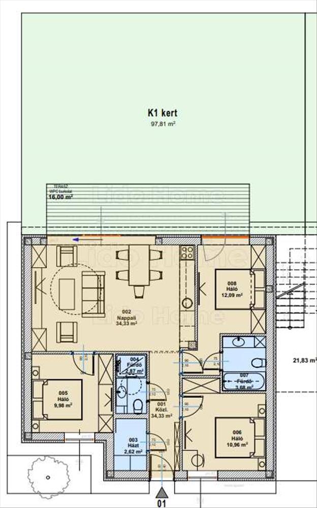
Balatontól 600 m-re épülő 7 lakásos, 2 emeletes társasházban kínálunk többféle áron és méretben lakásokat. Az építkezés javában zajlik, a lakások átadására 2026. II. Negyedévében kerül sor. a lakások a legkorszerűbb technológiával és anyagokkal készülnek, bútorozottan, háztartási gépekkel felszerelve kerülnek átadásra. Jelen hirdetésben szereplő nappali+3 szobás+kettő fürdőszobás lakás fűtését hőszivattyús padlófűtés, hűtését fan-coil rendszer biztosítja. a lakáshoz mintegy 100 m2 saját kertrész tartozik. Az udvaron 8x4 m-es medence kerül megépítésre. Az egyes lakások önálló gépkocsi beállóval rendelkeznek.
Jelen hirdetésben szereplő 1. Sz. Lakás jellemzői:
- földszinti,
- DNy-i fekvésű,
- 84, 0 m2 alapterület + 16, 0 m2 terasz + 98, 0 m2 saját kert,
- fokozott hőtároló képességű tégla falazat, 15 cm-es grafitos hőszigetelés,
- nappali + három szobás, kettő fürdőszobás,
- Daikin Altherma 3-as levegő/víz hőszivattyús padlófűtés, hűtés fan-coil rendszer, távirányítással és telefonos applikációról vezérelve,
- magas minőségű burkolatok, egyedi kivitelezésű konyha és beépített bútorok,
- „h” tarifa, 3 fázisú elektromos rendszer,
- kertészeti terv szerint kertépítés, kültéri világítás, esőérzékelős öntöző rendszer,
- rendezett jogi helyzet, lakásonként önálló helyrajzi szám.
A hirdetésben szereplő képek látványtervek, a fotók a folyamatos építkezésről készültek.
Amennyiben a lido home által kínált siófoki luxuslakás, vagy bármely a kínálatunkban található egyéb ingatlan felkeltette az érdeklődését, hívjon a megadott telefonszámon.
Vásárolna, de nincs rá keret?
Kollégám díjmentes, bank semleges hitel ügyintézéssel áll rendelkezésére.
LIDO home- Ingatlanok egy életen át! Hitel.hu - Hasonlítsa össze a bankok lakáshitel ajánlatait
Tetszett ez az eladó Siófoki új építésű 4 szobás tégla lakás? Hívd fel a hirdetőt most, és tudj meg mindent erről az eladó tégla lakásról! Ha gondolod nézelődj tovább az eladó lakás Siófok oldal hirdetései között. Ennek az eladó lakásnak az ára 169000000 Ft és mivel az alapterülete 92 négyzetméter, ezért az átlagos négyzetméterára 1836957 HUF/m2.
Az eladó lakások menüpontban további hirdetések között is böngészhetsz. Ha van kedved, akkor böngészhetsz a Gálicz Zsolt összes hirdetése között, vagy akár a/az Lido Home Siófok összes hirdetése között is.
További hirdetéseket találsz az eladó Balaton déli parti nyaralók között. Ha a teljes régió kínálata érdekel, nézd meg az eladó Balatoni nyaralók oldalt.

