Eladó lakás Sopron
| Kedvencbe | Megosztás | Árfigyelő |
| FIX 3% lakáshitelre megvehető | ||
| 38 000 000 HUF | ||
Ingatlan adatai
- Eladó vagy kiadó:Eladó
- Település:Sopron
- Kategória:Lakás
- Alkategória:Tégla
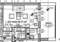
- Alapterület:37 m2
- Csere is:Nem
- Hirdető:Cég
- Élő videón megtekinthető:Nem
- Szobaszám:1
- Állapot:nincs megadva
- Hány szintes az ingatlan:nincs megadva
- Komfortosság:nincs megadva
- Hányadik emeleti:nincs megadva
- Parkolási lehetőség:Teremgarázsban (fizetős)
- Fűtés:nincs megadva
- Bútorozottság:nincs megadva
- Fényviszony:nincs megadva
- Tájolás:DK
- Kilátás:nincs megadva
- Internet:nincs megadva
- Akadálymentesített:nincs megadva
- Energiatanúsítvány:A
- Villany:nincs megadva
- Víz:nincs megadva
- Gáz:nincs megadva
- Csatorna:nincs megadva
- Üzenetküldés
- Hívás


Hitel ajánlat
Ingatlan hirdetés leírása
Panoráma lakópark-otthon a város felett
C21Hőszivattyúval és napelemmel működő fűtés- és melegvíz ellátás, mely nem jár költséggel! ! !
Sopron kertvárosi övezetében, most induló új projekt keretében eladó egy 37 m2 méretű, nagy erkélyes, második emeleti garzon.
A társasház kivitelezése jelenleg az korai szakaszban tart, ezért a most megvásárolt ingatlannál még lehet élni a kezdeti stádium előnyeivel.
Tároló, teremgarázs, garázs és felszíni beálló is vásárolható.
Magas szintű technológiai paraméterek, megtérülő befektetés.
Hitel ügyintézésben segítséget nyújtunk.
Vásárolna, de most nincs rá pénzügyi keret? Kolléganőm, Szilágyi Melinda díjmentes, bankfüggetlen, személyre szabott hitel ügyintézéssel áll rendelkezésére. Amennyiben a. . . . . . . 164302822. . . . . . . . . . . . . . Számú, vagy bármely kínálatunkban szereplő ingatlan felkeltette érdeklődését, hívjon a megadott telefonszámon, vagy forduljon a központi irodánkhoz, Sopron, Várkerület 19. Tel: +36 99 386 607. FIX 3% lakáshitelre megvehető

