Eladó új építésű lakás Szántód
| Kedvencbe | Megosztás | Árfigyelő |
| FIX 3% lakáshitelre megvehető | ||
| 94 900 000 HUF | ||
Ingatlan adatai
- Eladó vagy kiadó:Eladó
- Település:Szántód
- Kategória:Lakás
- Alkategória:Tégla
- Alapterület:75 m2
- Csere is:Nem
- Hirdető:Cég
- Élő videón megtekinthető:Nem
- Szobaszám:3
- Állapot:Új építésű
- Hány szintes az ingatlan:nincs megadva
- Komfortosság:nincs megadva
- Hányadik emeleti:1
- Parkolási lehetőség:nincs megadva
- Fűtés:Elektromos
- Bútorozottság:nincs megadva
- Fényviszony:nincs megadva
- Tájolás:nincs megadva
- Kilátás:nincs megadva
- Internet:nincs megadva
- Akadálymentesített:nincs megadva
- Energiatanúsítvány:nincs megadva
- Villany:nincs megadva
- Víz:nincs megadva
- Gáz:nincs megadva
- Csatorna:nincs megadva
- Üzenetküldés
- Hívás

Huszár Frigyes Attila
Mondd meg a hirdetőnek, hogy a megveszLAK-on találtad a hirdetést.

Hitel ajánlat
Ingatlan hirdetés leírása
A siófoki Lakáskulcs-direct Ingatlan és Hiteliroda kínálatában...
A siófoki Lakáskulcs-direct Ingatlan és Hiteliroda kínálatában:Szántódon a szabadstrandnál, azonnal birtokba vehető, új építésű, igényes, belső kétszintes lakás eladó.
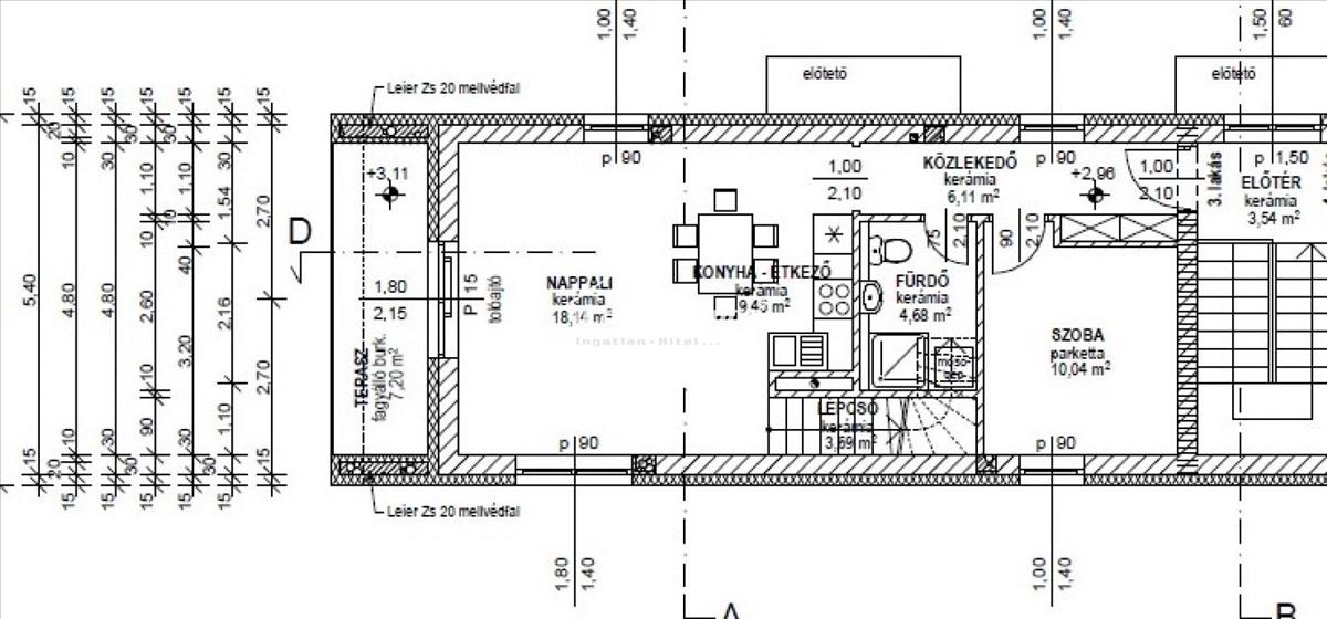
A 75 m2 lakás ( + 8 m2 terasz + 27 m2 terasz + 3 m2 loggia) elosztása:
az alsó szinten amerikai konyhás nappali erkéllyel, egy hálószoba a fürdőszoba, az emeleti részen külön lakrészben hálószoba, loggia, társalgó, mely a 27 m2-es teraszra nyílik, valamint külön fürdőszoba található.
A társasház energia ellátására napelemes rendszer lett kiépítve. Energetikai besorolása bb (Közel nulla energiaigényre vonatkozó követelményeknek megfelelő)
Hideg időben padlófűtés biztosítja a meleget, helyiségenként szabályozható termosztátokkal.
A nyári meleg ellen pedig, minden szobában légkondicionáló lett felszerelve.
A nyílászárókra beépített elektromos redőnyök kerültek.
A lakáshoz belső udvari parkoló is tartozik.
Huszár Frigyes
+36 (20) 535 6044
Lakáskulcs-direct Ingatlan és Hiteliroda:
8600 Siófok, Beszédes József Sétány 83. Földszint 1. (Club 218 épület üzletsor) FIX 3% lakáshitelre megvehető

