Eladó új építésű lakás - Szeged
- INGYENES HIRDETÉS FELADÁS
Ingatlan adatai
- Eladó vagy kiadó:Eladó
- Település:Szeged
- Kategória:Lakás
- Alkategória:Tégla
- Alapterület:62 m2
- Csere is:Nem
- Hirdető:Cég
- Élő videón megtekinthető:Nem
- Szobaszám:3
- Állapot:Új építésű
- Hány szintes az ingatlan:Földszintes
- Komfortosság:nincs megadva
- Hányadik emeleti:Földszint
- Erkély:nincs megadva
- Lift:Van
- Parkolási lehetőség:Udvaron
- Fűtés:Hőszivattyús
- Bútorozottság:nincs megadva
- Fényviszony:Jó
- Tájolás:nincs megadva
- Kilátás:nincs megadva
- Internet:nincs megadva
- Klíma:Van
- Akadálymentesített:nincs megadva
- Energiatanúsítvány:nincs megadva
- Villany:Van
- Víz:Van
- Gáz:nincs megadva
- Csatorna:Van
- Kapcsolatfelvétel

Szandi Zita
+36-(30)-394-5423
Mondd meg a hirdetőnek, hogy a megveszLAK-on találtad a hirdetést.
Referencia szám: M326148
Hitel ajánlatok
Ingatlan hirdetés leírása
Eladó Lakás, Szeged, Eladó új építésű lakás - Szeged
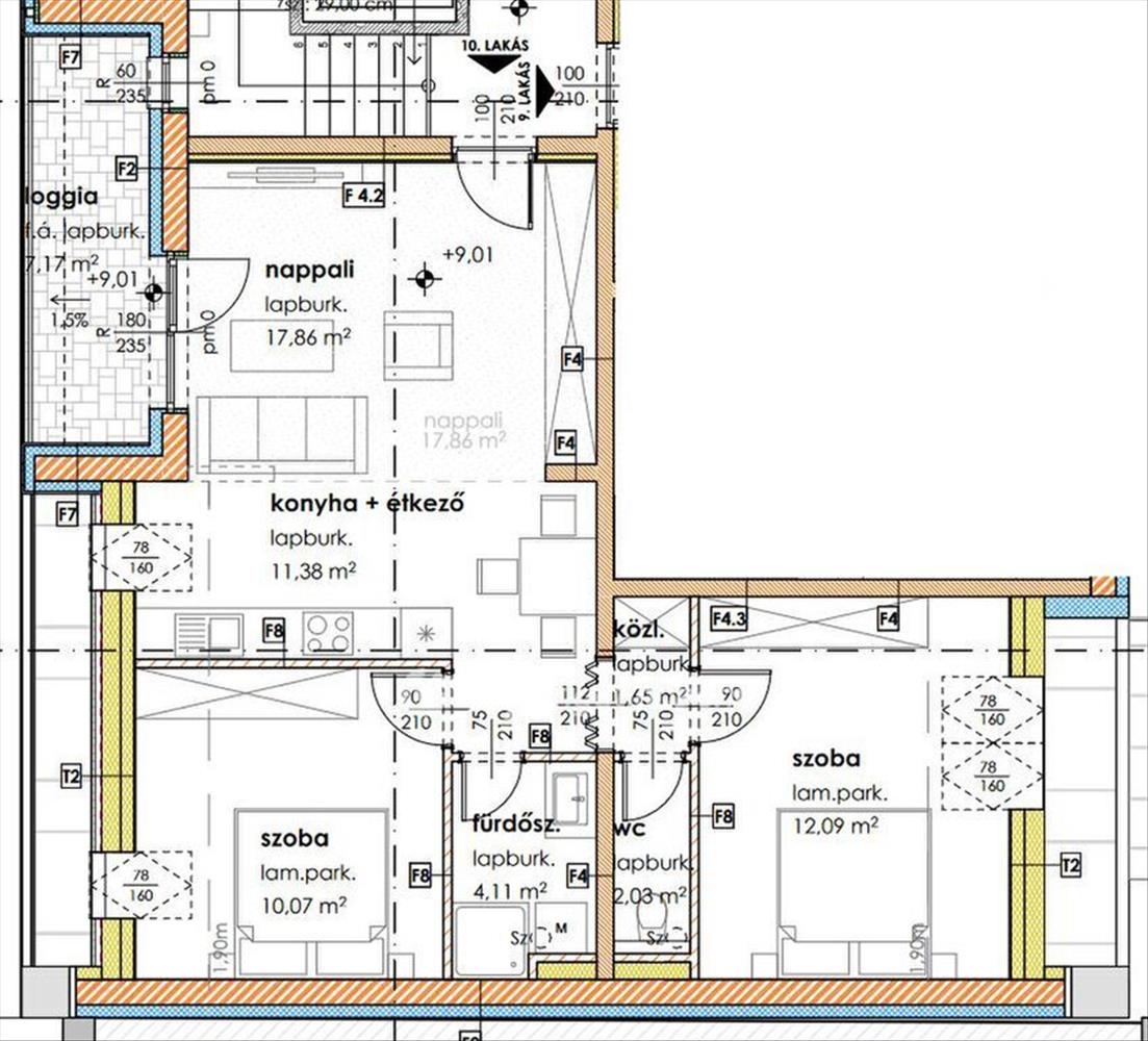
Csongrád - Csanád vármegye, Szeged-Belváros közelében elhelyezkedő épülő liftes társasházban, harmadik emeleti 62, 78 m2 alapterületű, utcára néző loggiás lakás eladó. Az ingatlan kulcsrakészen kerül átadásra ( konyhabútor nélkül). Az épület téglából, hőszigeteléssel, korszerű technológiával készül. Az otthon melegét hőszivattyús rendszer biztosítja, padlófűtéssel és fan coli hűtéssel. a lakás elosztása szerint egy amerikai konyhás nappali - 2 db hálószobából áll. a lakásban továbbá egy wc és egy zuhanyzós fürdőszoba kerül kialakításra. a 7, 17 m2 alapterületű loggiára a nappaliból nyílik ajtó. a lakáshoz garázs vagy udvari parkolóhely is vásárolható. a kínálatunkból választott ingatlan finanszírozásához kedvezményes hitel- és pénzügyi konstrukciókat, hitel megoldásokat kínálunk. Az adásvételi szerződés megkötéséhez igény szerint, megbízható ügyvédi közreműködést és a kapcsolódó ügyek intézéséhez segítséget nyújtunk. FIX 3% lakáshitelre megvehető
Tetszett ez az eladó Szegedi új építésű 3 szobás tégla lakás? Hívd fel a hirdetőt most, és tudj meg mindent erről az eladó tégla lakásról! Ha gondolod nézelődj tovább az eladó lakás Szeged oldal hirdetései között. Ennek az eladó lakásnak az ára 92000000 Ft és mivel az alapterülete 62 négyzetméter, ezért az átlagos négyzetméterára 1483871 HUF/m2.
Az eladó lakások menüpontban további hirdetések között is böngészhetsz. Ha van kedved, akkor böngészhetsz a Szandi Zita összes hirdetése között, vagy akár a/az OTPip Szeged Széchenyi tér 6 - OTP Ingatlanpont Iroda összes hirdetése között is.

