Eladó új építésű lakás - Szeged
- INGYENES HIRDETÉS FELADÁS
Ingatlan adatai
- Eladó vagy kiadó:Eladó
- Település:Szeged
- Kategória:Lakás
- Alkategória:Tégla
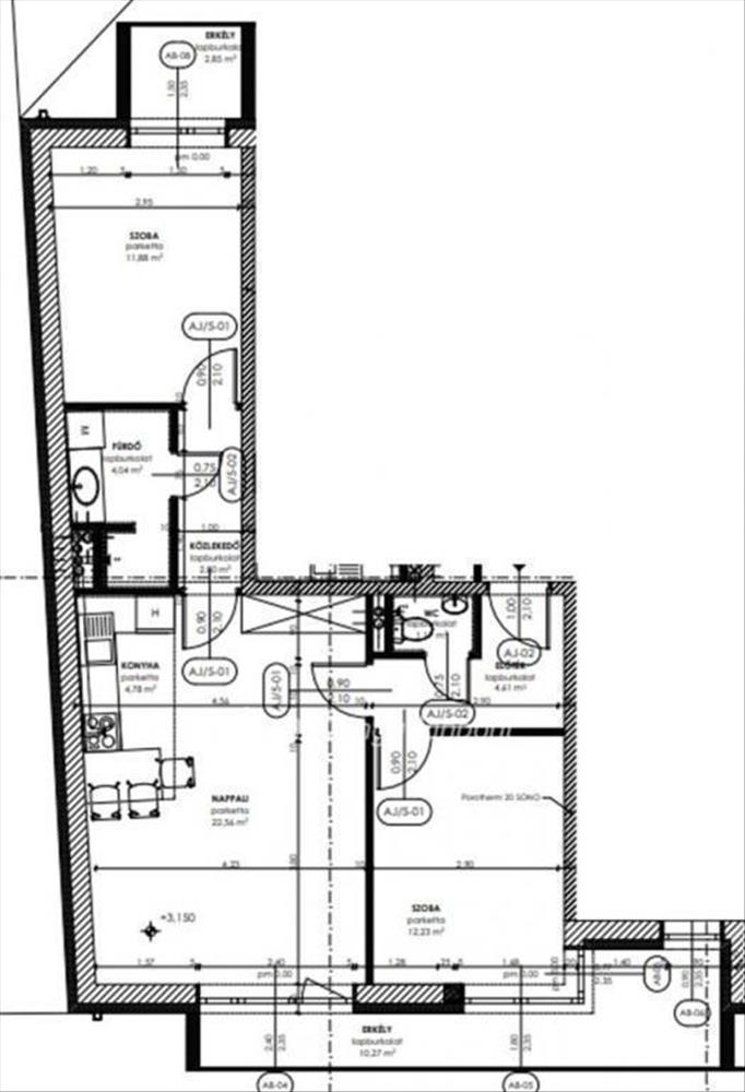
- Alapterület:70 m2
- Csere is:Nem
- Hirdető:Cég
- Élő videón megtekinthető:Nem
- Szobaszám:3
- Állapot:Új építésű
- Hány szintes az ingatlan:Földszintes
- Komfortosság:nincs megadva
- Hányadik emeleti:1
- Erkély:nincs megadva
- Lift:Nincs
- Parkolási lehetőség:Teremgarázsban
- Fűtés:Hőszivattyús
- Bútorozottság:nincs megadva
- Fényviszony:Jó
- Tájolás:nincs megadva
- Kilátás:nincs megadva
- Internet:nincs megadva
- Klíma:nincs megadva
- Akadálymentesített:nincs megadva
- Energiatanúsítvány:nincs megadva
- Villany:Van
- Víz:Van
- Gáz:nincs megadva
- Csatorna:Van
- Közös költség:10 000 Ft
- Kapcsolatfelvétel

Szerencsi Éva
+36-(30)-363-6276
Mondd meg a hirdetőnek, hogy a megveszLAK-on találtad a hirdetést.
Referencia szám: M296443
Hitel ajánlatok
Ingatlan hirdetés leírása
Eladó Lakás, Szeged, Eladó új építésű lakás - Szeged
Szeged, Móraváros, 70, 6 m2-es, 3 szobás, 1. emeleti, új építésű téglalakás, tulajdonos-kivitelezőtől, 20% kezdő befizetéssel eladó. a kulcsrakész átadás tervezett időpontja: 2027. 06. 30. a lakásban amerikai konyhás nappali, 2 szoba, fürdőszoba, wc és erkély található. a szobák laminált parketta-, a többi helyiség járólap burkolatot kapnak. Az otthon melegét hőszivattyús fűtés biztosítja. a lakáshoz opcionálisan, udvari beálló, vagy garázs is vásárolható. a tik, egyetemi épületek, klinikák és tömegközlekedési megállók mindössze pár perc sétára találhatók, ezért rendkívül kedvező lehetőség lehet, befektetők és diákok számára is. Az ingatlan megvásárlásához kedvező hitel is igényelhető, melynek intézéséhez szakszerű segítség áll a leendő vásárló rendelkezésére. FIX 3% lakáshitelre megvehető
Tetszett ez az eladó Szegedi új építésű 3 szobás tégla lakás? Hívd fel a hirdetőt most, és tudj meg mindent erről az eladó tégla lakásról! Ha gondolod nézelődj tovább az eladó lakás Szeged oldal hirdetései között. Ennek az eladó lakásnak az ára 52768500 Ft és mivel az alapterülete 70 négyzetméter, ezért az átlagos négyzetméterára 753836 HUF/m2.
Az eladó lakások menüpontban további hirdetések között is böngészhetsz. Ha van kedved, akkor böngészhetsz a Szerencsi Éva összes hirdetése között, vagy akár a/az OTPip Kiskunmajsa Csendes köz 1 - OTP Ingatlanpont Iroda összes hirdetése között is.

