Eladó újszerű állapotú lakás - Szeged
- INGYENES HIRDETÉS FELADÁS
Ingatlan adatai
- Feladva:50 napja a megveszLAK-on
- Eladó vagy kiadó:Eladó
- Település:Szeged
- Kategória:Lakás
- Alkategória:Tégla
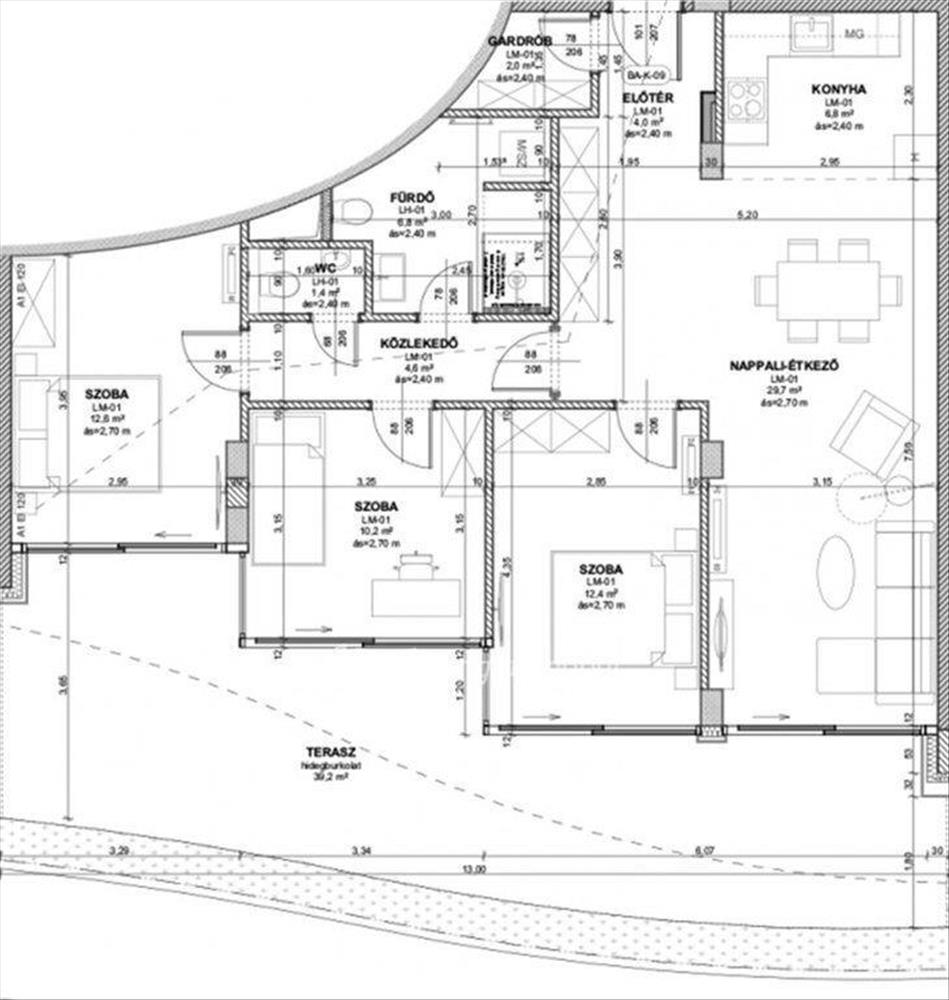
- Alapterület:110 m2
- Csere is:Nem
- Hirdető:Cég
- Élő videón megtekinthető:Nem
- Szobaszám:4
- Állapot:Újszerű, kitűnő
- Hány szintes az ingatlan:Földszintes
- Komfortosság:nincs megadva
- Hányadik emeleti:3
- Erkély:nincs megadva
- Lift:Van
- Parkolási lehetőség:nincs megadva
- Fűtés:Geotermikus
- Bútorozottság:nincs megadva
- Fényviszony:Napfényes
- Tájolás:nincs megadva
- Kilátás:nincs megadva
- Internet:nincs megadva
- Klíma:nincs megadva
- Akadálymentesített:nincs megadva
- Energiatanúsítvány:nincs megadva
- Villany:Van
- Víz:Van
- Gáz:nincs megadva
- Csatorna:Van
- Közös költség:50 000 Ft
- Kapcsolatfelvétel

Berényiné Annus Krisztina
+36-(30)-487-1084
Mondd meg a hirdetőnek, hogy a megveszLAK-on találtad a hirdetést.
Referencia szám: M325130
Hitel ajánlatok
Ingatlan hirdetés leírása
Eladó Lakás, Szeged, Eladó újszerű állapotú lakás - Szeged
Eladó prémium lakás panorámaterasszal az árkád Szeged KÖZELÉBEN!
Szeged egyik kedvelt, belváros közeli részén eladó egy 110 nm -es, 4 szobás, 3. emeleti, téglaépítésű lakás, amelynek valódi különlegessége a közel 40 nm -es, belső tóra néző panorámás terasz. Tökéletes hely a kikapcsolódásra, mégis a város közvetlen közelében.
A lakás amerikai konyhás nappalival, három különnyíló szobával, fürdőszobával és külön WC-vel, valamint egy praktikus háztartási helyiséggel rendelkezik. a geotermikus fűtés és a minden helyiségben kiépített fan-coil rendszer modern, energiatakarékos és alacsony fenntartású megoldást biztosít, míg az egyedi árnyékolási rendszerek a kényelmet szolgálják a mindennapokban.
Az igényes, rendezett lakópark nyugodt környezetet kínál, miközben a belváros, a közlekedés és minden fontos szolgáltatás, üzletek, éttermek, gyógyszertár néhány lépésre elérhető.
Ez az ingatlan ideális választás mindazok számára, akik a városi élet kényelmét szeretnék ötvözni egy csendes, zöld környezet nyugalmával. Az OTP Ingatlanpont teljeskörű ügyintézéssel áll az eladók és a vevők rendelkezésére! a kínálatunkból választott ingatlan finanszírozásához kedvezményes hitel- és pénzügyi konstrukciókat, hitel megoldásokat kínálunk. Az adásvételi szerződés megkötéséhez igény szerint, megbízható ügyvédi közreműködést és a kapcsolódó ügyek intézéséhez segítséget nyújtunk.
Referencia szám: m325130-ml Hitel.hu - Hasonlítsa össze a bankok lakáshitel ajánlatait
Tetszett ez az eladó Szegedi újszerű állapotú 4 szobás tégla lakás? Hívd fel a hirdetőt most, és tudj meg mindent erről az eladó tégla lakásról! Ha gondolod nézelődj tovább az eladó lakás Szeged oldal hirdetései között. Ennek az eladó lakásnak az ára 145000000 Ft és mivel az alapterülete 110 négyzetméter, ezért az átlagos négyzetméterára 1318182 HUF/m2.
Az eladó lakások menüpontban további hirdetések között is böngészhetsz. Ha van kedved, akkor böngészhetsz a Berényiné Annus Krisztina összes hirdetése között, vagy akár a/az OTPip Csongrád Fő utca 54 - OTP Ingatlanpont Iroda összes hirdetése között is.

