Eladó új építésű lakás - Szeged
- INGYENES HIRDETÉS FELADÁS
Kedvezményes lakáshitel ajánlatok if(Model.Olcsobb == true || Model.Dragabb == true){ } 75 588 500 HUF
Ingatlan adatai
- Eladó vagy kiadó:Eladó
- Település:Szeged
- Kategória:Lakás
- Alkategória:Tégla
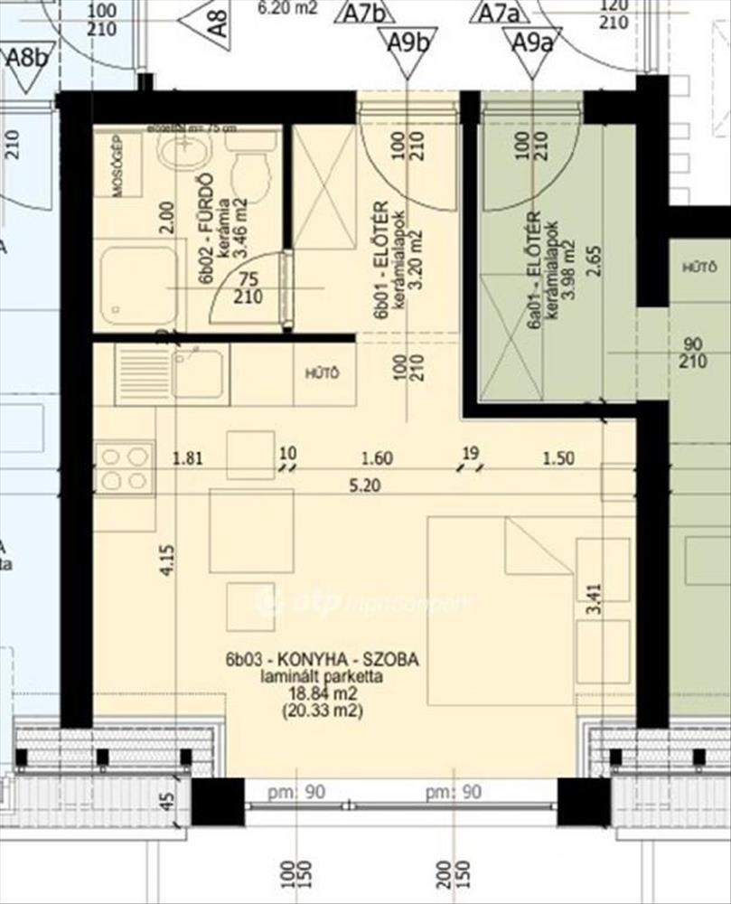
- Alapterület:25 m2
- Csere is:Nem
- Hirdető:Cég
- Élő videón megtekinthető:Nem
- Szobaszám:1
- Állapot:Új építésű
- Hány szintes az ingatlan:Földszintes
- Komfortosság:nincs megadva
- Hányadik emeleti:3
- Erkély:nincs megadva
- Lift:Nincs
- Parkolási lehetőség:Udvaron
- Fűtés:Geotermikus
- Bútorozottság:nincs megadva
- Fényviszony:Jó
- Tájolás:nincs megadva
- Kilátás:nincs megadva
- Internet:nincs megadva
- Klíma:nincs megadva
- Akadálymentesített:nincs megadva
- Energiatanúsítvány:A+
- Villany:Van
- Víz:Van
- Gáz:nincs megadva
- Csatorna:Van
- Közös költség:10 000 Ft
- Kapcsolatfelvétel

Csuka Bonita Zsófia
+36-(70)-615-3012
Mondd meg a hirdetőnek, hogy a megveszLAK-on találtad a hirdetést.
Referencia szám: M298070
Ingatlan hirdetés leírása
Eladó Lakás, Szeged, Eladó új építésű lakás - Szeged
Szeged, Alsóváros, 25, 5 m2-es, amerikaikonyhás nappalis, 3. emeleti, újépítésű téglalakás, tulajdonos-kivitelezőtől, 30% kezdő befizetéssel eladó. a kulcsrakész átadás tervezett időpontja: 2026. 12. 31. a lakásban amerikaikonyhás nappali és fürdőszoba található. a szoba laminált parketta-, a többi helyiség járólap burkolatot kapnak. Az otthon melegét geotermikus fűtés biztosítja. a lakáshoz opcionálisan, udvari beálló, vagy garázs is vásárolható. a tik, egyetemi épületek, klinikák és tömegközlekedési megállók mindössze pár perc sétára találhatók, ezért rendkívül kedvező lehetőség lehet, befektetők és diákok számára is. Az ingatlan megvásárlásához kedvező hitel is igényelhető, melynek intézéséhez szakszerű segítség áll a leendő vásárló rendelkezésére. Hitel.hu - Hasonlítsa össze a bankok lakáshitel ajánlatait


