Eladó felújítandó lakás Szeged
| Kedvencbe | Megosztás | Árfigyelő |
| FIX 3% lakáshitelre megvehető | ||
| 75 000 000 HUF | ||
Ingatlan adatai
- Eladó vagy kiadó:Eladó
- Település:Szeged
- Kategória:Lakás
- Alkategória:Tégla
- Alapterület:152 m2
- Csere is:Nem
- Hirdető:Cég
- Élő videón megtekinthető:Nem
- Szobaszám:4 + 4 fél
- Állapot:Felújítandó
- Hány szintes az ingatlan:Földszintes
- Komfortosság:nincs megadva
- Hányadik emeleti:Földszint
- Lift:Nincs
- Parkolási lehetőség:Udvaron
- Fűtés:Egyéb
- Bútorozottság:nincs megadva
- Fényviszony:Jó
- Tájolás:nincs megadva
- Kilátás:nincs megadva
- Internet:nincs megadva
- Akadálymentesített:nincs megadva
- Energiatanúsítvány:nincs megadva
- Villany:Van
- Víz:Van
- Gáz:nincs megadva
- Csatorna:Van
- Közös költség:1 Ft
- Üzenetküldés
- Hívás

Puskásné Ember Ninette
Mondd meg a hirdetőnek, hogy a megveszLAK-on találtad a hirdetést.
Referencia szám: M320274

Hitel ajánlat
Ingatlan hirdetés leírása
Eladó Lakás, Szeged, Eladó felújítandó lakás - Szeged
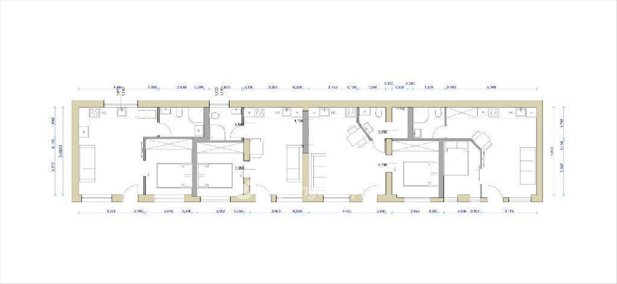
Szeged belvárosában eladó egy 140 m2-es, belső udvari épület, amelyhez 2 db saját fedett udvari autóbeálló tartozik. Az ingatlan rendkívül ritka adottságokkal rendelkezik: teljesen különálló épület a belvárosban, mégis csendes, nyugodt környezetben.Az épület kiválóan alkalmas befektetési célra, mivel benne 4 darab, egyenként 30-35 m2-es garzonlakás alakítható ki. a méret és az elrendezés ideálissá teszi rövid- és hosszútávú kiadásra egyaránt, különösen a belvárosi elhelyezkedés miatt.
A saját két udvari parkoló jelentős piaci előnyt jelent, hiszen a belvárosban az autóbeálló ritka és rendkívül keresett.
Az ingatlan csendes, belső udvari elhelyezkedése miatt kiváló lakhatásra és bérbeadásra is, miközben minden belvárosi szolgáltatás pár perc sétára elérhető.
Az egyetemek és a klinikák közelsége miatt kedvező lehetőség diákok, befektetők számára is.
Referencia szám: m320274 FIX 3% lakáshitelre megvehető

