Eladó új építésű lakás Szeged
| Kedvencbe | Megosztás | Árfigyelő |
| FIX 3% lakáshitelre megvehető | ||
| 86 997 900 HUF | ||
Ingatlan adatai
- Eladó vagy kiadó:Eladó
- Település:Szeged
- Kategória:Lakás
- Alkategória:Tégla
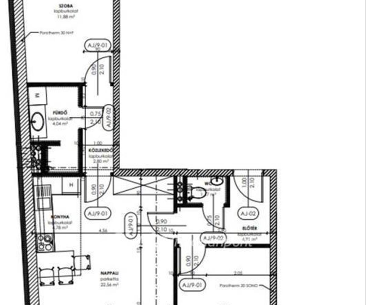
- Alapterület:70 m2
- Csere is:Nem
- Hirdető:Cég
- Élő videón megtekinthető:Nem
- Szobaszám:3
- Állapot:Új építésű
- Hány szintes az ingatlan:Földszintes
- Komfortosság:nincs megadva
- Hányadik emeleti:2
- Lift:Nincs
- Parkolási lehetőség:Teremgarázsban
- Fűtés:Hőszivattyús
- Bútorozottság:nincs megadva
- Fényviszony:Jó
- Tájolás:nincs megadva
- Kilátás:nincs megadva
- Internet:nincs megadva
- Akadálymentesített:nincs megadva
- Energiatanúsítvány:nincs megadva
- Villany:Van
- Víz:Van
- Gáz:nincs megadva
- Csatorna:Van
- Közös költség:10 000 Ft
- Üzenetküldés
- Hívás

Referencia szám: M296446

Hitel ajánlat
Ingatlan hirdetés leírása
Eladó Lakás, Szeged, Eladó új építésű lakás - Szeged
Szeged, Móraváros, 70,73 m2-es, 3 szobás, 2. emeleti, újépítésű téglalakás, tulajdonos-kivitelezőtől, 20% kezdő befizetéssel eladó. a kulcsrakész átadás tervezett időpontja: 2027.06.30. a lakásban amerikai konyhás nappali, 2 szoba, fürdőszoba, wc és erkély található. a szobák laminált parketta-, a többi helyiség járólap burkolatot kapnak. Az otthon melegét hőszivattyús fűtés biztosítja. a lakáshoz opcionálisan, udvari beálló, vagy garázs is vásárolható. a tik, egyetemi épületek, klinikák és tömegközlekedési megállók mindössze pár perc sétára találhatók, ezért rendkívül kedvező lehetőség lehet, befektetők és diákok számára is. Az ingatlan megvásárlásához kedvező hitel is igényelhető, melynek intézéséhez szakszerű segítség áll a leendő vásárló rendelkezésére.Érdeklődni: Fekete Vivien +36 30 401 6887
Referencia szám: m296446 FIX 3% lakáshitelre megvehető

