Eladó jó állapotú lakás - Székesfehérvár
- INGYENES HIRDETÉS FELADÁS
Ingatlan adatai
- Eladó vagy kiadó:Eladó
- Település:Székesfehérvár
- Kategória:Lakás
- Alkategória:Tégla
- Alapterület:67 m2
- Csere is:Nem
- Hirdető:Cég
- Élő videón megtekinthető:Nem
- Szobaszám:3
- Állapot:Jó állapotú
- Hány szintes az ingatlan:Földszintes
- Komfortosság:nincs megadva
- Hányadik emeleti:3
- Erkély:nincs megadva
- Lift:Nincs
- Parkolási lehetőség:Utcán
- Fűtés:Gáz (konvektor)
- Bútorozottság:nincs megadva
- Fényviszony:Jó
- Tájolás:nincs megadva
- Kilátás:nincs megadva
- Internet:nincs megadva
- Klíma:nincs megadva
- Akadálymentesített:nincs megadva
- Energiatanúsítvány:F
- Villany:Van
- Víz:Van
- Gáz:nincs megadva
- Csatorna:Van
- Közös költség:8 000 Ft
- Kapcsolatfelvétel
Borbás László
+36-(70)-241-6516
Mondd meg a hirdetőnek, hogy a megveszLAK-on találtad a hirdetést.
Referencia szám: BL126
Hitel ajánlatok
Ingatlan hirdetés leírása
Rádió-lakótelepen téglalakás eladó
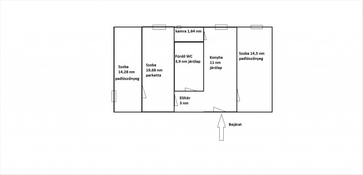
A rádió lakótelepen, harmadik emeleti téglalakás eladó. a lakás a legfelső szinten van. Hasznos alapterület 67 nm , ebben három szoba, konyha, előtér és egyben fürdőszoba Wc, valamint egy kamra található. a lakásban villanyvezetékek, konyha felújítása megtörtént. Beosztás a mellékelt alaprajz szerint. Közös költség 8000, -ft. Tartozik hozzá egy kb. 2 Nm alapterületű külön tároló is. Az ingatlan közelében busz és vasúti megálló, valamint bevásárlási lehetőség.
Hívjon bizalommal, visszahívom.
Referencia szám: bl126-ml FIX 3% lakáshitelre megvehető
Tetszett ez az eladó Székesfehérvári jó állapotú 3 szobás tégla lakás? Hívd fel a hirdetőt most, és tudj meg mindent erről az eladó tégla lakásról! Ha gondolod nézelődj tovább az eladó lakás Székesfehérvár oldal hirdetései között. Ennek az eladó lakásnak az ára 60000000 Ft és mivel az alapterülete 67 négyzetméter, ezért az átlagos négyzetméterára 895522 HUF/m2.
Az eladó lakás menüpontban további hirdetések között is böngészhetsz. Ha van kedved, akkor böngészhetsz a Borbás László összes hirdetése között.

