Eladó jó állapotú lakás - Szekszárd
- INGYENES HIRDETÉS FELADÁS
Ingatlan adatai
- Eladó vagy kiadó:Eladó
- Település:Szekszárd
- Kategória:Lakás
- Alkategória:Tégla
- Alapterület:50 m2
- Csere is:Nem
- Hirdető:Cég
- Élő videón megtekinthető:Nem
- Szobaszám:2
- Állapot:Jó állapotú
- Hány szintes az ingatlan:nincs megadva
- Komfortosság:nincs megadva
- Hányadik emeleti:nincs megadva
- Erkély:Van
- Lift:nincs megadva
- Parkolási lehetőség:nincs megadva
- Fűtés:Gáz (konvektor)
- Bútorozottság:nincs megadva
- Fényviszony:nincs megadva
- Tájolás:K
- Kilátás:Kertre néző
- Internet:nincs megadva
- Klíma:nincs megadva
- Akadálymentesített:nincs megadva
- Energiatanúsítvány:nincs megadva
- Villany:Van
- Víz:Van
- Gáz:Van
- Csatorna:Van
- Kapcsolatfelvétel

Bihary Szabolcs
+36-(70)-716-9966
Mondd meg a hirdetőnek, hogy a megveszLAK-on találtad a hirdetést.
Hitel ajánlatok
Ingatlan hirdetés leírása
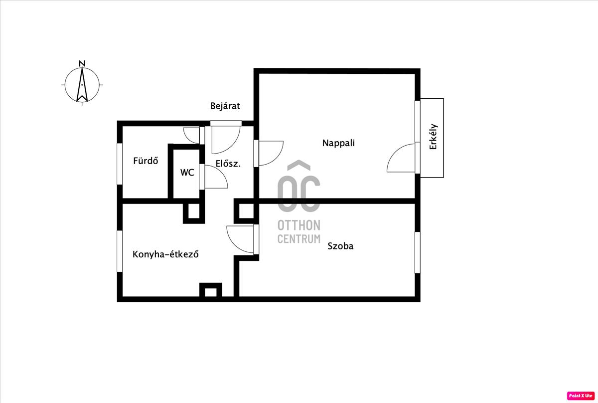
Városközponti, első emeleti, erkélyes lakás várja új tulajdono...
Városközponti, első emeleti, erkélyes lakás várja új tulajdonosát Szekszárdon a Wosinsky lakótelepen.
A világos lakásban van 2 külön nyíló teljes értékű szoba, külön wc, fürdőszoba, jól belerendezett konyha-étkező, gardrób szekrények.
A lakáshoz tartozik közös tároló és önálló tároló is.
A lakás ideális az alacsony rezsi költségek miatt, családi házból beköltöző egyedülállónak, vagy fiatal párnak kezdő lakásnak.
Menjünk nézzük meg minél hamarabb, hogy még ezen az áron meg tudd vásárolni!
Regisztrációs szám: H516466
Teljes körű pénzügyi megoldások ügyintézése díjmentesen.
Minden élethelyzetre végzünk pénzügyi elemzést - ha vásárolni szeretne, segítünk, hogy ezt a legjobb feltételek mellett tegye; ha eladni szeretné ingatlanát, nézzük meg, hátha érdemes meglévő hitelét átváltani.
Keressen bizalommal, szakértők vagyunk! FIX 3% lakáshitelre megvehető
Tetszett ez az eladó Szekszárdi jó állapotú 2 szobás tégla lakás? Hívd fel a hirdetőt most, és tudj meg mindent erről az eladó tégla lakásról! Ha gondolod nézelődj tovább az eladó lakás Szekszárd oldal hirdetései között. Ennek az eladó lakásnak az ára 37500000 Ft és mivel az alapterülete 50 négyzetméter, ezért az átlagos négyzetméterára 750000 HUF/m2.
Az eladó lakások menüpontban további hirdetések között is böngészhetsz. Ha van kedved, akkor böngészhetsz a Bihary Szabolcs összes hirdetése között, vagy akár a/az Otthon Centrum Szekszárd - Széchenyi utca összes hirdetése között is.

