Eladó jó állapotú lakás - Szentes
- INGYENES HIRDETÉS FELADÁS
Ingatlan adatai
- Feladva:46 napja a megveszLAK-on
- Eladó vagy kiadó:Eladó
- Település:Szentes
- Kategória:Lakás
- Alkategória:Tégla
- Alapterület:233 m2
- Csere is:Nem
- Hirdető:Cég
- Élő videón megtekinthető:Nem
- Szobaszám:7
- Állapot:Jó állapotú
- Hány szintes az ingatlan:Földszintes
- Komfortosság:nincs megadva
- Hányadik emeleti:1
- Erkély:nincs megadva
- Lift:Nincs
- Parkolási lehetőség:Teremgarázsban
- Fűtés:Gáz (cirko)
- Bútorozottság:nincs megadva
- Fényviszony:Jó
- Tájolás:nincs megadva
- Kilátás:nincs megadva
- Internet:nincs megadva
- Klíma:nincs megadva
- Akadálymentesített:nincs megadva
- Energiatanúsítvány:nincs megadva
- Villany:Van
- Víz:Van
- Gáz:nincs megadva
- Csatorna:Van
- Közös költség:1 Ft
- Kapcsolatfelvétel

Halász-Medve Zsuzsanna
+36-(70)-420-0319
Mondd meg a hirdetőnek, hogy a megveszLAK-on találtad a hirdetést.
Referencia szám: M323886
Hitel ajánlatok
Ingatlan hirdetés leírása
Eladó Lakás, Szentes
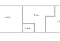
Kivételes befektetési lehetőség Csongrád-Csanád vármegyében, Szentesen eladó 3 lakásos ingatlan hatalmas telekkel! Szentes nyugodt, rendezett környezetében kínálunk megvételre egy rendkívül sokoldalúan hasznosítható ingatlant, amely 12690 nm -es telken helyezkedik el, és három különálló lakásból áll. Az ingatlan kiváló választás befektetőknek, többgenerációs családoknak, vagy akár bérbeadásban gondolkodóknak, hiszen a lakások külön is hasznosíthatók. a házban található lakások méretei: 100 nm , 71 nm és 62 nm . a fűtést mindhárom lakásban gázkazánok biztosítják. a gázkazánok egy közös kazánházban kaptak helyet. a lakások külön élettérként is kényelmesen használhatók, így ideális megoldást jelenthetnek akár több család számára vagy stabil bérleti bevétel kialakítására. a lakások és a hozzájuk tartozó telekrészek felosztása használati megállapodással választhatók szét vagy társasházzá alakítva albetétesítéssel, ahol egy ingatlan-nyilvántartási eljárással az önálló lakások, garázsok vagy tárolók külön helyrajzi számot (albetétet) és külön tulajdoni lapot kapnak a földhivatalnál. Mindhárom lakáshoz 10 nm -es saját tároló tartozik, amely praktikus helyet biztosít szerszámok, kerékpárok vagy egyéb használati tárgyak számára. a közel 1, 3 hektáros telek igazi ritkaságnak számít: bőséges teret kínál kertészkedéshez, gazdálkodáshoz, további építési vagy fejlesztési lehetőségekhez. a nagy terület miatt az ingatlan hosszú távon is kiváló értékálló befektetés. Az udvarban 4 garázs található, így több autó parkolása vagy akár műhely, tároló kialakítása is könnyedén megoldható. Az ilyen adottságokkal rendelkező ingatlanok ritkán kerülnek a piacra. Akár több lakásos bérbeadásban, akár családi együttélésben gondolkodik, ez az ingatlan hosszú távon is kiváló lehetőséget kínál. Amennyiben az OTP Ingatlanpont kínálatából választ, számíthat szakmai támogatásunkra a teljes vételi folyamat során az adásvételi szerződés megkötésétől a hitel-ügyintézésen át az ingatlan átadásáig. Ajánlom minden kedves ügyfelem részére az OTP Bank által közvetített Babaváró, CSOK plusz, Otthon Start Hitelprogram vagy egyéb kölcsönök intézését. Az OTP Ingatlanpont kedvezményes pénzügyi konstrukciókkal áll ügyfelei rendelkezésére, és VIP-szolgáltatást nyújt az OTP-hiteltermékek, ügyintézésben. Kedvező hitelajánlatokkal (babaváró hitel, piaci hitel, és szabadfelhasználású hitel) várjuk jelentkezését. Számos konstrukció közül választhatnak. Irodáink Szentes, Petőfi u. 12. (A buszmegálló felől) és Csongrád, Fő u. 54. Szám alatt várja a személyes érdeklődőket. ***Válasszuk ki együtt az önnek legmegfelelőbb ajánlatot! Banki sorban állás nélkül! ***
Referencia szám: m323886-ml Hitel.hu - Hasonlítsa össze a bankok lakáshitel ajánlatait
Tetszett ez az eladó Szentesi jó állapotú 7 szobás tégla lakás? Hívd fel a hirdetőt most, és tudj meg mindent erről az eladó tégla lakásról! Ha gondolod nézelődj tovább az eladó lakás Szentes oldal hirdetései között. Ennek az eladó lakásnak az ára 142500000 Ft és mivel az alapterülete 233 négyzetméter, ezért az átlagos négyzetméterára 611588 HUF/m2.
Az eladó lakások menüpontban további hirdetések között is böngészhetsz. Ha van kedved, akkor böngészhetsz a Halász-Medve Zsuzsanna összes hirdetése között, vagy akár a/az OTPip Szentes Petőfi utca 12 - OTP Ingatlanpont Iroda összes hirdetése között is.

